Dům na prodej, rodinný dům, Hrušky
Hrušky, Hlavní
7 690 000 Kč (za nemovitost) Cena včetně provizeHrušky, Hlavní
7 690 000 Kč (za nemovitost) Cena včetně provizeDům na prodej / rodinný dům / 192 m2 - Domy na prodej typu rodinný dům za nabídkovou cenu 7 690 000 Kč. Vybraná nemovitost - Rodinný dům. Typ vlastnictví osobní. Plocha nemovitosti je 192 m2. Dostupné od 05.06.2025.
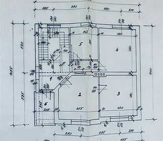
Exkluzivně Vám nabízíme vícegenerační dům stojící v srdci jihomoravského Podluží, v malebné vinařské obci Hrušky. Dům nabízí velkorysou dispoziční variabilitu a široký potenciál využití. Tento prostorný dům disponuje obytnou plochou 192 m², dále sklepními prostory, vnitřní garáží, rozlehlými půdními prostory a nádhernou zahradou. Dům nabízí šest obytných místností, dvě kuchyně, koupelnu, dvě samostatná WC, komoru, prostorné chodby a schodiště. Prosluněný balkon zve k příjemnému posezení. Celková zastavěná plocha domu s dvorem, pergolou, venkovní garáží a zahradou činí 755 m². Zahrada s hospodářskými budovami, o rozloze 263 m², nabízí nejen krásné prostředí k odpočinku, ale také možnost využití jako stavební pozemek pro další výstavbu a po dohodě s majitelem se dá koupit i samostatně! Sklepní část domu skýtá několik dalších místností, včetně kuchyně, vinného sklepa a garáže, která v současnosti slouží jako dílna. Velkou výhodou domu je vlastní studna a nová střecha z roku 2021, která zajišťuje dlouhou životnost objektu. Venkovní prostor je rozdělen na dvě části. První část tvoří rozkvetlá zahrada, která poskytuje odpočinkovou zónu. Druhou částí je dvůr s prostornou pergolou, ideální pro celoroční posezení. Součástí dvora je také venkovní garáž a vjezd možný přímo z vedlejší ulice. Tento vícegenerační dům nabízí ideální kombinaci komfortního rodinného bydlení a zajímavé investiční příležitosti – ať už pro vybudování nájemního bydlení, či nové výstavby (například dalšího rodinného domu, vinařství, nebo komerčního objektu). Neváhejte se na nás obrátit pro více informací a domluvení prohlídky!

martina.imrichova@century21.cz
Radlická 759/32, 15000, Praha 5