Typ nemovitosti
Nerozhoduje
domydomy
domybyty
domypozemky
domykomerční nemovitosti
domyostatní nemovitosti
Typ nabídky
Nerozhoduje
Prodej
Pronájem
Aukce
Podíly
Kraj
Nerozhoduje
Karlovarský kraj
Plzeňský kraj
Jihočeský kraj
Ústecký kraj
Liberecký kraj
Moravskoslezský kraj
Zlínský kraj
Hl. město Praha
Olomoucký kraj
Královéhradecký kraj
Pardubický kraj
Jihomoravský kraj
Vysočina
Středočeský kraj

Byt na prodej, 3+1, Praha 4 - Chodov

Praha 4 - Chodov, 14 800, Augustinova 2062/18

7 990 900 Kč (za nemovitost) Cena včetně provize, Cena k jednání

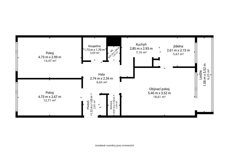
Byt na prodej / 3+1 / 74 m2 - Byty na prodej typu 3+1 za nabídkovou cenu 7 990 900 Kč. Vybraná nemovitost - 3+1 se nachází v městské části Praha 11. Typ vlastnictví osobní. Plocha nemovitosti je 74 m2. Dostupné od 21.11.2025.

Hledáte pro sebe vlastní bydlení, nebo investiční byt v Praze? Nabízím Vám ke koupi bezbariérový prostorný třípokojový byt se samostatnou kuchyní v prvním nadzemním podlaží (zvýšené přízemí) panelového domu s výtahem v Praze 4, Chodov. K bytu s podlahovou plochou 74 m² náleží prostorná zasklená lodžie 6 m² a zděný sklep o velikosti 2 m². Samotná bytová jednotka je v původním udržovaném stavu (umakartové jádro, podlahy PVC, elektroinstalace) a vybízí k rekonstrukci dle vlastních představ. Novější kuchyňská linka je vybavena elektrickými spotřebiči (trouba se sklokeramickou varnou deskou, myčka nádobí, digestoř). Byt je osazen plastovými okny. Bytový dům je po kompletní revitalizaci zateplen má nová plastová okna, stoupačky, výtah a proběhla rekonstrukce střechy. Parkovat lze v ulici přímo před domem. Nespornou výhodou je, že lokalita nabízí bydlení s výbornou dostupností do centra Prahy. Autobusová zastávka Dědinova a stanice metra C Roztyly je v pěší vzdálenosti od domu. Za nákupy můžete vyrazit do obchodního centra Chrpa, které stojí hned vedle domu, nebo do vzdálenějšího velkého OC Westfield Chodov. Prostor pro cykloturistiku, nebo procházku, relaxaci a odpočinek nabízí blízký Michelský les. V okolí se nachází veškerá občanská vybavenost, sportovní a kulturní vyžití. Pokud hledáte bydlení v dynamické a dobře dostupné části Prahy, tento byt představuje skvělou příležitost pro život v moderním prostředí s veškerým komfortem. Díky perfektní znalosti trhu a kvalitnímu klientskému servisu se v případě zájmu můžete spolehnout, že Vám doporučíme nejlepší financování Vaší nemovitosti a pomůžeme vyřídit veškeré náležitosti. Více informací a prohlídku Vám zajistí realitní makléř pan Petr Janíček.

Cena
7 990 900 Kč
Provize
včetně provize
Cena k jednání
ano
Dispozice
3+1
Celková plocha
82 m2
Užitná plocha
74 m2
ID nabídky
971105
Aktualizace
09.12.2025
Aktivní dní
3
Forma vlastnictví
osobní
Typ budovy
panelová
Stav
dobrý
Vybavení
částečně
Voda
vodovod
Podlaží
1
Podlaží celkem
13
Odpad
veřejná kanalizace
Stavba
panelová
Sklep
ano
Patro
1
Lodžie
ano
Plocha sklepu
2
Elektřina
230V
Výtah
ano
Energetická nárocnost budovy
C - Úsporná
Podle vyhlášky
č. 78/2013 Sb.
Ukazatel energetické nárocnosti budovy
83,00
Stav
rezervováno
Plocha lodžie
6
Rok výstavby
1 987
Datum nastěhování
21.11.2025
Rok rekonstrukce
2 020
Telekomunikace
internet
Doprava
silnice
MHD
Podlaží podzemní
1
Aktivní
ano

poptat nemovitost

Odesláním formuláře udělujete souhlas s pravidly ochrany osobních údajů

Petr Janíčekrealitní makléř

synergy@century21.cz

Century 21 Synergy

Ke Štvanici 656/3, 18600, Praha

REKLAMA

spočítejte si svou hypotéku

svou hypotéku si právě počítá % zájemců

měsíční splátka

- Kč

Při úroku - % p.a.

Mám zájem o hypotéku

Odeslat ke kalkulaci

zpět na kalkulačkuOdesláním formuláře udělujete souhlas s pravidly ochrany osobních údajů
REKLAMA
Cookies
spočítat
hypotéku