Typ nemovitosti
Nerozhoduje
domydomy
domybyty
domypozemky
domykomerční nemovitosti
domyostatní nemovitosti
Typ nabídky
Nerozhoduje
Prodej
Pronájem
Aukce
Podíly
Kraj
Nerozhoduje
Karlovarský kraj
Plzeňský kraj
Jihočeský kraj
Ústecký kraj
Liberecký kraj
Moravskoslezský kraj
Zlínský kraj
Hl. město Praha
Olomoucký kraj
Královéhradecký kraj
Pardubický kraj
Jihomoravský kraj
Vysočina
Středočeský kraj

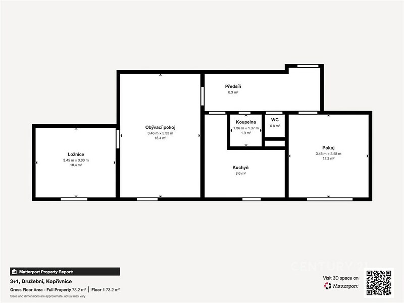
Byt na prodej, 3+1, Kopřivnice

Kopřivnice, 74 221, Družební 1002/5

3 150 000 Kč (za nemovitost) Cena včetně provize

Byt na prodej / 3+1 / 64 m2 - Byty na prodej typu 3+1 za nabídkovou cenu 3 150 000 Kč. Vybraná nemovitost - 3+1. Typ vlastnictví družstevní. Plocha nemovitosti je 64 m2. Dostupné od 30.10.2025.

Nabízíme k prodeji družstevní byt 3+1 o výměře 64 m2 + lodžie, který se nachází v 5. NP revitalizovaného panelového domu s výtahem na ulici Družební v Kopřivnici. K bytu náleží sklepní kóje. Samotný byt sestává z prostorné vstupní chodby s dostatkem místa na vestavěné skříně a úložné prostory, obývacího pokoje se vstupem na lodžii, ložnice a dětského pokoje, kuchyně s kuchyňskou linkou na míru a koupelny se sprchovým koutem a samostatného WC. Byt prošel před cca 11 lety celkovou rekonstrukcí, kdy bylo vyzděno koupelnové jádro, nové omítky a sádrokartonové stropy, vybudována nová elektroinstalace v celém bytě, nové krytiny podlah a kuchyňská linka na míru. Byt je v udržovaném stavu umožňujícím jeho okamžité bezproblémové užívání. Byt se nachází v lokalitě plné zeleně s dosahem chůze centra města Kopřivnice. V okolí se nachází škola, školka, nákupní možnosti a další široká občanská vybavenost. Doporučujeme shlédnout náš 3D sken tohoto bytu, kde se dokonale seznámíte s jeho stavem a dispozicí z pohodlí Vašeho soukromí a v případě zájmu nás prosím kontaktujte a rádi se s Vámi uvidíme na osobní prohlídce.

Cena
3 150 000 Kč
Provize
včetně provize
Dispozice
3+1
Celková plocha
64 m2
Užitná plocha
64 m2
ID nabídky
969824
Aktualizace
30.10.2025
Aktivní dní
2
Forma vlastnictví
družstevní
Typ budovy
panelová
Stav
velmi dobrý
Voda
vodovod
Podlaží
5
Podlaží celkem
13
Odpad
veřejná kanalizace
Stavba
panelová
Sklep
ano
Patro
5
Lodžie
ano
Elektřina
230V
Výtah
ano
Energetická nárocnost budovy
G - Mimořádně nehospodárná
Podle vyhlášky
č. 78/2013 Sb.
Datum nastěhování
30.10.2025
Aktivní
ano

poptat nemovitost

Odesláním formuláře udělujete souhlas s pravidly ochrany osobních údajů

Ing. Petr Podhajskýrealitní makléř

petr.podhajsky@century21.cz

CENTURY 21 3D Reality

Gregorova 1412/12, 74101, Nový Jičín

REKLAMA

spočítejte si svou hypotéku

svou hypotéku si právě počítá % zájemců

měsíční splátka

- Kč

Při úroku - % p.a.

Mám zájem o hypotéku

Odeslat ke kalkulaci

zpět na kalkulačkuOdesláním formuláře udělujete souhlas s pravidly ochrany osobních údajů
REKLAMA
Cookies
spočítat
hypotéku