Typ nemovitosti
Nerozhoduje
domydomy
domybyty
domypozemky
domykomerční nemovitosti
domyostatní nemovitosti
Typ nabídky
Nerozhoduje
Prodej
Pronájem
Aukce
Podíly
Kraj
Nerozhoduje
Karlovarský kraj
Plzeňský kraj
Jihočeský kraj
Ústecký kraj
Liberecký kraj
Moravskoslezský kraj
Zlínský kraj
Hl. město Praha
Olomoucký kraj
Královéhradecký kraj
Pardubický kraj
Jihomoravský kraj
Vysočina
Středočeský kraj

Byt na prodej, 3+kk, Nový Jičín

Nový Jičín, 74 101, Hoblíkova 592/3

5 850 000 Kč (za nemovitost) Cena včetně provize

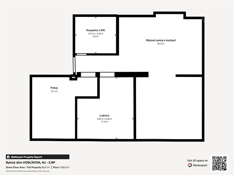
Byt na prodej / 3+kk / 68 m2 - Byty na prodej typu 3+kk za nabídkovou cenu 5 850 000 Kč. Vybraná nemovitost - 3+kk. Typ vlastnictví osobní. Plocha nemovitosti je 68 m2. Dostupné od 23.08.2025.

Nabízíme k prodeji moderní bydlení v menším bytovém domě po kompletní a velmi kvalitní rekonstrukci. Budova o třech podlažích se sklepem a půdou prošla rozsáhlou revitalizací – nové rozvody elektřiny, plynu, kanalizace i vody, podřezávka se zajištěním proti vlhkosti, nové podlahy, stropy i omítky. Fasáda je kompletně opravená, z jedné strany zateplená. Byt o dispozici 3+kk a velikosti 68m2 se nachází v 2.NP a nabízí vlastní plynový kotel, laminátovou podlahu, v koupelně dlažbu, terasu o rozměru 3x5 m a kuchyňskou linku na míru včetně spotřebičů. Každé patro představuje samostatný byt, což zaručuje soukromí a klidné bydlení mimo ruch velkých bytových komplexů. V celém domě jsou nová plastová okna s trojsklem, vchod je vybaven zvonky s kamerou. Za domem se nachází menší zahrádka určená pro obyvatele domu. Výhody bydlení: • moderní rekonstrukce bez nutnosti dalších investic • skvělá poloha – centrum města, v pěší dostupnosti obchody, školy, náměstí i autobusové nádraží • menší bytový dům se třemi byty • sklepní prostory a půda • zahrádka k užívání Tento byt je ideální volbou pro ty, kteří hledají nové, komfortní bydlení v centru města s veškerou občanskou vybaveností na dosah a přitom se chtějí vyhnout anonymitě velkých bytových domů.

Cena
5 850 000 Kč
Provize
včetně provize
Dispozice
3+kk
Celková plocha
68 m2
Užitná plocha
68 m2
Terasa
ano
ID nabídky
965626
Aktualizace
23.08.2025
Aktivní dní
6
Forma vlastnictví
osobní
Typ budovy
cihlová
Stav
po rekonstrukci
Vybavení
ne
Podlaží
2
Podlaží celkem
3
Odpad
veřejná kanalizace
Stavba
cihlová
Sklep
ano
Patro
2
Terasa
ano
Výtah
ne
Energetická nárocnost budovy
G - Mimořádně nehospodárná
Podle vyhlášky
č. 78/2013 Sb.
Datum nastěhování
23.08.2025
Aktivní
ano

poptat nemovitost

Odesláním formuláře udělujete souhlas s pravidly ochrany osobních údajů

Viktor Akantisrealitní makléř

viktor.akantis@century21.cz

CENTURY 21 3D Reality

Gregorova 1412/12, 74101, Nový Jičín

REKLAMA

spočítejte si svou hypotéku

svou hypotéku si právě počítá % zájemců

měsíční splátka

- Kč

Při úroku - % p.a.

Mám zájem o hypotéku

Odeslat ke kalkulaci

zpět na kalkulačkuOdesláním formuláře udělujete souhlas s pravidly ochrany osobních údajů
REKLAMA
Cookies
spočítat
hypotéku