Typ nemovitosti
Nerozhoduje
domydomy
domybyty
domypozemky
domykomerční nemovitosti
domyostatní nemovitosti
Typ nabídky
Nerozhoduje
Prodej
Pronájem
Aukce
Podíly
Kraj
Nerozhoduje
Karlovarský kraj
Plzeňský kraj
Jihočeský kraj
Ústecký kraj
Liberecký kraj
Moravskoslezský kraj
Zlínský kraj
Hl. město Praha
Olomoucký kraj
Královéhradecký kraj
Pardubický kraj
Jihomoravský kraj
Vysočina
Středočeský kraj

Byt na prodej, 4+1, Severní Předměstí - Plzeň

Plzeň, Brněnská

6 300 000 Kč (za nemovitost) Cena + provize RK

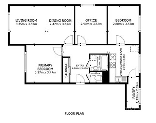
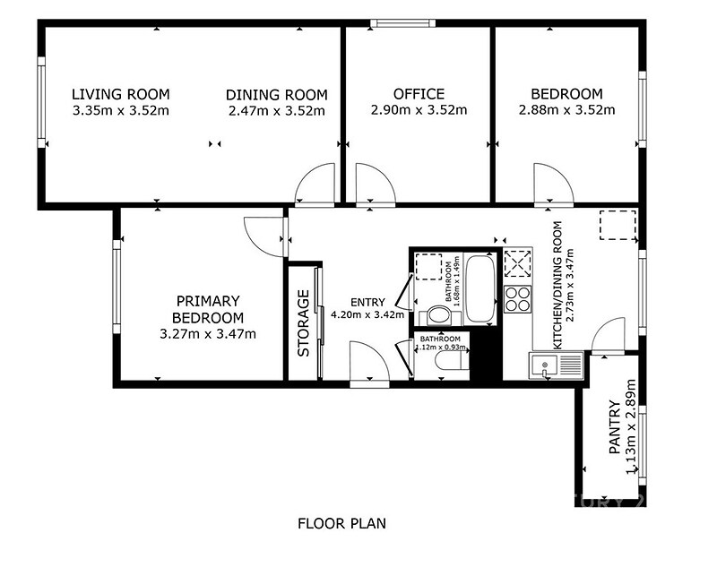
Byt na prodej / 4+1 / 78 m2 - Byty na prodej typu 4+1 za nabídkovou cenu 6 300 000 Kč. Vybraná nemovitost - 4+1. Typ vlastnictví osobní. Plocha nemovitosti je 78 m2.

Nabízíme k prodeji útulný byt, který je ideálním místem pro rodinný život. Byt je umístěn na 2. patře dobře udržovaného revitalizovaného bytového domu s výtahem a bezbariérovým přístupem z obou stran tohoto domu. Dům působí klidným a udržovaným dojmem a zajišťuje tak pohodlné bydlení pro rodiny s dětmi nebo starší osoby. Celková užitná plocha bytu je 78 m² a k tomu náleží také zasklený balkon o velikosti 6 m², který poskytuje skvělý prostor pro odpočinek o teplých letních večerech a je ideálním místem pro relaxaci. Součástí bytu je rovněž sklep o rozměru 3 m², který nabízí dostatek prostoru pro uložení sezónních věcí či nářadí. Interiér bytu je zařízen velmi vkusně a nadčasovým designem. Kuchyň je vybavena vestavnými spotřebiči, jako je lednice, elektrická trouba, mrazák, plynová varná deska, digestoř a myčka a velkým překvapením této místnosti je skvěle řešený vstup do špajzu, který je skryt v kuchyňské lince. Nespornou výhodou je centrální dálkové vytápění, což zajišťuje optimální teplotní komfort po celý rok. PENB C. Lokalita bytu je vynikající s velmi dobrou občanskou vybaveností. V bezprostřední blízkosti se nachází škola, školka, různé obchody, restaurace a kulturní zařízení. Sportovní a relaxační aktivity nabízejí nedaleké sportovní areály a zelené plochy. Dopravní dostupnost je rovněž vynikající, s rychlým přístupem k autobusové dopravě, první třídy silnicím a městské dopravě, což zajišťuje snadné a rychlé spojení s ostatními částmi města i okolí.

Cena
6 300 000 Kč
Provize
+ provize RK
Dispozice
4+1
Celková plocha
78 m2
Užitná plocha
78 m2
ID nabídky
964778
Aktualizace
15.08.2025
Aktivní dní
2
Forma vlastnictví
osobní
Typ budovy
panelová
Stav
velmi dobrý
Vybavení
částečně
Voda
vodovod
Podlaží
3
Podlaží celkem
14
Plyn
plynovod
Odpad
veřejná kanalizace
Stavba
panelová
Sklep
ano
Patro
3
Lodžie
ano
Plocha balkónu
6
Plocha sklepu
3
Elektřina
230V
Výtah
ano
Energetická nárocnost budovy
B - Velmi úsporná
Podle vyhlášky
č. 78/2013 Sb.
Plocha lodžie
6
Doprava
silnice
MHD
Podlaží podzemní
1
Aktivní
ano

poptat nemovitost

Odesláním formuláře udělujete souhlas s pravidly ochrany osobních údajů

Renata Staněkrealitní makléř

renata.stanek@century21.cz

CENTURY 21 The Most Reality

U Věžových domů 2934/5, 43401, Most

REKLAMA

spočítejte si svou hypotéku

svou hypotéku si právě počítá % zájemců

měsíční splátka

- Kč

Při úroku - % p.a.

Mám zájem o hypotéku

Odeslat ke kalkulaci

zpět na kalkulačkuOdesláním formuláře udělujete souhlas s pravidly ochrany osobních údajů
REKLAMA
Cookies
spočítat
hypotéku