Typ nemovitosti
Nerozhoduje
domydomy
domybyty
domypozemky
domykomerční nemovitosti
domyostatní nemovitosti
Typ nabídky
Nerozhoduje
Prodej
Pronájem
Aukce
Podíly
Kraj
Nerozhoduje
Karlovarský kraj
Plzeňský kraj
Jihočeský kraj
Ústecký kraj
Liberecký kraj
Moravskoslezský kraj
Zlínský kraj
Hl. město Praha
Olomoucký kraj
Královéhradecký kraj
Pardubický kraj
Jihomoravský kraj
Vysočina
Středočeský kraj

Pronájem bytu, 1+1, Praha 4 - Braník

Praha 4 - Braník, 14 700, Nad malým mýtem 527/10

19 900 Kč (za měsíc) Cena

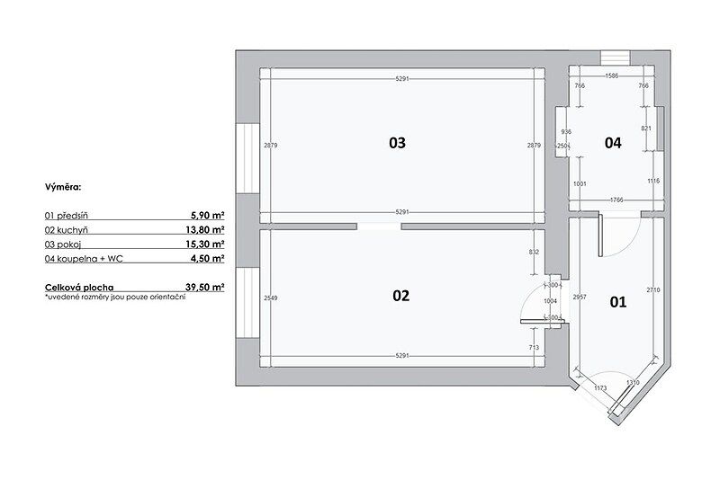
Pronájem bytu / 1+1 / 39 m2 - Pronájem bytů typu 1+1 za nabídkovou cenu 19 900 Kč. Vybraná nemovitost - 1+1 se nachází v městské části Praha 4. Typ vlastnictví osobní. Plocha nemovitosti je 39 m2. Dostupné od 11.01.2026.

Nabízíme k pronájmu byt 1+1 o celkové ploše 39,5 m², který se nachází ve 4. nadzemním podlaží cihlového domu bez výtahu v klidné lokalitě pražského Braníka. Kuchyň o velikosti 13,8 m² je vybavena moderní kuchyňskou linkou se sklokeramickou varnou deskou, troubou, vestavěnou myčkou a lednicí s mrazákem. Kuchyň a hlavní obytný prostor jsou orientovány na východ s příjemným výhledem do klidného dvora se zelení. Byt je po částečné rekonstrukci a je vybaven bezpečnostními vstupními dveřmi. Laminátová plovoucí podlaha je položena ve všech místnostech, vyjma koupelny. V bytě je instalované elektrické přímotopné topení s digitálním termostatem. Ohřev teplé vody je zajištěn elektrickým bojlerem. Byt je ideální pro jednu osobu nebo pár a je k okamžitému nastěhování. výše nájemného: 19.900 Kč/měs zúčtovatelné zálohy pro 1 osobu 1.100 Kč/měs, pro 2 osoby 1.500 Kč/měs el. energie se přepisuje na nájemníka (zálohy 1500 Kč/měs) výše jistoty (kauce): 39.800 Kč provize RK: 10.000 Kč + DPH

Cena
19 900 Kč
Dispozice
1+1
Celková plocha
39 m2
Užitná plocha
39 m2
ID nabídky
965388
Aktualizace
13.01.2026
Aktivní dní
1
Forma vlastnictví
osobní
Typ budovy
cihlová
Stav
dobrý
Voda
vodovod
Podlaží
4
Podlaží celkem
5
Odpad
veřejná kanalizace
Stavba
cihlová
Patro
4
Elektřina
230V
Výtah
ne
Energetická nárocnost budovy
C - Úsporná
Podle vyhlášky
č. 78/2013 Sb.
Rok výstavby
1 931
Datum nastěhování
11.01.2026
Doprava
MHD
Aktivní
ano

poptat nemovitost

Odesláním formuláře udělujete souhlas s pravidly ochrany osobních údajů

Jana Folkmannovárealitní makléř

jana.folkmannova@century21.cz

CENTURY 21 Birdie Reality

Rumunská 18/22, 12000, Praha 2

REKLAMA

spočítejte si svou hypotéku

svou hypotéku si právě počítá % zájemců

měsíční splátka

- Kč

Při úroku - % p.a.

Mám zájem o hypotéku

Odeslat ke kalkulaci

zpět na kalkulačkuOdesláním formuláře udělujete souhlas s pravidly ochrany osobních údajů
REKLAMA
Cookies
spočítat
hypotéku