Typ nemovitosti
Nerozhoduje
domydomy
domybyty
domypozemky
domykomerční nemovitosti
domyostatní nemovitosti
Typ nabídky
Nerozhoduje
Prodej
Pronájem
Aukce
Podíly
Kraj
Nerozhoduje
Karlovarský kraj
Plzeňský kraj
Jihočeský kraj
Ústecký kraj
Liberecký kraj
Moravskoslezský kraj
Zlínský kraj
Hl. město Praha
Olomoucký kraj
Královéhradecký kraj
Pardubický kraj
Jihomoravský kraj
Vysočina
Středočeský kraj

Dům na prodej, rodinný dům, Budín - Samopše

Samopše, 28 506,  230

7 770 000 Kč (za nemovitost) Cena + provize RK, cena je včetně provize RK

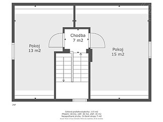
Dům na prodej / rodinný dům / 115 m2 - Domy na prodej typu rodinný dům za nabídkovou cenu 7 770 000 Kč. Vybraná nemovitost - Rodinný dům. Typ vlastnictví osobní. Plocha nemovitosti je 115 m2.

Nemovitost se nachází v malebné lokalitě u řeky Sázavy, jen pár minut od centra města Sázava, v oblíbené rekreační oblasti Budín. Třípodlažní dům se dvěma samostatnými vchody a prakticky řešenou dispozicí je ideální volbou jak pro rodinu s dětmi, vícegenerační bydlení, tak i pro spojení celoročního bydlení s rekreací. Díky tepelnému čerpadlu a zateplení střechy byla roční spotřeba energií za rok 2024 pouze 8,4 MWh. K dispozici je také vlastní kopaná studna hluboká 20 m s dostatkem kvalitní vody (každoročně testována), jímka o objemu 12 m³. Na pozemku se nachází i zahradní domek a parkovací místa. Přízemí (40 m²): předsíň, koupelna, samostatné WC, praktická komora, prádelna, technická místnost, kde je umístěné zařízení pro tepelné čerpadlo a jeden obytný pokoj (hostinský / pracovna / hobby). 1. patro (40 m²): centrální obytná část – kuchyně, jídelna a obývací pokoj, dále jeden samostatný pokoj. 2. patro (35 m²): dva prostorné pokoje a chodba. Na zahradě je bazén o velikosti 46 m³ (6 × 4,5 × 1,7 m), který v létě poskytne příjemné osvěžení. Díky vzrostlým stromům a zeleni podél plotu zde najdete dostatek soukromí. Volný čas tak můžete trávit nerušeně s rodinou či přáteli. Lokalita: Město Sázava nabízí kompletní občanskou vybavenost – obchody, restaurace, školy, zdravotnická zařízení i kulturní vyžití. Dopravní dostupnost je výborná: autobus, vlak, Benešov 24 km, Praha 45 km (sjezd z D1 na 35. km). Sázava je město s bohatou historií – narodil se zde například Jiří Voskovec. Po odchodu do USA zakoupil Voskovcův rodný dům Jan Werich. Natáčel se tu také film Michala Viewegha "Báječná léta pod psa". V okolí najdete krásnou přírodu, turistické a cyklistické stezky, vodácké aktivity na řece (cca 300 m od domu), oblíbený rekreační areál Sázavský ostrov i historický Sázavský klášter. Během celého roku se zde konají kulturní i sportovní akce. Pokud hledáte dům v krásném a klidném prostředí, vhodný pro celoroční bydlení nebo rekreaci, přijďte se podívat osobně.

Cena
7 770 000 Kč
Poznámka k ceně
cena je včetně provize RK
Provize
+ provize RK
Dispozice
rodinný dům
Celková plocha
115 m2
Užitná plocha
115 m2
ID nabídky
962204
Aktualizace
01.10.2025
Aktivní dní
5
Forma vlastnictví
osobní
Typ budovy
smíšená
Stav
dobrý
Vybavení
ano
Parkování
ano
Voda
místní zdroj vody
Podlaží celkem
2
Odpad
jímka
Velikost
5 a více pokojů
Bazén
ano
Stavba
smíšená
Typ domu
patrový
Parkování
ano
Plocha sklepu
3
Elektřina
400V
Výtah
ne
Energetická nárocnost budovy
F - Velmi nehospodárná
Podle vyhlášky
č. 78/2013 Sb.
Rok výstavby
1 991
Poloha domu
samostatný
Míst k parkování
2
Telekomunikace
internet
Plocha terasy
10
Doprava
silnice
dálnice
autobus
vlak
Aktivní
ano

poptat nemovitost

Odesláním formuláře udělujete souhlas s pravidly ochrany osobních údajů

Martin Schusterrealitní makléř

martin.schuster@century21.cz

CENTURY 21 Premium

Zlatnická 1582/10, 11000, Praha 1

REKLAMA

spočítejte si svou hypotéku

svou hypotéku si právě počítá % zájemců

měsíční splátka

- Kč

Při úroku - % p.a.

Mám zájem o hypotéku

Odeslat ke kalkulaci

zpět na kalkulačkuOdesláním formuláře udělujete souhlas s pravidly ochrany osobních údajů
REKLAMA
Cookies
spočítat
hypotéku