Typ nemovitosti
Nerozhoduje
domydomy
domybyty
domypozemky
domykomerční nemovitosti
domyostatní nemovitosti
Typ nabídky
Nerozhoduje
Prodej
Pronájem
Aukce
Podíly
Kraj
Nerozhoduje
Karlovarský kraj
Plzeňský kraj
Jihočeský kraj
Ústecký kraj
Liberecký kraj
Moravskoslezský kraj
Zlínský kraj
Hl. město Praha
Olomoucký kraj
Královéhradecký kraj
Pardubický kraj
Jihomoravský kraj
Vysočina
Středočeský kraj

Byt na prodej, 2+1, Bystřice

Bystřice, 25 751, Dr. E. Beneše 403

4 490 000 Kč (za nemovitost) Cena + provize RK

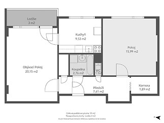
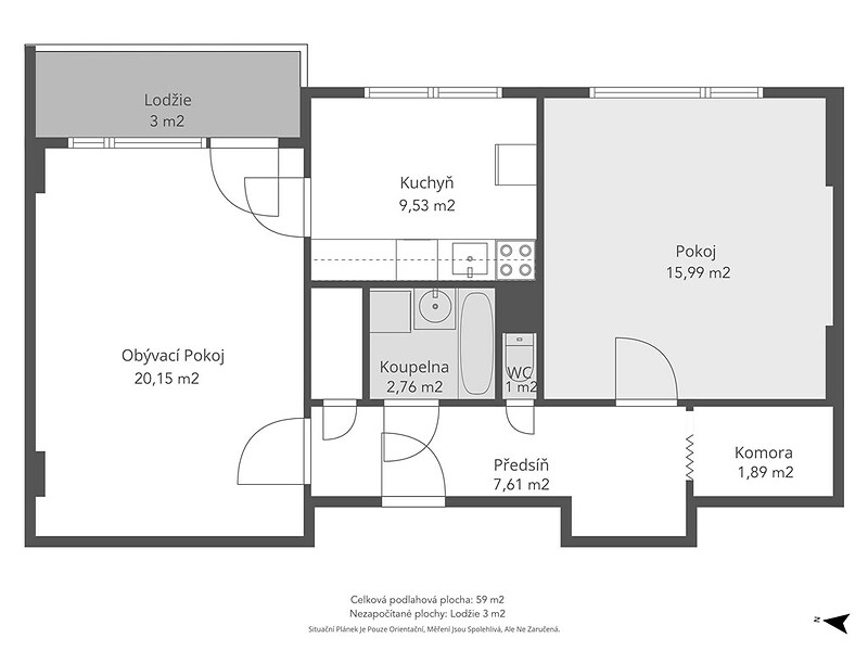
Byt na prodej / 2+1 / 59 m2 - Byty na prodej typu 2+1 za nabídkovou cenu 4 490 000 Kč. Vybraná nemovitost - 2+1. Typ vlastnictví osobní. Plocha nemovitosti je 59 m2. Dostupné od 01.01.2027.

Představujeme Vám k prodeji pěkný byt 2+1 o celkové ploše 59 m², situovaný v osmém nadzemním podlaží devítipodlažního domu s výtahem v klidné části Bystřice u Benešova. Byt se nachází na adrese Dr. E. Beneše 403 a prošel kompletní rekonstrukcí v roce 2012. Bytová jednotka se pyšní vynikajícím uspořádáním s jižní a východní orientací, což zajišťuje příjemné osvětlení prostoru po většinu dne. Obývací pokoj je srdcem bytu, zde se snoubí pohodlí s funkcionalitou. Samostatná kuchyň s krásným výhledem je velmi praktická. Ložnice nabízí dostatek prostoru pro klidný odpočinek. K bytu náleží také sklepní kóje o výměře 2,5 m² a zasklená lodžie o velikosti 3 m², který poskytuje úchvatné výhledy na okolní krajinu a je ideálním místem pro relaxaci. Přesné výměry jednotlivých místností jsou následující: • Obývací pokoj: 20,15 m² • Ložnice: 15,99 m², • Kuchyň: 9,53 m², • Předsíň: 7,61 m², • Koupelna: 2,76 m², • Komora: 1,89 m², • WC: 1,06 m², Celková podlahová plocha bytu činí 59 m². K bytu dále náleží lodžie o výměře 3 m² a sklepní kóje o výměře 2,5 m² Celkový stav nemovitosti je hodnocen jako velmi dobrý bytový dům prošel rekonstrukcí, která zahrnovala: • Zateplení domu • Novou střechu • Výměnu oken (za plastová dvojskla) • Výměnu stoupaček. • Modernizaci výtahu Samotný byt prošel částečnou renovací v roce 2012. Ta zahrnovala: • Novou koupelnu • Kuchyň • Podlahy podlaha v kuchyni a na chodbě byla pokládána nová plovoucí v roce 2022 • Osazení plastových oken Dům je vytápěn centrálně z domovní kotelny. Zdrojem je společná kotelna umístěná v 1. podzemním podlaží (1.PP) domu. Bytová jednotka je osazena otopnými tělesy (radiátory) s termostatickými hlavicemi. Ohřev teplé vody je rovněž zajištěn centrálně ve společné kotelně. Lokalita Bystřice nabízí vše, co k pohodlnému životu potřebujete — od obchodů a služeb, přes školy a školky, až po sportovní zázemí. K tomu skvělé dopravní spojení: vlak, autobus i rychlá cesta do Benešova a Prahy. Nedaleko bytu se rozprostírá rybník, jehož okolí je ideální pro odpolední procházky či víkendové výlety do přírody. Nemovitost je možné financovat hypotékou, s jejímž vyřízením Vám rádi pomůžeme. Byt je aktuálně obývaný spolehlivými nájemníky s nájemní smlouvou do konce 31.12. 2026, což představuje atraktivní investiční příležitost. Pro sjednání prohlídky mě neváhejte kontaktovat. Těším se na Vás na prohlídce.

Cena
4 490 000 Kč
Provize
+ provize RK
Dispozice
2+1
Celková plocha
61 m2
Užitná plocha
59 m2
ID nabídky
973935
Aktualizace
05.02.2026
Aktivní dní
2
Forma vlastnictví
osobní
Typ budovy
cihlová
Stav
velmi dobrý
Vybavení
ne
Voda
vodovod
Podlaží
8
Podlaží celkem
10
Odpad
veřejná kanalizace
Stavba
cihlová
Sklep
ano
Patro
8
Lodžie
ano
Plocha sklepu
2
Elektřina
230V
Výtah
ano
Energetická nárocnost budovy
G - Mimořádně nehospodárná
Podle vyhlášky
č. 78/2013 Sb.
Plocha lodžie
3
Rok výstavby
1 980
Datum nastěhování
01.01.2027
Rok rekonstrukce
2 012
Doprava
silnice
dálnice
vlak
MHD
Podlaží podzemní
1
Aktivní
ano

poptat nemovitost

Odesláním formuláře udělujete souhlas s pravidly ochrany osobních údajů

Ing. Linda Schumpeterrealitní makléř

linda.schumpeter@century21.cz

CENTURY 21 Villa 4Human

Pražská 239, 28163, Kostelec nad Černými lesy

REKLAMA

spočítejte si svou hypotéku

svou hypotéku si právě počítá % zájemců

měsíční splátka

- Kč

Při úroku - % p.a.

Mám zájem o hypotéku

Odeslat ke kalkulaci

zpět na kalkulačkuOdesláním formuláře udělujete souhlas s pravidly ochrany osobních údajů
REKLAMA
Cookies
spočítat
hypotéku