Typ nemovitosti
Nerozhoduje
domydomy
domybyty
domypozemky
domykomerční nemovitosti
domyostatní nemovitosti
Typ nabídky
Nerozhoduje
Prodej
Pronájem
Aukce
Podíly
Kraj
Nerozhoduje
Karlovarský kraj
Plzeňský kraj
Jihočeský kraj
Ústecký kraj
Liberecký kraj
Moravskoslezský kraj
Zlínský kraj
Hl. město Praha
Olomoucký kraj
Královéhradecký kraj
Pardubický kraj
Jihomoravský kraj
Vysočina
Středočeský kraj

Pronájem prostor, výrobní prostor, Brno, okres brno-město - Komárov

35 000 Kč (za měsíc) Cena Neplatíte provizi. Prostor pronajímáme jako přímý majitel.

Pronájem prostor / výrobní prostor / 256 m2 - Pronájem prostor typu výrobní prostor za nabídkovou cenu 35 000 Kč. Vybraná nemovitost - Výrobní prostor. Typ vlastnictví osobní. Plocha nemovitosti je 256 m2. Dostupné od 08.01.2026.

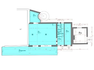
Pronájem vytápěné dílny 256 m² – ideální pro autoservis, výrobu nebo sklad K pronájmu nabízíme vytápěnou dílnu o celkové užitné ploše 256 m², která je vhodná pro provoz autoservisu, lehkou výrobu nebo skladování. Objekt se nachází v uzavřeném a dobře přístupném areálu a disponuje samostatným vstupem a dvěma vjezdy přímo do budovy. Tyto vjezdy umožňují pohodlnou manipulaci s materiálem i technikou. Dispozičně je prostor rozdělen na hlavní dílnu o výměře 100 m², sklad o velikosti 16 m² a chodbu s možností dalšího skladování o rozloze 80 m². Součástí je také vlastní sociální zázemí, zahrnující toaletu a umývárnu. Před objektem se nachází venkovní plocha s možností dodatečného pronájmu parkování pro více vozidel. Areál je oplocený, bezpečný a přístupný i pro nákladní dopravu. Zálohy na energie a služby budou stanoveny individuálně dle konkrétního typu provozu. Neplatíte provizi. Prostor pronajímáme jako přímý majitel.

Cena
35 000 Kč
Poznámka k ceně
Neplatíte provizi. Prostor pronajímáme jako přímý majitel.
Dispozice
výrobní prostor
Celková plocha
256 m2
Užitná plocha
256 m2
ID nabídky
KOM_C
Aktualizace
08.01.2026
Aktivní dní
1
Forma vlastnictví
osobní
Typ budovy
smíšená
Stav
velmi dobrý
Parkování
ano
Podlaží
1
Podlaží celkem
2
Stavba
smíšená
Patro
1
Typ domu
patrový
Parkování
ano
Výtah
ne
Energetická nárocnost budovy
G - Mimořádně nehospodárná
Podle vyhlášky
č. 78/2013 Sb.
Plocha nebytových prostor
256
Umístění objektu
okraj obce
Datum nastěhování
08.01.2026
Doprava
silnice
dálnice
autobus
MHD
Aktivní
ano

poptat nemovitost

Odesláním formuláře udělujete souhlas s pravidly ochrany osobních údajů

Zuzana Raganovárealitní makléř

brno@psn.cz

PSN, s. r. o.

Seifertova 823/9, 13000, Praha 3

REKLAMA

spočítejte si svou hypotéku

svou hypotéku si právě počítá % zájemců

měsíční splátka

- Kč

Při úroku - % p.a.

Mám zájem o hypotéku

Odeslat ke kalkulaci

zpět na kalkulačkuOdesláním formuláře udělujete souhlas s pravidly ochrany osobních údajů
REKLAMA
Cookies
spočítat
hypotéku