Typ nemovitosti
Nerozhoduje
domydomy
domybyty
domypozemky
domykomerční nemovitosti
domyostatní nemovitosti
Typ nabídky
Nerozhoduje
Prodej
Pronájem
Aukce
Podíly
Kraj
Nerozhoduje
Karlovarský kraj
Plzeňský kraj
Jihočeský kraj
Ústecký kraj
Liberecký kraj
Moravskoslezský kraj
Zlínský kraj
Hl. město Praha
Olomoucký kraj
Královéhradecký kraj
Pardubický kraj
Jihomoravský kraj
Vysočina
Středočeský kraj

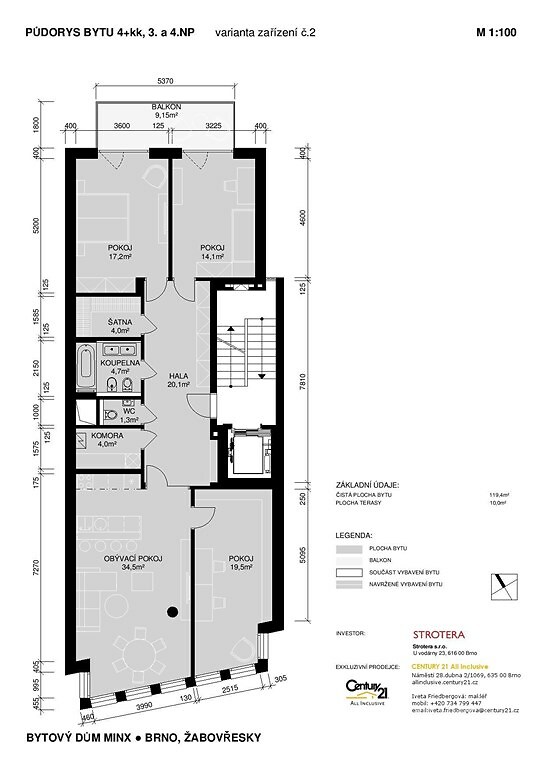
Pronájem bytu, 4+kk, Žabovřesky - Brno

Brno, 61 600, Minská 3235/62

40 000 Kč (za měsíc) Cena

Pronájem bytu / 4+kk / 131 m2 - Pronájem bytů typu 4+kk za nabídkovou cenu 40 000 Kč. Vybraná nemovitost - 4+kk se nachází v městské části Brno-Žabovřesky. Typ vlastnictví osobní. Plocha nemovitosti je 131 m2. Dostupné od 24.01.2026.

Prostor, světlo, komfort, krásný výhled z celého bytu, moderní architektura? Vše v jednom v Žabovřeskách. Jedinečná příležitost pronájmu bytu v Brně v Žabovřeskách o dispozici 4+KK a celkové ploše 129 m2. Prostorný, světlý byt o vnitřní podlahové ploše 120m2 s balkonem 9 m2 je orientován do klidného vnitrobloku do zahrad, nabízí uživatelům výhled na vzrostlé stromy. Parkování přímo v domě v zakladačích. Společným jmenovatelem celého bytového domu je mimořádné soukromí a velkorysý obytný prostor (na každém patře je pouze jeden byt), komfort (bezbariérový přístup výtahem až do bytu, parkování v domě) a světlo (dřevěná francouzská okna se skleněným zábradlím, speciální akustické ventilační mřížky do ulice). Špičkové standardy vybavení interiéru domu a bytu travertinový obklad vstupní haly, dřevěné dubové podlahy, dýhované dveře, s nerezovými klikami, koupelna s dvojumyvadlem a bidetem, podlahové topení s vlastním kotlem. Lokalita bytového domu je v oblíbené a vyhledávané čtvrti Brna „staré Žabovřesky“, nedaleko od centra města. V těsné blízkosti se nachází například Wilsonův les a sportovní areál Rosnička, ale také jedna z nejlepších základních škol města – ZŠ Sirotkova a elitní Gymnázium Matyáše Lercha. Autor projektu, prof. Ing. arch. Petr Pelčák, klade nebývalý důraz na kvalitní provedení a architekturu nejen domu jako celku, ale i řešením detailů interiérů. Cena podnájmu je 40.000, za byt, 2.000, za parkování. K ceně nájemného budou připočteny zálohy na služby ve výši 6.000, korun. Pro sjednání prohlídky Vašeho nového bydlení bez kompromisů kontaktujte makléřku. Volné ihned.

Cena
40 000 Kč
Dispozice
4+kk
Celková plocha
120 m2
Užitná plocha
131 m2
Terasa
ano
ID nabídky
973642
Aktualizace
26.01.2026
Aktivní dní
3
Forma vlastnictví
osobní
Typ budovy
cihlová
Stav
velmi dobrý
Podlaží
4
Podlaží celkem
8
Stavba
cihlová
Sklep
ano
Patro
4
Garáž
ano
Terasa
ano
Plocha sklepu
2
Elektřina
230V
Výtah
ano
Energetická nárocnost budovy
B - Velmi úsporná
Podle vyhlášky
č. 78/2013 Sb.
Rok výstavby
2 016
Datum nastěhování
24.01.2026
Plocha terasy
9
Aktivní
ano

poptat nemovitost

Odesláním formuláře udělujete souhlas s pravidly ochrany osobních údajů

Iveta Friedbergovárealitní makléř

iveta.friedbergova@century21.cz

CENTURY 21 4fin Reality

Na Hřebenech 1718/10, 14000, Praha 4

REKLAMA

spočítejte si svou hypotéku

svou hypotéku si právě počítá % zájemců

měsíční splátka

- Kč

Při úroku - % p.a.

Mám zájem o hypotéku

Odeslat ke kalkulaci

zpět na kalkulačkuOdesláním formuláře udělujete souhlas s pravidly ochrany osobních údajů
REKLAMA
Cookies
spočítat
hypotéku