Typ nemovitosti
Nerozhoduje
domydomy
domybyty
domypozemky
domykomerční nemovitosti
domyostatní nemovitosti
Typ nabídky
Nerozhoduje
Prodej
Pronájem
Aukce
Podíly
Kraj
Nerozhoduje
Karlovarský kraj
Plzeňský kraj
Jihočeský kraj
Ústecký kraj
Liberecký kraj
Moravskoslezský kraj
Zlínský kraj
Hl. město Praha
Olomoucký kraj
Královéhradecký kraj
Pardubický kraj
Jihomoravský kraj
Vysočina
Středočeský kraj

Dům na prodej, rodinný dům, Třemblat - Ondřejov

Ondřejov, 25 165, Hlavní 19

14 490 000 Kč (za nemovitost) Cena včetně provize

Dům na prodej / rodinný dům / 175 m2 - Domy na prodej typu rodinný dům za nabídkovou cenu 14 490 000 Kč. Vybraná nemovitost - Rodinný dům. Typ vlastnictví osobní. Plocha nemovitosti je 175 m2. Dostupné od 01.10.2025.

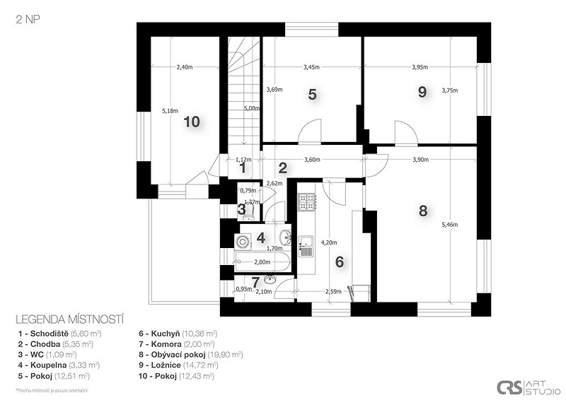
V obci Třemblat Ondřejov, nabízíme k prodeji prostorný vícegenerační dům se dvěma bytovými jednotkami. Dům je kompletně podsklepený, disponuje garáží, zahradním domkem a neobydlenou půdou. Celková zastavěná plocha domu činí 121 m² a nachází se na pozemku o velikosti 776 m². V 1.NP se nachází bytová jednotka o dispozici 3+1 s výměrou 88 m², která zahrnuje kuchyni, obývací pokoj, dvě ložnice, koupelnu, WC a komoru. V 2.NP je k dispozici druhý byt 4+1 o velikosti 87 m² s kuchyní, obývacím pokojem, třemi ložnicemi, koupelnou, WC, komorou a balkónem. Celková podlahová plocha rodinného domu činí 175 m². Suterén domu je řešen velmi prakticky – je zde garáž, kotelna, několik skladovacích místností a uhelný sklad. Dům je ve velmi dobrém technickém stavu a v poslední době prošel řadou úprav. Má nová plastová okna s trojskly, novou fasádu se zateplením a střechu po rekonstrukci, která je stará přibližně deset let. Objekt je odizolovaný a připravený k okamžitému bydlení. Vytápění je řešeno dvěma způsoby – automatickým kotlem na uhlí nebo tepelným čerpadlem vzduch/voda, mezi kterými lze jednoduše přepínat. Dům je napojený na kanalizaci a vodu zajišťuje jak vlastní studna, tak i obecní vodovod. Komín je vyvložkovaný s platnou revizí. Nemovitost je ideální pro vícegenerační bydlení. Dům zároveň nabízí do budoucna možnost jednoduché úpravy na dvě plně samostatné bytové jednotky se zajištěným soukromím pro každou domácnost. Díky půdě s možností vestavby má navíc nemovitost i do budoucna zajímavý potenciál pro rozšíření obytného prostoru. Zahrada poskytuje dostatek prostoru pro odpočinek i užitek – nachází se zde vzrostlý strom, menší políčko k pěstování a také zahradní domek. Obec Třemblat je součástí Ondřejova, který nabízí základní občanskou vybavenost – mateřskou i základní školu, obchody, provoz obecního úřadu i lékařskou ordinaci. Díky své poloze je lokalita velmi dobře dostupná do Prahy, a to jak autem po dálnici D1, tak i autobusovými spoji, které zajišťují pravidelné spojení s okolními městy a hlavním městem. Místo je vyhledávané pro klidné bydlení v blízkosti přírody, přesto však s dobrou dopravní dostupností. Pokud Vás tato nabídka zaujala, neváhejte kontaktovat makléře pro více informací či sjednání prohlídky.

Cena
14 490 000 Kč
Provize
včetně provize
Dispozice
rodinný dům
Celková plocha
175 m2
Užitná plocha
175 m2
ID nabídky
970500
Aktualizace
10.11.2025
Aktivní dní
4
Forma vlastnictví
osobní
Typ budovy
cihlová
Stav
po rekonstrukci
Vybavení
částečně
Voda
vodovod
Podlaží celkem
1
Odpad
veřejná kanalizace
Velikost
5 a více pokojů
Balkón
ano
Stavba
cihlová
Sklep
ano
Garáž
ano
Typ domu
přízemní
Plocha balkónu
12
Plocha sklepu
49
Elektřina
230V
Výtah
ne
Energetická nárocnost budovy
G - Mimořádně nehospodárná
Podle vyhlášky
č. 78/2013 Sb.
Plocha nebytových prostor
71
Poloha domu
samostatný
Míst k parkování
2
Datum nastěhování
01.10.2025
Rok rekonstrukce
2 025
Telekomunikace
telefon
internet
Aktivní
ano

poptat nemovitost

Odesláním formuláře udělujete souhlas s pravidly ochrany osobních údajů

Ing. Erik Šulcrealitní makléř

dreampraha@century21.cz

CENTURY 21 Dream

Radlická 759/32, 15000, Praha 5

REKLAMA

spočítejte si svou hypotéku

svou hypotéku si právě počítá % zájemců

měsíční splátka

- Kč

Při úroku - % p.a.

Mám zájem o hypotéku

Odeslat ke kalkulaci

zpět na kalkulačkuOdesláním formuláře udělujete souhlas s pravidly ochrany osobních údajů
REKLAMA
Cookies
spočítat
hypotéku