seřadit podle ceny
upravit hledání
Typ nemovitosti
Nerozhoduje
domydomy
domybyty
domypozemky
domykomerční nemovitosti
domyostatní nemovitosti
Typ nabídky
Nerozhoduje
Prodej
Pronájem
Aukce
Podíly
Kraj
Nerozhoduje
Karlovarský kraj
Plzeňský kraj
Jihočeský kraj
Ústecký kraj
Liberecký kraj
Moravskoslezský kraj
Zlínský kraj
Hl. město Praha
Olomoucký kraj
Královéhradecký kraj
Pardubický kraj
Jihomoravský kraj
Vysočina
Středočeský kraj
Tento inzerát již není aktivní.
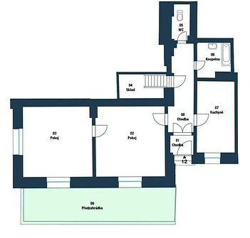
Bytová jednotka 2+1 s předzahrádkouBytová jednotka 2+1 s předzahrádkouBytová jednotka 2+1 s předzahrádkou
...
...
...
Kuchyně.Ložnice
10-Klostermannova-10042025_103627_defurnished10-Klostermannova-10042025_103716_defurnished10-Klostermannova-10042025_103732_defurnished

Celkem 10 inzerátů.

Cookies