Dům na prodej, rodinný dům, Černé Voděrady
Černé Voděrady, 28 163, Černokostelecká 19
4 290 000 Kč (za nemovitost) Cena + provize RK, Cena k jednání, Po dohodě je možné výhodně dokoupit stavební materiál pro dodělání plánované rekontrukceČerné Voděrady, 28 163, Černokostelecká 19
4 290 000 Kč (za nemovitost) Cena + provize RK, Cena k jednání, Po dohodě je možné výhodně dokoupit stavební materiál pro dodělání plánované rekontrukceDům na prodej / rodinný dům / 200 m2 - Domy na prodej typu rodinný dům za nabídkovou cenu 4 290 000 Kč. Vybraná nemovitost - Rodinný dům. Typ vlastnictví osobní. Plocha nemovitosti je 200 m2. Dostupné od 30.12.2025.
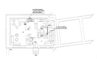
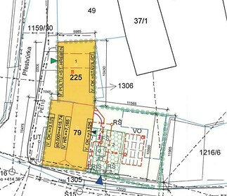
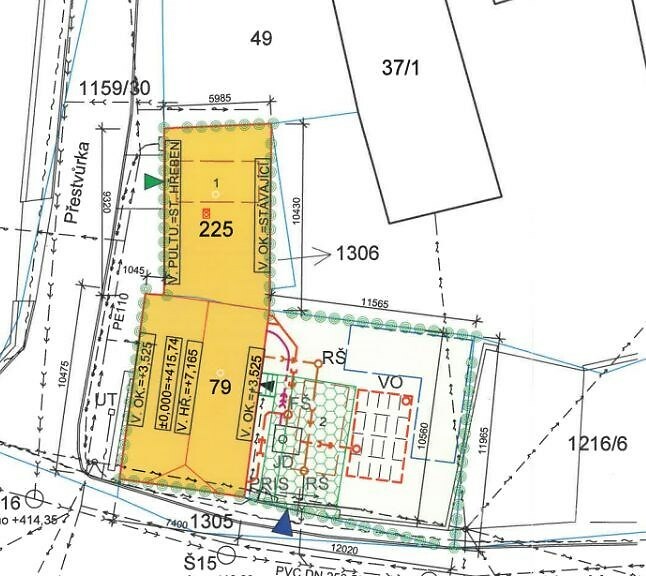
AKTUALIZACE SLEVA Zprostředkuji prodej dvoupodlažního rodinného domu s kompletním stavebním povolením pro jeho dokončení dle projektové dokumentace, která je součástí prodeje zdarma. Je vydáno stavební povolení. Vnitřní prostory jsou již vybourány na obvodové zdi, vše je připraveno k dokončení příček mezi místnostmi. Dispozice domu: 5+kk, dvě koupelny, dvě toalety, technická místnost, samostatná garáž. Dům již nyní disponuje novou plechovou střechou včetně nového laťování a částečně nového krovu, jsou osazena nová plastová okna i světlík na půdě. Půdní prostory mají připravené nové podlahy z OSB desek a izolaci z minerální vaty. Dům má již nově instalovanou vjezdovou bránu i branku. Dokončení celkové rekonstrukce je odhadováno na cca 1,5 milionu Kč. Za tuto investici můžete získat plnohodnotné rodinné bydlení za cenu menšího bytu v Praze. Jedná se o ideální příležitost pro ty, kdo hledají možnost vytvořit si vlastní domov v rodinném domě. Zastavěná plocha domu je 130 m2, užitná plocha přibližně 200 m2 a k tomu náleží malá pozemek o velikosti 120 m2. Stavba je cihlová, je napojená na vodovod, kanalizaci a elektřinu. Všechny přípojky jsou již zhotovené. Vytápění je navrženo kotlem na pelety a elektrickým kotlem, což zajišťuje energeticky úsporný provoz. K dispozici je kompletní projektová dokumentace včetně vyjádření dotčených úřadů a PENB úsporné třídy A. V rámci prodeje domu je možné dojednat i přenechaní stavebního materiálu (sádrokartony, izolační vata, plechy pro střechu na garáži, plastová okna, terasové dveře, vstupní bezpečnostní dveře, interiérové dveře, topná tělesa, kotel na pelety atd.). Nemovitost se nachází v obci Černé Voděrady v okrese Prahavýchod. Tato lokalita nabízí klidné bydlení s výbornou dostupností do Prahy _ přibližně 35 minut jízdy _ a rychlé spojení do okolních měst, jako jsou Říčany, Mnichovice nebo Kostelec nad Černými Lesy. Černé Voděrady leží v malebné krajině přibližně 34 km jihovýchodně od centra Prahy a jsou známé chráněnou krajinnou oblastí Voděradské bučiny, která je ideální pro cyklistiku i pěší výlety. Nedaleko je vstup do lesa a krásný rybník. V obci se nachází obecní úřad, restaurace, koupaliště a sportovní hřiště. Nejbližším městem s rozšířenou občanskou vybaveností jsou Mnichovice, vzdálené přibližně 8 km, kde jsou mateřské i základní školy. Pro více informací mne kontaktujte, ráda pomůžu s vyřízením hypotéky.

patricie.koukalova@century21.cz
Koněvova 2660/141, 13000, Praha 3