Typ nemovitosti
Nerozhoduje
domydomy
domybyty
domypozemky
domykomerční nemovitosti
domyostatní nemovitosti
Typ nabídky
Nerozhoduje
Prodej
Pronájem
Aukce
Podíly
Kraj
Nerozhoduje
Karlovarský kraj
Plzeňský kraj
Jihočeský kraj
Ústecký kraj
Liberecký kraj
Moravskoslezský kraj
Zlínský kraj
Hl. město Praha
Olomoucký kraj
Královéhradecký kraj
Pardubický kraj
Jihomoravský kraj
Vysočina
Středočeský kraj

Byt na prodej, 4+kk, Petrčane, Chorvatsko -

1 740 000 EUR (za nemovitost) Cena včetně provize

Byt na prodej / 4+kk / 261 m2 - Byty na prodej typu 4+kk za nabídkovou cenu 1 740 000 EUR. Vybraná nemovitost - 4+kk. Typ vlastnictví osobní. Plocha nemovitosti je 261 m2.

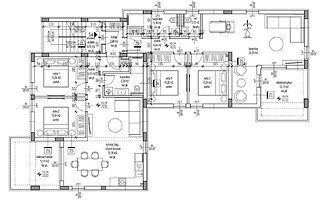
Apartmán S4 se nachází ve 2. patře a skládá se z: Kuchyně, jídelny a obývacího pokoje | 31,35 m2 Herny (nebo druhého obývacího prostoru) | 30,25 m2 Ložnice 1 | 10,54 m2 ložnice 2 | 10,54 m2 ložnice 3 | 10,28 m2 ložnice 4 | 10,24 m2 koupelna 1 | 5,38 m2 koupelna 2 | 5,16 m2 samostatné WC | 2,12 m2 Chodba 1 | 6,24 m² Chodba 2 | 2,68 m² Chodba 3 | 5,15 m² CELKOVÁ velikost bytu 129,93 m². K nemovitosti patří následující další prostory a vybavení: Krytý balkon 1 | 12,11 m² krytý balkon 2 | 12,13 m² kryté parkovací místo | 13,75 m² nekryté parkovací místo | 13,75 m² střešní terasa | 79,45 m² Celková plocha penthouse S4, včetně dalších částí a příslušenství, je 261,12 m² a celková užitná plocha je 171,55 m². Tento exkluzivní penthouse zabírá celé druhé patro budovy a nabízí nejvyšší komfort a prostornost. Díky atraktivní lokalitě je ideální pro rodinné bydlení nebo jako investice do luxusní nemovitosti. Byt se skládá ze čtyř prostorných ložnic, dvou elegantních koupelen a dvou otevřených obytných prostorů propojených s kuchyní a jídelnou, které poskytují dokonalou rovnováhu mezi soukromím a společným prostorem. Vizualizace ukazuje dvě křídla, jedno koncipované jako křídlo pro rodiče a druhé jako křídlo pro děti. Jedna místnost v křídle pro rodiče může být zařízena jako domácí kancelář. Během výstavby budovy je možné prostor rozdělit na dva samostatné byty. Všechny byty budou vybaveny parketovými a keramickými podlahami z nejkvalitnějších materiálů. Apartmány je možné kompletně zařídit na klíč dle přání klienta, a to za příplatek. MOŽNOST KRÁTKODOBÉHO PRONÁJMU! Zajišťujeme kompletní správu úklid, komunikaci s hosty a celý proces pronájmu. NEMOVITOSTI NA CHORVATSKÉM POBŘEŽÍ – ZEJMÉNA V TURISTICKY VYHLEDÁVANÝCH LOKALITÁCH JAKO ZADAR A PETRČANE, PATŘÍ MEZI NEJŽÁDANĚJŠÍ INVESTIČNÍ LOKALITY! klidná a bezpečná oblast krásné pláže, promenády, restaurace a kavárny blízkost Zadaru (město, letiště, služby) ideální kombinace druhého domova u moře a výdělečné investice DOSTUPNOST: AUTEM Z PRAHY: CCA 9 HODIN, LETECKY Z PRAHY: CCA 1 HODINA 25 MINUT, TRANSFER Z LETIŠTĚ ZADAR: CCA 30 MINUT

Cena
1 740 000 EUR
Provize
včetně provize
Dispozice
4+kk
Celková plocha
130 m2
Užitná plocha
261 m2
ID nabídky
974995
Aktualizace
21.02.2026
Aktivní dní
4
Forma vlastnictví
osobní
Typ budovy
smíšená
Stav
ve výstavbě
Vybavení
částečně
Parkování
ano
Voda
vodovod
Podlaží
3
Podlaží celkem
4
Odpad
veřejná kanalizace
Balkón
ano
Bazén
ano
Stavba
smíšená
Patro
3
Parkování
ano
Plocha balkónu
24
Elektřina
230V
Výtah
ne
Energetická nárocnost budovy
G - Mimořádně nehospodárná
Podle vyhlášky
č. 78/2013 Sb.
Rok výstavby
2 026
Míst k parkování
1
Telekomunikace
internet
Doprava
silnice
autobus
Aktivní
ano

poptat nemovitost

Odesláním formuláře udělujete souhlas s pravidly ochrany osobních údajů

Bc. Michal Riedelrealitní makléř

michal.riedel@century21.cz

CENTURY 21 Sea Side

Na Hřebenech II 1718/8, 14000, Praha 4

REKLAMA

spočítejte si svou hypotéku

svou hypotéku si právě počítá % zájemců

měsíční splátka

- Kč

Při úroku - % p.a.

Mám zájem o hypotéku

Odeslat ke kalkulaci

zpět na kalkulačkuOdesláním formuláře udělujete souhlas s pravidly ochrany osobních údajů
REKLAMA
Cookies
spočítat
hypotéku