Typ nemovitosti
Nerozhoduje
domydomy
domybyty
domypozemky
domykomerční nemovitosti
domyostatní nemovitosti
Typ nabídky
Nerozhoduje
Prodej
Pronájem
Aukce
Podíly
Kraj
Nerozhoduje
Karlovarský kraj
Plzeňský kraj
Jihočeský kraj
Ústecký kraj
Liberecký kraj
Moravskoslezský kraj
Zlínský kraj
Hl. město Praha
Olomoucký kraj
Královéhradecký kraj
Pardubický kraj
Jihomoravský kraj
Vysočina
Středočeský kraj

Pozemek na prodej, stavební parcely, Fulnek

Fulnek,

1 960 000 Kč (za nemovitost) Cena včetně provize

Pozemek na prodej / stavební parcely / 1229 m2 - Pozemky na prodej typu stavební parcely za nabídkovou cenu 1 960 000 Kč. Vybraná nemovitost - Stavební parcely. Typ vlastnictví osobní. Plocha nemovitosti je 1229 m2.

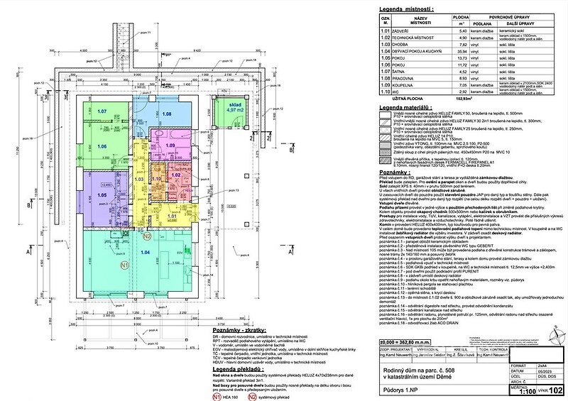
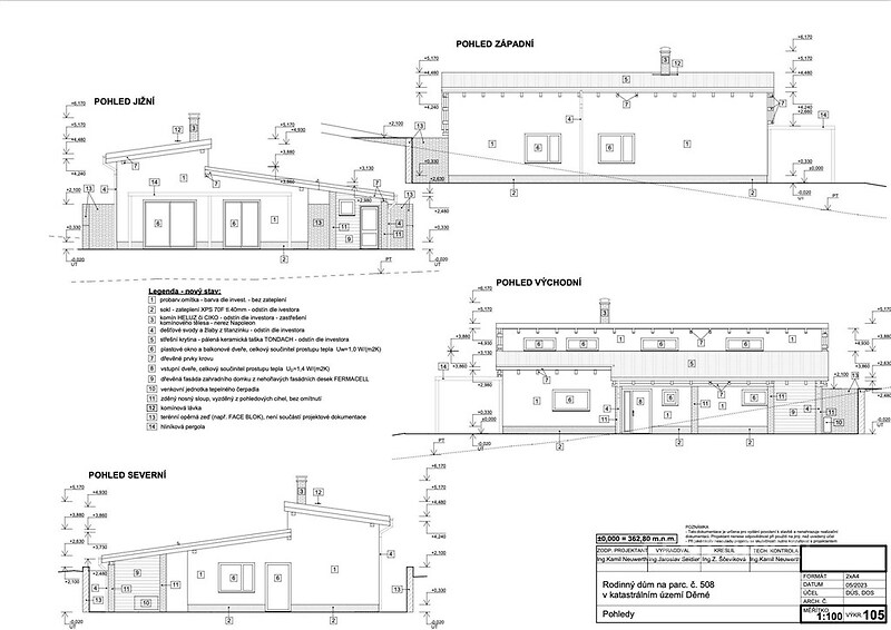
Chcete začít stavět ihned bez zbytečného čekání na úřady? Tenhle pozemek se schváleným stavebním povolením Vám to umožní. Máte sen o vlastním rodinném domě, kde se příroda snoubí s pohodlím moderního života? Tento stavební pozemek o rozloze 1229m², s nádherným výhledem na Zámek Fulnek a Beskydy, je připraven splnit vaše očekávání. Pozemek se nachází v klidné části Fulneku – Děrné. Přímo za ním se rozprostírá louka, kde se pasou koně, a okolí doplňují pole a lesík, které zajistí absolutní soukromí a pohodu. Všechny inženýrské sítě jsou na hranici pozemku a součástí stavebního povolení je i výstavba příjezdové cesty, přípojek a čističky odpadních vod. V dosahu máte vše potřebné obchod je 4 minuty pěšky, zastávka autobusu jen 270 metrů, v centru Fulneku jste autem za 5 minut a do Ostravy se dostanete během 25 minut po dálnici. Tento pozemek kombinuje klid venkova s výhodami města. Navíc díky orientaci pozemku na jihozápad si budete moct vychutnat nespočet západů slunce přímo z Vašeho obýváku. Navíc je již schválené stavební povolení na moderní jednopodlažní dům 4+kk o užitné ploše 103m². Tento jednopodlažní dům je navržen tak, aby splňoval potřeby moderní rodiny velký obývací pokoj s kuchyňským koutem, odkud se přes francouzská okna dostanete na prostornou terasu s výhledem na zahradu, zámek Fulnek a Beskydy. Samostatná ložnice s šatnou bude váš klidný úkryt s dostatkem místa pro vše potřebné. V domě jsou další dva pokoje, z nichž jeden má přímý vstup ze zahrady. Díky tomu je ideální jako pracovna nebo pokoj pro hosty. Prostorná koupelna je vybavena vanou i sprchovým koutem. Technická místnost a venkovní sklad zajistí dostatek místa pro sezónní věci nebo zahradní vybavení. Podlahové topení a kamna v obývacím pokoji nabízí maximální komfort a úsporu peněz. Kryté parkovací stání pro vaše auto zajistí, že už nikdy nebudete muset ometat sníh z auta. Jste připraveni postavit svůj vysněný domov? Zavolejte mi pro více informací a domluvíme si prohlídku!

Cena
1 960 000 Kč
Provize
včetně provize
Dispozice
stavební parcely
ID nabídky
965631
Aktualizace
21.10.2025
Aktivní dní
3
Forma vlastnictví
osobní
Podle vyhlášky
č. 78/2013 Sb.
Telekomunikace
telefon
Doprava
silnice
dálnice
autobus
Aktivní
ano

poptat nemovitost

Odesláním formuláře udělujete souhlas s pravidly ochrany osobních údajů

Patrik Rubinarealitní makléř

patrik.rubina@century21.cz

CENTURY 21 Real Tip

Poděbradova 909/41, 70200, Ostrava

REKLAMA

spočítejte si svou hypotéku

svou hypotéku si právě počítá % zájemců

měsíční splátka

- Kč

Při úroku - % p.a.

Mám zájem o hypotéku

Odeslat ke kalkulaci

zpět na kalkulačkuOdesláním formuláře udělujete souhlas s pravidly ochrany osobních údajů
REKLAMA
Cookies
spočítat
hypotéku