Prostory na prodej, kanceláře, Arnultovice - Nový Bor
Nový Bor, 47 301, Lidická 378
19 900 000 Kč (za nemovitost) Cena včetně provize, Cena k jednání domy
domy byty
byty pozemky
pozemky komerční nemovitosti
komerční nemovitosti ostatní nemovitosti
ostatní nemovitostiNový Bor, 47 301, Lidická 378
19 900 000 Kč (za nemovitost) Cena včetně provize, Cena k jednáníProstory na prodej / kanceláře / 760 m2 - Prostory na prodej typu kanceláře za nabídkovou cenu 19 900 000 Kč. Vybraná nemovitost - Kanceláře. Plocha nemovitosti je 760 m2. Dostupné od 22.05.2024.
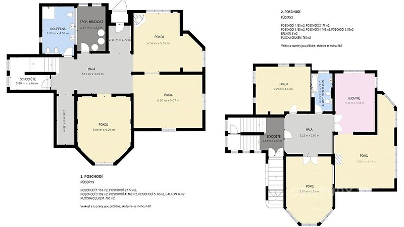
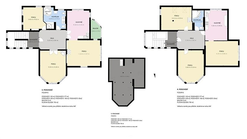
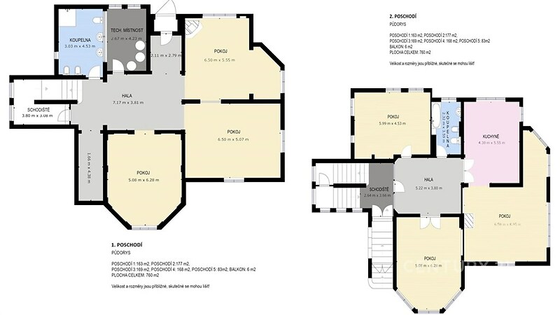
Exkluzivně nabízíme jedinečnou příležitost stát se majitelem impozantní vily v ArnultovicíchNovém Boru. Tato pozoruhodná historická secesní stavba o rozloze 760 m², s pěti poschodími a pozemkem o velikosti 3490 m², nabízí šanci spojit moderní pohodlí s historickým šarmem. Interiér vily: přízemí: hala, koupelna, technická místnost, a celkem 3 pokoje, z nichž jeden se pyšní velkým krbem; první poschodí: z haly vstoupíte do 2 pokojů, koupelny a kuchyně spojené s dalším pokojem, který disponuje dalšími kachlovými kamny; druhé poschodí: 3 pokoje, z toho 2 s kachlovými kamny, koupelna, kuchyně a balkon; třetí poschodí: 3 pokoje, koupelna, kuchyně; čtvrté poschodí: 3 pokoje, koupelna, kuchyně, s přístupem do podkroví s věžičkou. Exteriér vily je stejně působivý jako jeho interiér. S pozemkem o velikosti 3490 m² se vzrostlými stromy a s velkým dlážděným prostorem pro pohodlné parkování vozidel je zde dokonalá rovnováha mezi bydlením a přírodou. Pozemek je vyjma vzrostlých stromů bez dalšího zásahu, nabízí tedy možnost si vytvořit zahradu podle vlastních představ. V blízkosti je veškerá občanská vybavenost. Jedná se o krásnou lokalitu obklopenou přírodními památkami s velkým množstvím turistických stezek. Pokud máte zájem o prohlídku nebo další informace, neváhejte nás kontaktovat.
U Zvonařky 1413/13, 12000, Praha 2
