Typ nemovitosti
Nerozhoduje
domydomy
domybyty
domypozemky
domykomerční nemovitosti
domyostatní nemovitosti
Typ nabídky
Nerozhoduje
Prodej
Pronájem
Aukce
Podíly
Kraj
Nerozhoduje
Karlovarský kraj
Plzeňský kraj
Jihočeský kraj
Ústecký kraj
Liberecký kraj
Moravskoslezský kraj
Zlínský kraj
Hl. město Praha
Olomoucký kraj
Královéhradecký kraj
Pardubický kraj
Jihomoravský kraj
Vysočina
Středočeský kraj

Dům na prodej, rodinný dům, Cerhonice

Cerhonice, Cerhonice

8 390 000 Kč (za nemovitost) Cena + provize RK

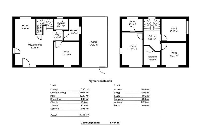
Dům na prodej / rodinný dům / 122 m2 - Domy na prodej typu rodinný dům za nabídkovou cenu 8 390 000 Kč. Vybraná nemovitost - Rodinný dům. Typ vlastnictví osobní. Plocha nemovitosti je 122 m2.

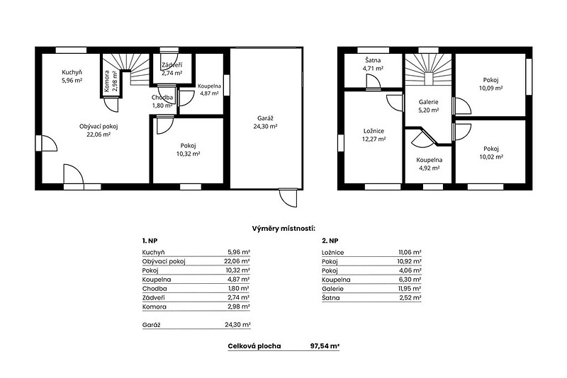
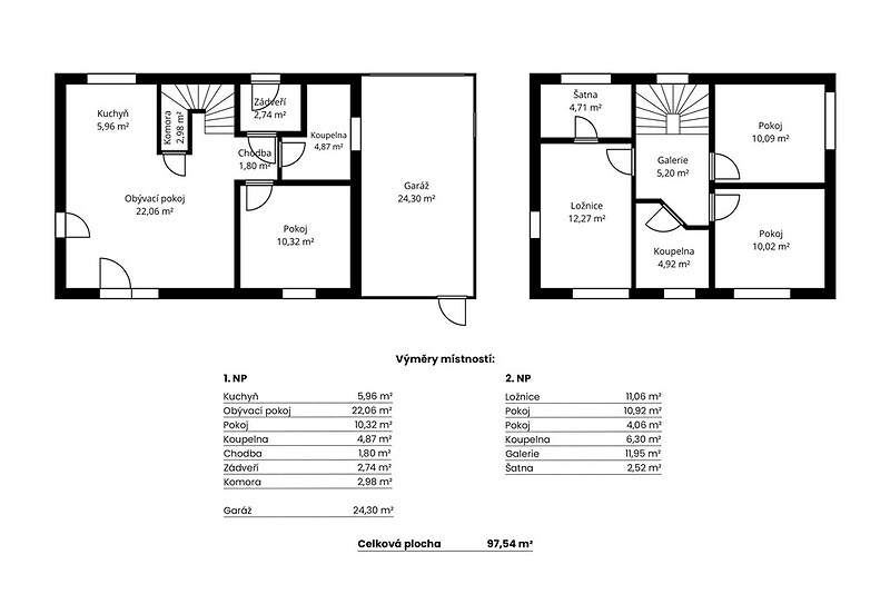
Hledáte dokonalé místo pro klidný rodinný život, kde se snoubí moderní design, kvalitní provedení a harmonické prostředí jihočeské krajiny? Právě pro vás je určena tato zcela nová, prostorná dřevostavba, situovaná v malebné obci Cerhonice. Tato moderní dřevostavba splňuje vysoké standardy současného bydlení – nabízí skvělou tepelnou úspornost, příjemné vnitřní klima a nadčasový design. Dům je kompletně nový a nezařízený, což umožňuje budoucím majitelům vytvořit si interiér přesně podle vlastních představ a životního stylu, jako inspirace slouží vizualizace místností. Dům je koncipován v dispozici 5+kk, obsahuje pět obytných místností, 2 koupelny, spíž plus kuchyň s jídelním prostorem, který je ideálním místem pro rodinné stolování. Obývací pokoj je dostatečně prostorný a díky velkým francouzským oknům je plný denního světla, což prostor činí velmi příjemným. V horním patře jsou 3 světlé pokoje z čehož 1 obsahuje vlastní šatnu. Nemovitost je situována na krásném, slunném pozemku o rozloze 1048 m², jenž poskytuje dostatek prostoru pro rodinný život, volnočasové aktivity i budoucí zahradní úpravy. Dům je postaven z kvalitních materiálů, což zaručuje nízkou energetickou náročnost (energetický štítek C). Je vytápěný tepelným čerpadlem vzduch/vzduch, ohřev vody zajišťuje přímotopy zásobník Ariston Nuos Primo o objemu 200 litrů. V domě je také klimatizace, která může sloužit i jako doplňkový zdroj tepla. Kanalizace je řešena vlastní ČOV. Na pozemku je vrt a uvnitř domu je čistička vody. Cerhonice jsou malebná jihočeská obec obklopená přírodou, která nabízí klidné bydlení mimo ruch města. Zároveň zde najdete veškerou potřebnou občanskou vybavenost v dosahu několika minut jízdy. Pro rodiny s dětmi i milovníky přírody jde o ideální místo. Také dopravní dostupnost je velmi dobrá díky autobusovému spojení a blízkosti větších měst, jako je Písek. Pro ty, kteří hledají klidné a příjemné bydlení v srdci Jihočeského kraje, je tento dům ideální volbou. Relaxe v rozlehlé zahradě, moderní vybavení domu a dostatek prostoru pro život činí z tohoto domova opravdu výjimečnou nabídku na trhu.

Cena
8 390 000 Kč
Provize
+ provize RK
Dispozice
rodinný dům
Celková plocha
126 m2
Užitná plocha
122 m2
Terasa
ano
ID nabídky
970975
Aktualizace
21.11.2025
Aktivní dní
3
Forma vlastnictví
osobní
Typ budovy
dřevostavba
Stav
novostavba
Vybavení
ne
Voda
vodovod
Podlaží celkem
1
Odpad
ČOV pro celý objekt
Velikost
5 a více pokojů
Stavba
dřevostavba
Garáž
ano
Typ domu
přízemní
Terasa
ano
Elektřina
230V
Výtah
ne
Energetická nárocnost budovy
C - Úsporná
Podle vyhlášky
č. 78/2013 Sb.
Ukazatel energetické nárocnosti budovy
79,00
Rok výstavby
2 023
Poloha domu
samostatný
Míst k parkování
2
Doprava
silnice
autobus
MHD
Aktivní
ano

poptat nemovitost

Odesláním formuláře udělujete souhlas s pravidly ochrany osobních údajů

Ing. Denisa J. Přibylovárealitní makléř

synergy@century21.cz

Century 21 Synergy

Ke Štvanici 656/3, 18600, Praha

REKLAMA

spočítejte si svou hypotéku

svou hypotéku si právě počítá % zájemců

měsíční splátka

- Kč

Při úroku - % p.a.

Mám zájem o hypotéku

Odeslat ke kalkulaci

zpět na kalkulačkuOdesláním formuláře udělujete souhlas s pravidly ochrany osobních údajů
REKLAMA
Cookies
spočítat
hypotéku