Dům na prodej, rodinný dům, Praha 4 - Újezd u Průhonic
Praha 4 - Újezd u Průhonic, Nad statkem
17 990 000 Kč (za nemovitost) Cena + provize RK, Informace o ceně v RK.Praha 4 - Újezd u Průhonic, Nad statkem
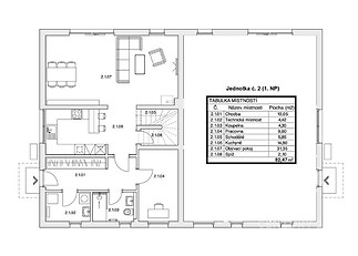
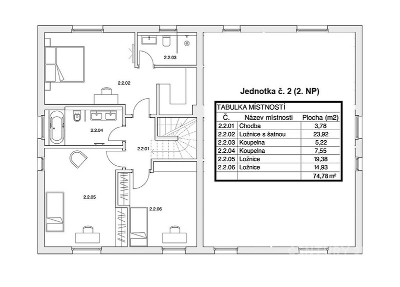
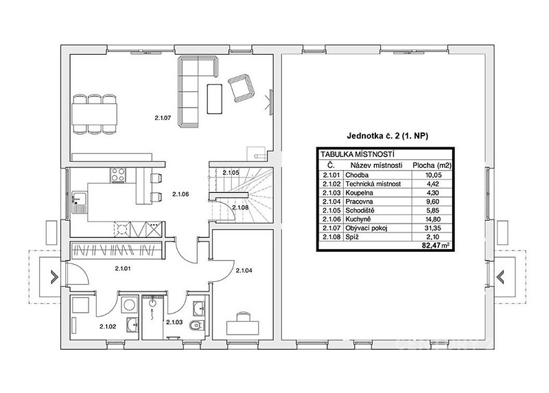
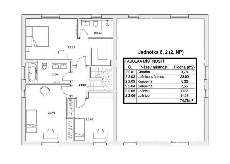
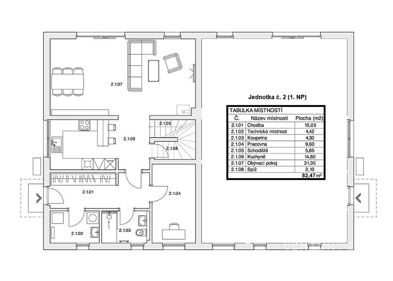
17 990 000 Kč (za nemovitost) Cena + provize RK, Informace o ceně v RK.Dům na prodej / rodinný dům / 157 m2 - Domy na prodej typu rodinný dům za nabídkovou cenu 17 990 000 Kč. Vybraná nemovitost - Rodinný dům. Typ vlastnictví osobní. Plocha nemovitosti je 157 m2. Dostupné od 31.05.2026.
Hledáte domov, který v sobě spojuje technologický nadstandard, blízkost přírody a rychlou dostupnost do centra hlavního města? Tato novostavba v žádané lokalitě v Praze, městské části Újezdu u Průhonic je připravena splnit i ty nejnáročnější požadavky. ZÁKLADNÍ PARAMETRY: Polovina domu: bytová jednotka v rodinném domě. Dispozice: 5+kk. Užitná plocha: 157 m². Pozemek zastavěná plocha, parkování a zahrada: 521 m². Parkování: až 5 vlastních parkovacích stání Stav: Zkolaudovaná novostavba a dokončení interiéru na klíč do 2 měsíců. Nyní je možnost vlastní volby účelu některých místností (koupelny, šatny, herna, pracovna). Blíže upřesní makléř. Proč si vybrat právě tento dům? 1. JISTOTA A KOMFORT BEZ STAROSTÍ Dům je již zkolaudovaný, což zaručuje hladký proces financování i převodu. V ceně je zahrnuto kompletní dokončení na klíč včetně služeb osobního designéra, který s vámi doladí finální podobu interiéru a připraví vizualizace. Design => Velkoformátové obklady a sanita prémiových značek (Villeroy & Boch, Hansgrohe, Grohe, Geberit, SOHO, Provenza). 2. TECHNOLOGICKÝ NADSTANDARD A ÚSPORY Dům je vybaven moderními technologiemi pro maximální komfort a nízké provozní náklady: Energetika => Tepelné čerpadlo, podlahové vytápění a vlastní fotovoltaika. Smart Home => Systém chytré domácnosti, elektrické žaluzie a zabezpečovací systém. 3. LOKALITA, KTERÁ NABÍZÍ TO NEJLEPŠÍ Újezd u Průhonic je vysoce ceněnou lokalitou kousek od Milíčovského lesa a Průhonického parku. Doprava => Zastávka MHD pouhých 170 m od domu, rychlé napojení na D1 (nájezdy Chodov/Čestlice). Služby => Školy, školky, sportoviště i obchodní centra (Chodov, Čestlice) do 10 minut autem. 4. BEZPEČNÝ NÁKUP Tato nemovitost je „klasickým produktem“ bez právních kliček. Ideální pro zájemce hledající jistotu při schvalování hypotéky nebo budoucím zhodnocení investice. Zaujala vás tato nabídka? Nečekejte, až vás někdo předběhne. Nemovitosti v této kvalitě a lokalitě se na trhu dlouho neohřejí. Kontaktujte nás a domluvte si prohlídku ještě dnes! Pozn.: Některé fotografie v inzerci využívají virtuální home staging pro ilustraci budoucího potenciálu interiéru.

Jeremiášova 2722/2a, 15500, Praha 13