Typ nemovitosti
Nerozhoduje
domydomy
domybyty
domypozemky
domykomerční nemovitosti
domyostatní nemovitosti
Typ nabídky
Nerozhoduje
Prodej
Pronájem
Aukce
Podíly
Kraj
Nerozhoduje
Karlovarský kraj
Plzeňský kraj
Jihočeský kraj
Ústecký kraj
Liberecký kraj
Moravskoslezský kraj
Zlínský kraj
Hl. město Praha
Olomoucký kraj
Královéhradecký kraj
Pardubický kraj
Jihomoravský kraj
Vysočina
Středočeský kraj

Dům na prodej, rodinný dům, Solnice

Solnice, Ještětická

7 512 500 Kč (za nemovitost) Cena včetně provize

Dům na prodej / rodinný dům / 95 m2 - Domy na prodej typu rodinný dům za nabídkovou cenu 7 512 500 Kč. Vybraná nemovitost - Rodinný dům. Typ vlastnictví osobní. Plocha nemovitosti je 95 m2. Dostupné od 01.05.2026.

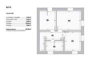
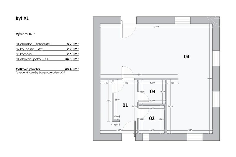
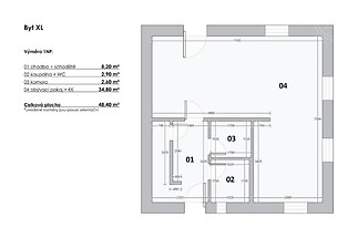
Hledáte klidné, moderní a ekologické bydlení? Tak zbystřete! V oblíbené a klidné lokalitě Solnice Kvasiny na vás čeká novostavba rodinného domu 4+kk o podlahové ploše 95 m², postavená na pozemku 199 m². Tento nízkoenergetický dům s hodnocením PENB A kombinuje stylovou architekturu s kvalitními materiály včetně perfektního zateplení. To vše doplněné solárními panely, které šetří vaši peněženku i planetu. Dispozice 4+kk je ideální pro mladou rodinu nebo pár, kteří chtějí klidné a pohodové bydlení. Efektivní dvě podlaží znamenají přirozené oddělení denní a noční části domu. Vychytávky, které si zamilujete: ✅ Možnost čerpání dotace Zelená úsporám až do výše 400.000 Kč – usnadní vám cestu k vlastnímu bydlení ✅ Soukromé parkovací stání přímo u domu ✅ Dům je obklopen malebnou zelení i blízkým rybníkem Lokalita, která má co nabídnout: 5 minut autem do Škoda Auto Kvasiny – ideální pro zaměstnance Vše potřebné po ruce – obchody, školka, škola, MHD i vlak Klidná a bezpečná ulice – ideální pro děti i domácí mazlíčky ‍‍‍‍ Nyní akční cena v rámci předprodeje. Za tuhle cenu získáte pohodové, zdravé a úsporné bydlení v krásné přírodě. Zavolejte mi nebo napište a domluvíme si prohlídku. Domy v této lokalitě se neohřejí dlouho!

Cena
7 512 500 Kč
Provize
včetně provize
Dispozice
rodinný dům
Celková plocha
95 m2
Užitná plocha
95 m2
Terasa
ano
ID nabídky
960907
Aktualizace
13.10.2025
Aktivní dní
4
Forma vlastnictví
osobní
Typ budovy
montovaná
Stav
novostavba
Parkování
ano
Voda
vodovod
Podlaží celkem
2
Odpad
veřejná kanalizace
Velikost
4 pokoje
Stavba
montovaná
Typ domu
patrový
Parkování
ano
Terasa
ano
Elektřina
400V
Výtah
ne
Energetická nárocnost budovy
A - Mimořádně úsporná
Podle vyhlášky
č. 78/2013 Sb.
Ukazatel energetické nárocnosti budovy
15,00
Rok výstavby
2 025
Poloha domu
řadový
Míst k parkování
1
Datum nastěhování
01.05.2026
Telekomunikace
internet
Plocha terasy
6
Aktivní
ano

poptat nemovitost

Odesláním formuláře udělujete souhlas s pravidly ochrany osobních údajů

Bc. Kateřina Šťastnárealitní makléř

info.reality@4fin.cz

CENTURY 21 4fin Reality

Na Hřebenech 1718/10, 14000, Praha 4

REKLAMA

spočítejte si svou hypotéku

svou hypotéku si právě počítá % zájemců

měsíční splátka

- Kč

Při úroku - % p.a.

Mám zájem o hypotéku

Odeslat ke kalkulaci

zpět na kalkulačkuOdesláním formuláře udělujete souhlas s pravidly ochrany osobních údajů
REKLAMA
Cookies
spočítat
hypotéku