Typ nemovitosti
Nerozhoduje
domydomy
domybyty
domypozemky
domykomerční nemovitosti
domyostatní nemovitosti
Typ nabídky
Nerozhoduje
Prodej
Pronájem
Aukce
Podíly
Kraj
Nerozhoduje
Karlovarský kraj
Plzeňský kraj
Jihočeský kraj
Ústecký kraj
Liberecký kraj
Moravskoslezský kraj
Zlínský kraj
Hl. město Praha
Olomoucký kraj
Královéhradecký kraj
Pardubický kraj
Jihomoravský kraj
Vysočina
Středočeský kraj

Dům na prodej, rodinný dům, Janovice nad Úhlavou

Janovice nad Úhlavou,

Info o ceně u RK

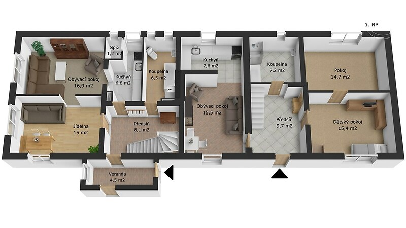
Dům na prodej / rodinný dům / 292 m2 - Domy na prodej typu rodinný dům za nabídkovou cenu Info o ceně u RK Kč. Vybraná nemovitost - Rodinný dům. Typ vlastnictví osobní. Plocha nemovitosti je 292 m2. Dostupné od 29.04.2025.

Hledáte místo, kde se dá pohodlně žít i podnikat? Kde máte dost prostoru pro sebe, rodinu i kamarády? Představujeme vám dům, který tohle všechno zvládá s přehledem. Tato cihlová stavba z roku 1976 se nachází v malebné Dubové Lhotě, části Janovic nad Úhlavou – jen pár minut od Klatov nebo Nýrska. S nadprůměrnou obytnou plochou, dvěma bytovými jednotkami a téměř 300 m² nebytových prostor nabízí nespočet možností využití – ať už pro velkou rodinu, jako investici, nebo jako zázemí pro podnikání. Stavba je prakticky rozdělena na hlavní dům a přilehlý samostatný byt. To otevírá dveře jak investorům, tak početnějším rodinám. Dům je primárně určen ke kompletní rekonstrukci, což vám umožní přetvořit jej přesně podle vašich představ. Pokud budete potřebovat pomoc, rádi vám doporučíme spolehlivé řemeslníky z okolí. Dům má vlastní studnu, napojení na elektřinu, plyn a v dohledné době i na nově vznikající kanalizaci. Vytápění je zajištěno kotlem na tuhá paliva a elektrickým kotlem. Velkou přidanou hodnotou jsou také hospodářské části – bývalá truhlárna, kolny a stodola, které dohromady tvoří dalších 293 m² užitné plochy. Můžete je využít k podnikání, dílně, skladování nebo je přestavět na další obytné prostory. Součástí prodeje je také rozlehlá zahrada o velikosti 3.112 m². Ta už dnes nabízí dostatek prostoru pro relax i pěstování, ale do budoucna má ještě větší potenciál – při změně územního plánu zde mohou vzniknout až čtyři nové stavební parcely. Veškerá občanská vybavenost – školy, obchody, lékař – je v dosahu pár minut jízdy. A pokud nemáte auto, jen pár kroků od domu je vlaková zastávka s pravidelným spojem třeba do Klatov. Navíc – za necelých deset minut jste v srdci Šumavy, kde vás čeká příroda, klid i nespočet aktivit po celý rok. Ať už hledáte prostorné rodinné bydlení, zajímavou investici nebo místo pro podnikání, tahle nabídka se nevidí každý den. Ozvěte se mi a domluvme si prohlídku. Budu se na vás těšit!

Cena
Info o ceně u RK
Provize
včetně provize
Dispozice
rodinný dům
Celková plocha
338 m2
Užitná plocha
292 m2
ID nabídky
966917
Aktualizace
15.09.2025
Aktivní dní
5
Forma vlastnictví
osobní
Typ budovy
cihlová
Stav
dobrý
Vybavení
částečně
Voda
místní zdroj vody
Podlaží celkem
3
Plyn
plynovod
Odpad
septik
Velikost
5 a více pokojů
Balkón
ano
Stavba
cihlová
Sklep
ano
Garáž
ano
Typ domu
patrový
Plocha balkónu
7
Plocha sklepu
40
Elektřina
400V
Výtah
ne
Energetická nárocnost budovy
G - Mimořádně nehospodárná
Podle vyhlášky
č. 78/2013 Sb.
Stav
rezervováno
Plocha nebytových prostor
293
Rok výstavby
1 976
Poloha domu
samostatný
Míst k parkování
2
Datum nastěhování
29.04.2025
Doprava
silnice
vlak
Podlaží podzemní
1
Aktivní
ano

poptat nemovitost

Odesláním formuláře udělujete souhlas s pravidly ochrany osobních údajů

Ondřej Löffelmannrealitní makléř

info.reality@4fin.cz

CENTURY 21 4fin Reality

Na Hřebenech 1718/10, 14000, Praha 4

REKLAMA

spočítejte si svou hypotéku

svou hypotéku si právě počítá % zájemců

měsíční splátka

- Kč

Při úroku - % p.a.

Mám zájem o hypotéku

Odeslat ke kalkulaci

zpět na kalkulačkuOdesláním formuláře udělujete souhlas s pravidly ochrany osobních údajů
REKLAMA
Cookies
spočítat
hypotéku