Typ nemovitosti
Nerozhoduje
domydomy
domybyty
domypozemky
domykomerční nemovitosti
domyostatní nemovitosti
Typ nabídky
Nerozhoduje
Prodej
Pronájem
Aukce
Podíly
Kraj
Nerozhoduje
Karlovarský kraj
Plzeňský kraj
Jihočeský kraj
Ústecký kraj
Liberecký kraj
Moravskoslezský kraj
Zlínský kraj
Hl. město Praha
Olomoucký kraj
Královéhradecký kraj
Pardubický kraj
Jihomoravský kraj
Vysočina
Středočeský kraj

Prostory na prodej, kanceláře, Praha 9 - Vysočany

Praha 9 - Vysočany, 19 000, Kolbenova 1032/5h

30 634 000 Kč (za nemovitost) Cena včetně provize

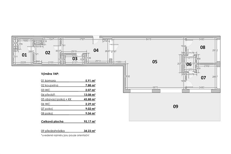
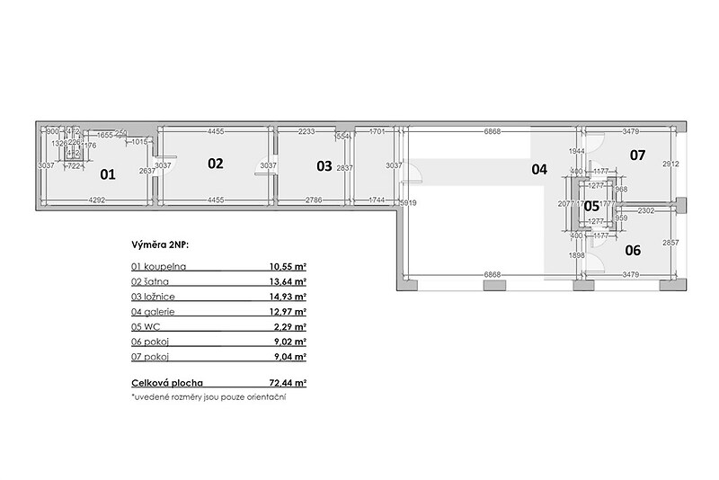
Prostory na prodej / kanceláře / 181 m2 - Prostory na prodej typu kanceláře za nabídkovou cenu 30 634 000 Kč. Vybraná nemovitost - Kanceláře se nachází v městské části Praha 9. Typ vlastnictví osobní. Plocha nemovitosti je 181 m2. Dostupné od 01.08.2025.

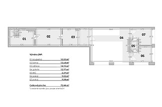
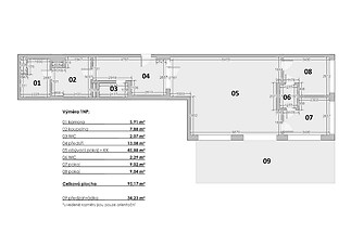
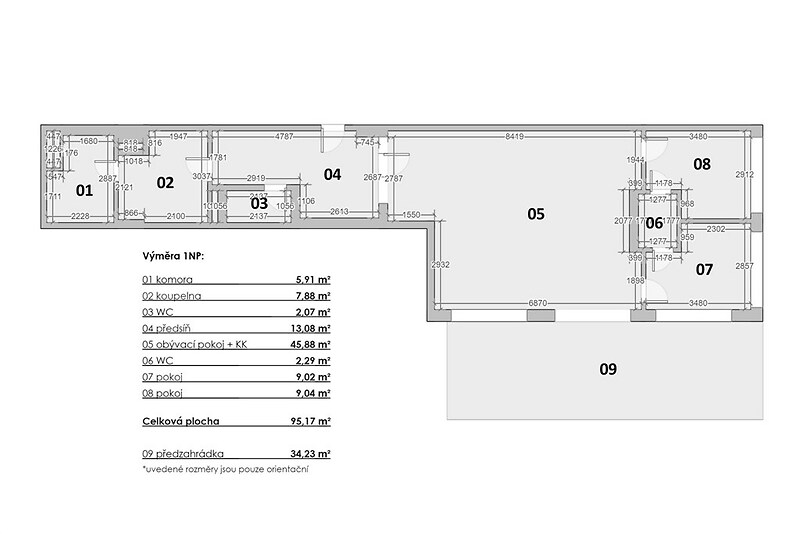
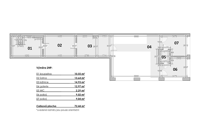
Hledáte prestižní prostor pro vaši firmu? Chcete ohromit své klienty případně zaměstnance? Nebo hledáte jedinečný prostor pro vaše podnikání jako v americkém filmu? V tom případě nabízíme k prodeji zcela unikátní ateliér s dispozicí 6+kk o celkové výměře 181 m2. Tento prostor v nově vzniklém developerském projektu je ideální pro firemní využití, nachází se hned v přízemí budovy vedle vchodu. Tento exkluzivní ateliér s rozlohou nabízí nejen luxusní prostor, ale také předzahrádku o velikosti 34 m², ideální pro firemní posezení u grilu. Vybavení a standardy: Rekuperace – zajišťuje čerstvý a zdravý vzduch po celý rok Klimatizace – pro příjemné klima ve všech ročních obdobích Podlahové topení – maximální komfort a efektivní vytápění Předokenní žaluzie – pro dokonalé stínění a soukromí Industriální styl celého projektu kombinuje přiznaný beton a původní konstrukci, celý dojem podtrhují velkoplošná hliníková okna. Fotky s vybavením slouží jako inspirace k vytvoření vlastní kanceláře. Lokalita: Projekt Lofty Kolbenova je situován v jedné z nejvíce rostoucích a perspektivních lokalit v Praze. Nabízí rychlou dostupnost do centra města, bohatou infrastrukturu a pestré možnosti pro volnočasové aktivity. Tramvajovou zastávku a metro máte přímo před domem (metro B Kolbenova). Pro milovníky umění nesmíme opomenout Prágovku přímo naproti domu. Skoro za rohem se nacházejí obchodní centra jako Fénix a Galerie Harfa. Pro fanoušky sportovních zápasů a velkých koncertů ideální bydlení v blízkosti O2 arény a zároveň v blízkosti přírody jako Klíčovské sady. Za 10 minut se tak můžete ocitnout jak v centru Prahy, tak na D10 nebo D11 při cestě do Krkonoš, Jizerských nebo Orlických hor, popřípadě na D8 do Krušných hor. Potenciál lokality dělá z bytu skvělou investiční příležitost. Investujte do luxusu, pohodlí a prestiže s Lofty Kolbenova. Jedná se o již hotový ateliér k předání. Pro víc informací o objektu a jiných dispozic bytů/ateliérů mě prosím kontaktujte.

Cena
30 634 000 Kč
Provize
včetně provize
Dispozice
kanceláře
Užitná plocha
181 m2
ID nabídky
960125
Aktualizace
04.02.2026
Forma vlastnictví
osobní
Typ budovy
smíšená
Stav
novostavba
Voda
vodovod
Podlaží celkem
6
Odpad
veřejná kanalizace
Stavba
smíšená
Sklep
ano
Garáž
ano
Typ domu
patrový
Výška stropu
6,00
Elektřina
230V
Výtah
ano
Energetická nárocnost budovy
B - Velmi úsporná
Podle vyhlášky
č. 78/2013 Sb.
Ukazatel energetické nárocnosti budovy
75,00
Plocha nebytových prostor
181
Rok výstavby
2 024
Datum nastěhování
01.08.2025
Obchodní plocha
181
Telekomunikace
telefon
internet
Doprava
silnice
autobus
MHD
Podlaží podzemní
1
Aktivní
ano

poptat nemovitost

Odesláním formuláře udělujete souhlas s pravidly ochrany osobních údajů

Erika Mezkovárealitní makléř

erika.mezkova@century21.cz

CENTURY 21 Birdie Reality

Rumunská 18/22, 12000, Praha 2

REKLAMA

spočítejte si svou hypotéku

svou hypotéku si právě počítá % zájemců

měsíční splátka

- Kč

Při úroku - % p.a.

Mám zájem o hypotéku

Odeslat ke kalkulaci

zpět na kalkulačkuOdesláním formuláře udělujete souhlas s pravidly ochrany osobních údajů
REKLAMA
Cookies
spočítat
hypotéku