Typ nemovitosti
Nerozhoduje
domydomy
domybyty
domypozemky
domykomerční nemovitosti
domyostatní nemovitosti
Typ nabídky
Nerozhoduje
Prodej
Pronájem
Aukce
Podíly
Kraj
Nerozhoduje
Karlovarský kraj
Plzeňský kraj
Jihočeský kraj
Ústecký kraj
Liberecký kraj
Moravskoslezský kraj
Zlínský kraj
Hl. město Praha
Olomoucký kraj
Královéhradecký kraj
Pardubický kraj
Jihomoravský kraj
Vysočina
Středočeský kraj

Byt na prodej, 3+kk, Vimperk II - Vimperk

Vimperk, Jirchářská

4 950 000 Kč (za nemovitost) Cena + provize RK

Byt na prodej / 3+kk / 69 m2 - Byty na prodej typu 3+kk za nabídkovou cenu 4 950 000 Kč. Vybraná nemovitost - 3+kk. Typ vlastnictví osobní. Plocha nemovitosti je 69 m2. Dostupné od 10.10.2025.

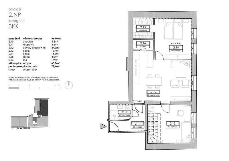
Investiční příležitost – Rezidence Volyňka, Vimperk Nově zrekonstruovaný byt 3+kk | 72 m² | 2. NP | Ihned k nastěhování Nabízím exkluzivně k prodeji atraktivní byt 3+kk o podlahové ploše 72 m², který se nachází v 2. nadzemním podlaží nově zrekonstruovaného bytového domu v rámci projektu Rezidence Volyňka.Tento byt je jedním z prvních dokončených a představuje skvělou investiční příležitost – jak pro dlouhodobý pronájem, tak i pro zhodnocení v čase. O projektu Rezidence Volyňka Rezidence Volyňka je unikátní developerský projekt, který přetváří areál bývalých tiskáren ve Vimperku v moderní rezidenční komplex.V rámci rekonstrukce zde vznikne více než 60 bytů – od útulných 1+kk až po prostorné mezonety 3+kk. Každá jednotka nese podpis kvalitního designu, důrazu na detail a funkčního uspořádání prostoru.Díky tomuto konceptu se projekt stává ideální volbou pro investory, kteří hledají stabilní a rostoucí hodnotu nemovitosti, nízkou vstupní cenu oproti větším městům, vysoký potenciál pronájmu v lokalitě s omezenou nabídkou moderních bytů. Dispozice bytu Byt nabízí promyšlené řešení: vstupní předsíň, koupelnu se sprchovým koutem a WC, prostorný obývací pokoj s kuchyní a jídelnou, včetně přípravy na kuchyňskou linku a praktické spíže, dvě ložnice, z nichž jedna disponuje vlastní šatnou. Byt se prodává nezařízený – ideální pro přizpůsobení dle vlastního vkusu nebo vybavení pro pronájem. Součástí nabídky je i sleva 10 % na nákup nábytku včetně kuchyňské linky v přilehlém nábytkovém studiu, které je součástí komplexu. Lokalita Vimperk je město s kompletní občanskou vybaveností – školy, školky, úřady, pošta, restaurace, lékař, obchody i sportoviště v docházkové vzdálenosti. Navíc se nachází v bráně Šumavy, která láká turisty po celý rok. To přináší výborný potenciál pro krátkodobé i dlouhodobé pronájmy (rekreační i pracovní). Proč investovat právě zde? Atraktivní cena za m² oproti srovnatelným projektům. Silná poptávka po kvalitním pronájmu v regionu. Stabilní zhodnocení díky rostoucímu zájmu o Šumavu. Možnost okamžitého pronájmu – byt je ihned k dispozici. Možnost financování hypotékou – zajistíme kompletní servis včetně nezávislého porovnání financování. Rezidence Volyňka – investice, která roste s časem.. Tento byt nabízí kombinaci klidné lokality, kvalitního provedení a silného investičního potenciálu. Neváhejte mě kontaktovat pro více informací nebo osobní prohlídku.

Cena
4 950 000 Kč
Provize
+ provize RK
Dispozice
3+kk
Celková plocha
72 m2
Užitná plocha
69 m2
ID nabídky
969398
Aktualizace
31.10.2025
Forma vlastnictví
osobní
Typ budovy
cihlová
Stav
po rekonstrukci
Vybavení
ne
Parkování
ano
Voda
vodovod
Podlaží
2
Podlaží celkem
3
Plyn
plynovod
Odpad
veřejná kanalizace
Stavba
cihlová
Patro
2
Parkování
ano
Elektřina
230V
Výtah
ne
Energetická nárocnost budovy
G - Mimořádně nehospodárná
Podle vyhlášky
č. 78/2013 Sb.
Rok výstavby
1 919
Datum nastěhování
10.10.2025
Rok rekonstrukce
2 025
Telekomunikace
internet
Doprava
silnice
vlak
Aktivní
ano

poptat nemovitost

Odesláním formuláře udělujete souhlas s pravidly ochrany osobních údajů

Marie Bardovárealitní makléř

marie.bardova@century21.cz

CENTURY 21 4fin Reality

Na Hřebenech 1718/10, 14000, Praha 4

REKLAMA

spočítejte si svou hypotéku

svou hypotéku si právě počítá % zájemců

měsíční splátka

- Kč

Při úroku - % p.a.

Mám zájem o hypotéku

Odeslat ke kalkulaci

zpět na kalkulačkuOdesláním formuláře udělujete souhlas s pravidly ochrany osobních údajů
REKLAMA
Cookies
spočítat
hypotéku