Typ nemovitosti
Nerozhoduje
domydomy
domybyty
domypozemky
domykomerční nemovitosti
domyostatní nemovitosti
Typ nabídky
Nerozhoduje
Prodej
Pronájem
Aukce
Podíly
Kraj
Nerozhoduje
Karlovarský kraj
Plzeňský kraj
Jihočeský kraj
Ústecký kraj
Liberecký kraj
Moravskoslezský kraj
Zlínský kraj
Hl. město Praha
Olomoucký kraj
Královéhradecký kraj
Pardubický kraj
Jihomoravský kraj
Vysočina
Středočeský kraj

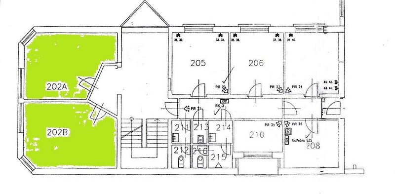
Pronájem prostor, kanceláře, Černovice - Brno

Brno, 61 800, Olomoucká 779/45

13 000 Kč (za měsíc) Cena

Pronájem prostor / kanceláře / 44 m2 - Pronájem prostor typu kanceláře za nabídkovou cenu 13 000 Kč. Vybraná nemovitost - Kanceláře se nachází v městské části Brno-Černovice. Plocha nemovitosti je 44 m2. Dostupné od 01.01.2026.

K pronájmu nabízíme dvě kanceláře v moderní administrativní budově na ulici Olomoucká v Brně. Kanceláře se nacházejí v 1. patře, jsou orientovány na jih. Každá kancelář má samostatný vstup, ale jsou i vzájemně propojené uzamykatelnými dveřmi. Celková plocha činí 44 m2 (21,3 m2 a 23,3 m2 ). Měsíční náklady: nájemné 13.000, Kč, paušální platby: odvoz odpadu 600, Kč, údržba komunikace 500, Kč, úklid spol. prostor 400, Kč, ostraha 600, Kč Zúčtovatelné zálohy: elektřina 2 500, Kč, topení plyn 2.500,Kč, voda 1000, Kč Všechny ceny + DPH. Majitel požaduje vratnou kauci ve výši jednoho měsíce včetně všech záloh, tedy: 21.100, Kč + DPH. Lokalita je dobře dostupná autem z D1, z centra města trolejbusem. Parkování před budovou. Více informací u makléře.

Cena
13 000 Kč
Dispozice
kanceláře
Užitná plocha
44 m2
ID nabídky
969560
Aktualizace
05.11.2025
Typ budovy
cihlová
Stav
velmi dobrý
Parkování
ano
Podlaží celkem
2
Stavba
cihlová
Typ domu
patrový
Parkování
ano
Energetická nárocnost budovy
G - Mimořádně nehospodárná
Podle vyhlášky
č. 78/2013 Sb.
Datum nastěhování
01.01.2026
Aktivní
ano

poptat nemovitost

Odesláním formuláře udělujete souhlas s pravidly ochrany osobních údajů

Iveta Friedbergovárealitní makléř

iveta.friedbergova@century21.cz

CENTURY 21 4fin Reality

Na Hřebenech 1718/10, 14000, Praha 4

REKLAMA

spočítejte si svou hypotéku

svou hypotéku si právě počítá % zájemců

měsíční splátka

- Kč

Při úroku - % p.a.

Mám zájem o hypotéku

Odeslat ke kalkulaci

zpět na kalkulačkuOdesláním formuláře udělujete souhlas s pravidly ochrany osobních údajů
REKLAMA
Cookies
spočítat
hypotéku