Typ nemovitosti
Nerozhoduje
domydomy
domybyty
domypozemky
domykomerční nemovitosti
domyostatní nemovitosti
Typ nabídky
Nerozhoduje
Prodej
Pronájem
Aukce
Podíly
Kraj
Nerozhoduje
Karlovarský kraj
Plzeňský kraj
Jihočeský kraj
Ústecký kraj
Liberecký kraj
Moravskoslezský kraj
Zlínský kraj
Hl. město Praha
Olomoucký kraj
Královéhradecký kraj
Pardubický kraj
Jihomoravský kraj
Vysočina
Středočeský kraj

Pronájem bytu, 2+kk, Praha 9 - Letňany

Praha 9 - Letňany, Tupolevova

23 000 Kč (za měsíc) Cena

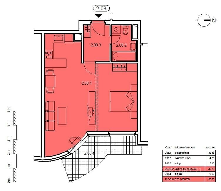
Pronájem bytu / 2+kk / 50 m2 - Pronájem bytů typu 2+kk za nabídkovou cenu 23 000 Kč. Vybraná nemovitost - 2+kk. Typ vlastnictví osobní. Plocha nemovitosti je 50 m2. Dostupné od 01.11.2025.

Nabízíme k dlouhodobému pronájmu světlý a prostorný byt 2+kk o velikosti 50 m² s garáží v žádané a klidné lokalitě Praha 9 – Letňany. Byt se nachází ve 2.NP cihlového bytového domu a disponuje balkonem s orientací na východ a výhledem do zeleně. V ceně nájmu je zahrnuto také parkovací stání v podzemní garáži bytového domu. Součástí bytového domu je soukromá oplocená zahrada, která je k dispozici pouze pro rezidenty bytového domu. Metro Letňany pouhé 4 minuty autobusem. Dispozice bytu 2kk: • vstupní chodba (5 m²) • obývací pokoj (25 m²) s přímým vstupem na balkon • kuchyňský kout s moderní kuchyňskou linkou, s vestavěnou troubou, varnou deskou • samostatně stojící lednice s mrazákem • ložnice (15 m²) s velkou postelí a vestavěnou prostornou skříní • koupelna s vanou, umyvadlem, pračkou a WC (4 m²) • prostorný balkon orientovaný na východ (9 m²) • plastová okna, žaluzie, závěsy Výhody bytového domu: • oplocená zahrada určená pouze pro rezidenty bytového domu • výtah v domě • garážové parkovací stání • k dispozici kočárkárna se stojany na kola • moderní novostavba s kvalitními materiály • klidné a moderní prostředí Lokalita Letňany je velmi oblíbeným místem pro současné bydlení: • skvělá dostupnost do centra Prahy • stanice metra C Letňany vzdálena 1,7 km • zastávka autobusu 3 minuty chůze od bytu • autobus na metro Letňany dojede za 4 minuty • OC Letňany, Cinema City, restaurace, obchody, Tesco přímo za domem • Aquapark Lagoon Letňany přímo za domem • Ice Arean přímo za domem • Surf Arena, BB arena s tenisovou halou v blízkosti • PVA Expo Praha Letňany v pěší vzdálenosti • školy, školky, pošta, poliklinika • rychlé napojení na dálnice D8 i D10 Velkou výhodou je také klidná atmosféra s množstvím zeleně. V blízkosti domu se rozkládá lesopark Letňany a okolní cyklostezky, které přímo vybízejí k procházkám, sportu a aktivnímu odpočinku. Cena: • nájemné: 23 000 Kč/měsíc včetně garážového stání • poplatky: 4 553, Kč/měsíc + zálohy na elektřinu • vratná kauce: 46 000, Kč • provize RK: 23 000, Kč + DPH Byt je k okamžitému nastěhování od 1.11.2025 a čeká na své první nájemce, kteří ocení nejen obchody a služby v těsné blízkosti domu. Neváhejte a domluvte si prohlídku tohoto exkluzivního bytu, budete nadšeni. Těším se na Vás! Marcela Lisacová

Cena
23 000 Kč
Dispozice
2+kk
Celková plocha
59 m2
Užitná plocha
50 m2
ID nabídky
968028
Aktualizace
14.10.2025
Forma vlastnictví
osobní
Typ budovy
cihlová
Stav
velmi dobrý
Vybavení
částečně
Voda
vodovod
Podlaží
2
Podlaží celkem
8
Odpad
veřejná kanalizace
Balkón
ano
Stavba
cihlová
Patro
2
Garáž
ano
Plocha balkónu
9
Elektřina
230V
Výtah
ano
Energetická nárocnost budovy
C - Úsporná
Podle vyhlášky
č. 78/2013 Sb.
Ukazatel energetické nárocnosti budovy
702,00
Míst k parkování
1
Datum nastěhování
01.11.2025
Telekomunikace
telefon
Doprava
MHD
Podlaží podzemní
1
Aktivní
ano

poptat nemovitost

Odesláním formuláře udělujete souhlas s pravidly ochrany osobních údajů

Marcela Lisacová, DiS.realitní makléř

marcela.lisacova@century21.cz

CENTURY 21 Harmony

Plk. Švece 188/1, 25101, Říčany

REKLAMA

spočítejte si svou hypotéku

svou hypotéku si právě počítá % zájemců

měsíční splátka

- Kč

Při úroku - % p.a.

Mám zájem o hypotéku

Odeslat ke kalkulaci

zpět na kalkulačkuOdesláním formuláře udělujete souhlas s pravidly ochrany osobních údajů
REKLAMA
Cookies
spočítat
hypotéku