Typ nemovitosti
Nerozhoduje
domydomy
domybyty
domypozemky
domykomerční nemovitosti
domyostatní nemovitosti
Typ nabídky
Nerozhoduje
Prodej
Pronájem
Aukce
Podíly
Kraj
Nerozhoduje
Karlovarský kraj
Plzeňský kraj
Jihočeský kraj
Ústecký kraj
Liberecký kraj
Moravskoslezský kraj
Zlínský kraj
Hl. město Praha
Olomoucký kraj
Královéhradecký kraj
Pardubický kraj
Jihomoravský kraj
Vysočina
Středočeský kraj

Byt na prodej, 3+kk, Řečkovice - Brno

Brno, Palackého třída

10 650 000 Kč (za nemovitost) Cena + provize RK

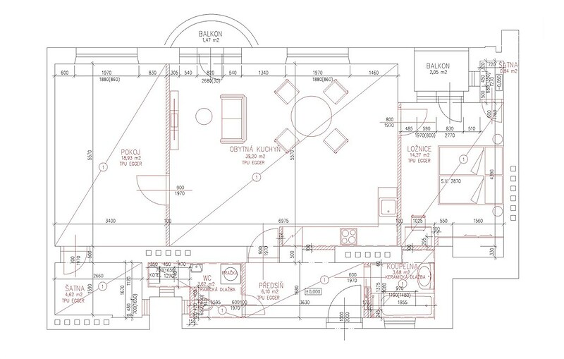
Byt na prodej / 3+kk / 94 m2 - Byty na prodej typu 3+kk za nabídkovou cenu 10 650 000 Kč. Vybraná nemovitost - 3+kk. Typ vlastnictví družstevní. Plocha nemovitosti je 94 m2.

Nabízíme k prodeji prostorný a kompletně zrekonstruovaný družstevní byt 3+kk o velikosti 94 m², který se nachází ve 4. patře domu s výtahem. Byt je ideální pro každého, kdo hledá moderní, pohodlné a zároveň cenově výhodnější bydlení. Klíčové výhody – proč právě družstevní byt Nižší pořizovací cena oproti osobnímu vlastnictví Rychlejší a jednodušší převod – bez zdlouhavých procesů katastru Nízké měsíční náklady díky dobře fungujícímu družstvu Bezpečná forma vlastnictví – družstvo pečuje o dům i společné prostory Lokalita – Palackého třída 10, Brno Jedna z nejlepších adres v Brně. Vše máte doslova u domu – školy, školky, obchody, kavárny, restaurace, lékaři i MHD. Do centra jste za pár minut. Okolí nabízí parky, sportoviště i cyklostezky. Hlavní přednosti bytu Světlý, příjemně prostorný interiér Kompletní moderní rekonstrukce – stačí se nastěhovat Dům s výtahem Velká společná zahrada za domem – ideální místo pro odpočinek, grilování či děti Společná domácí posilovna – máte ji kdykoli k dispozici Klidný a udržovaný dům s příjemnými sousedy Tento byt vás zaujme svou velikostí, pohodlím i atmosférou. Díky družstevní formě bydlení nabízí skvělý poměr ceny a kvality na velmi žádané adrese. Pro více informací nebo domluvu prohlídky mě neváhejte kontaktovat.

Cena
10 650 000 Kč
Provize
+ provize RK
Dispozice
3+kk
Celková plocha
100 m2
Užitná plocha
94 m2
ID nabídky
B17962PM
Aktualizace
05.08.2025
Aktivní dní
3
Forma vlastnictví
družstevní
Typ budovy
cihlová
Stav
po rekonstrukci
Vybavení
ano
Voda
vodovod
Podlaží
4
Podlaží celkem
7
Odpad
veřejná kanalizace
Balkón
ano
Stavba
cihlová
Sklep
ano
Patro
4
Lodžie
ano
Plocha balkónu
2
Elektřina
230V
Výtah
ano
Energetická nárocnost budovy
G - Mimořádně nehospodárná
Podle vyhlášky
č. 78/2013 Sb.
Plocha lodžie
2
Rok rekonstrukce
2 020
Podlaží podzemní
2
Aktivní
ano

poptat nemovitost

Odesláním formuláře udělujete souhlas s pravidly ochrany osobních údajů

Petr Měsíčekrealitní makléř

bonusbrno@century21.cz

CENTURY 21 Bonus Brno

Křenová 479/71, 60200, Brno

REKLAMA

spočítejte si svou hypotéku

svou hypotéku si právě počítá % zájemců

měsíční splátka

- Kč

Při úroku - % p.a.

Mám zájem o hypotéku

Odeslat ke kalkulaci

zpět na kalkulačkuOdesláním formuláře udělujete souhlas s pravidly ochrany osobních údajů
REKLAMA
Cookies
spočítat
hypotéku