Dům na prodej, chata, Poříčí nad Sázavou
Poříčí nad Sázavou, 25 721, Potočiny 409
1 990 000 Kč (za nemovitost) Cena včetně provize domy
domy byty
byty pozemky
pozemky komerční nemovitosti
komerční nemovitosti ostatní nemovitosti
ostatní nemovitostiPoříčí nad Sázavou, 25 721, Potočiny 409
1 990 000 Kč (za nemovitost) Cena včetně provizeDům na prodej / chata / 41 m2 - Domy na prodej typu chata za nabídkovou cenu 1 990 000 Kč. Vybraná nemovitost - Chata. Typ vlastnictví osobní. Plocha nemovitosti je 41 m2.
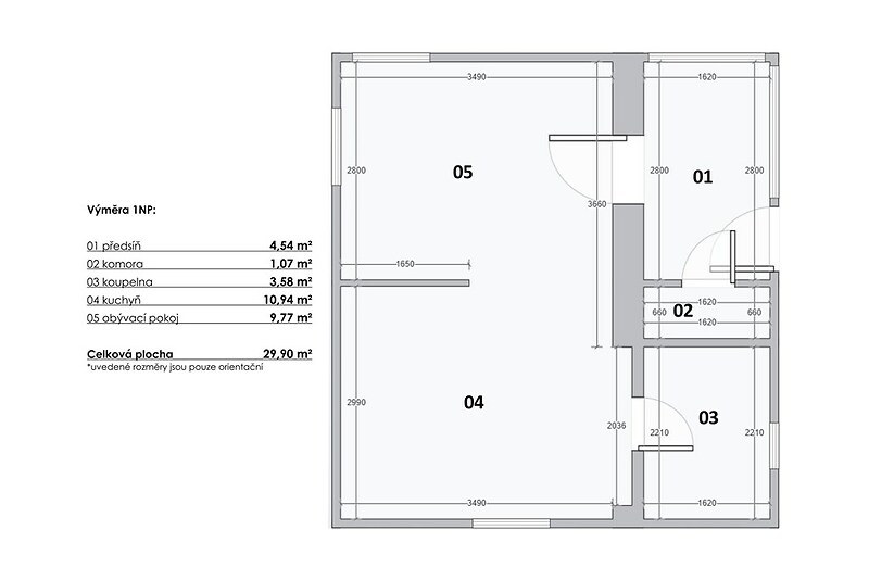
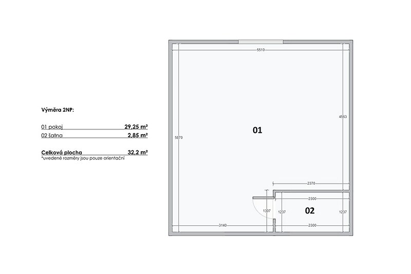
Nabízíme k prodeji rekreační chatu o velikosti cca 40 m², která se nachází v malebné a klidné lokalitě Poříčí nad Sázavou. Chata je vhodná pro rekreaci, relaxaci i případnou rekonstrukci dle vlastních představ. Základní informace: ✔ Lokalita: Poříčí nad Sázavou, Potočiny 409 ✔ Zastavěná plocha: 47 m² ✔ Pozemek: 263m2 ✔ Stav: Udržovaná, ale vhodná k úpravám ✔ Inženýrské sítě: Bez připojení na vodovod (nutnost vybudování studny – hydrologeologický posudek k dispozici) ✔ Elektřina: zavedena 230 V ✔ Přístup: Zpevněná cesta, celoroční přístup Popis chaty a okolí: Chata se nachází v krásném prostředí blízko řeky Sázavy, což z ní dělá ideální místo pro milovníky přírody, rybaření nebo vodních sportů. Okolí nabízí možnosti turistiky, cyklistiky a houbaření. Výborná dostupnost z Prahy, což umožňuje využití i na víkendové pobyty. Další informace: Možnost rekonstrukce dle vlastních potřeb Klidná chatová oblast obklopená zelení Dobrá dopravní dostupnost – (např. blízkost dálnice D1, vlakové nebo autobusové spojení)
