Typ nemovitosti
Nerozhoduje
domydomy
domybyty
domypozemky
domykomerční nemovitosti
domyostatní nemovitosti
Typ nabídky
Nerozhoduje
Prodej
Pronájem
Aukce
Podíly
Kraj
Nerozhoduje
Karlovarský kraj
Plzeňský kraj
Jihočeský kraj
Ústecký kraj
Liberecký kraj
Moravskoslezský kraj
Zlínský kraj
Hl. město Praha
Olomoucký kraj
Královéhradecký kraj
Pardubický kraj
Jihomoravský kraj
Vysočina
Středočeský kraj

Dům na prodej, rodinný dům, Svobodné Dvory - Hradec Králové

Hradec Králové, Nová

8 900 000 Kč (za nemovitost) Cena včetně provize

Dům na prodej / rodinný dům / 102 m2 - Domy na prodej typu rodinný dům za nabídkovou cenu 8 900 000 Kč. Vybraná nemovitost - Rodinný dům. Plocha nemovitosti je 102 m2.

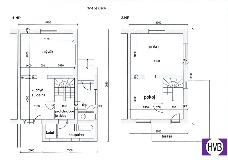
Nabízíme k prodeji rodinný dům 3+1, 101m2, na pozemku 499m2, lokalita Hradec Králové - Svobodné Dvory, ulice Nová. Jedná se o dvoupodlažní dům kolaudovaný v 50. letech minulého století, rekonstruován před cca 10 ti lety. V přízemí se nachází velký obývací pokoj a velká jídelna se vstupem na zahradu, vstupní prostor, dále koupelna s vanou, místnost pro kotel a chodba se schodišti do sklepa a do 2.NP. Ve 2.NP se nachází dva pokoje a chodba. Část domu je podsklepená. Součástí domu je větší zděná garáž s dílnou a zděná kůlna. Za těmito stavbami se se nachází klidná zahrada cca 200m2. Nemovitost se nachází v klidné oblasti krajského města v okolní zástavbě RD a luk. Možnost financovat hypotékou, výhodně vyřídíme. Bližší info telefonicky nebo mailem.

Cena
8 900 000 Kč
Provize
včetně provize
Cena k jednání
ne
Dispozice
rodinný dům
Celková plocha
106 m2
Užitná plocha
102 m2
ID nabídky
N2516883
Aktualizace
30.01.2026
Aktivní dní
67
Typ budovy
cihlová
Stav
velmi dobrý
Vybavení
částečně
Parkování
ano
Voda
místní zdroj vody
studna
Podlaží celkem
2
Plyn
plynovod
Odpad
veřejná kanalizace
Velikost
3 pokoje
Balkón
ne
Bazén
ne
Stavba
cihlová
Sklep
ano
Garáž
ano
Lodžie
ne
Typ domu
patrový
Parkování
ano
Terasa
ne
Rok kolaudace
1 945
Nízkoenergetický
ne
Plocha sklepu
4
Elektřina
400V
230V
Energetická nárocnost budovy
G - Mimořádně nehospodárná
Podle vyhlášky
c. 264/2020 Sb.
Počet garáží
1
Plocha zahrady
297
Hypotéka
ne
Poloha domu
samostatný
Umístění objektu
klidná část obce
Míst k parkování
2
Převod do OV
ne
Komunikace
asfaltová
Zástavba
bydlení
Doprava
silnice
dálnice
autobus
vlak
MHD
Aktivní
ano

poptat nemovitost

Odesláním formuláře udělujete souhlas s pravidly ochrany osobních údajů

Ing. Petr Seidelrealitní makléř

pseidel@hvbreal.cz

HVB Real Estate s.r.o.

Korunní 1310/56, 12000, Praha 2

REKLAMA

spočítejte si svou hypotéku

svou hypotéku si právě počítá % zájemců

měsíční splátka

- Kč

Při úroku - % p.a.

Mám zájem o hypotéku

Odeslat ke kalkulaci

zpět na kalkulačkuOdesláním formuláře udělujete souhlas s pravidly ochrany osobních údajů
REKLAMA
Cookies
spočítat
hypotéku