Typ nemovitosti
Nerozhoduje
domydomy
domybyty
domypozemky
domykomerční nemovitosti
domyostatní nemovitosti
Typ nabídky
Nerozhoduje
Prodej
Pronájem
Aukce
Podíly
Kraj
Nerozhoduje
Karlovarský kraj
Plzeňský kraj
Jihočeský kraj
Ústecký kraj
Liberecký kraj
Moravskoslezský kraj
Zlínský kraj
Hl. město Praha
Olomoucký kraj
Královéhradecký kraj
Pardubický kraj
Jihomoravský kraj
Vysočina
Středočeský kraj

Pronájem prostor, kanceláře, Rosice

Rosice, 66 501, Komenského náměstí 1226

12 000 Kč (za měsíc) Cena

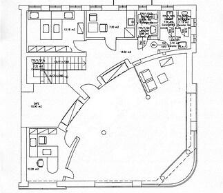
Pronájem prostor / kanceláře / 100 m2 - Pronájem prostor typu kanceláře za nabídkovou cenu 12 000 Kč. Vybraná nemovitost - Kanceláře. Typ vlastnictví osobní. Plocha nemovitosti je 100 m2. Dostupné od 17.02.2026.

Nabízíme k pronájmu kancelářské prostory 100 m2, Rosice, Komenského náměstí. Jedná se celé 1. patro budovy se samostatným vstupem. Prostory jsou ideální jako reprezentativní sídlo firmy, s kompletním zázemím. Hlavní prostor, oreintace Východní, cca 45 m2, dále dvě menší kanceláře 13 a 12 m2, sklad bez oken 11 m2. Na patře je dále malá kuchyňka, oddělené WC a místnost pro úklid. Náklady: nájemné 12.000, Kč, energie 7.000, Kč ( voda, plyn topení, elektřina) Měření energií je oddělené. Majitel požaduje jednoměsíční vratnou kauci. K dispozici je také druhé patro (najem 6.000, Kč) viz samostatný inzerát. V případě proájmu obou pater bude snížené nájemné. Volné ihned vice infromací u makléře.

Cena
12 000 Kč
Dispozice
kanceláře
Užitná plocha
100 m2
ID nabídky
974773
Aktualizace
17.02.2026
Forma vlastnictví
osobní
Typ budovy
cihlová
Stav
dobrý
Voda
vodovod
Podlaží celkem
3
Odpad
veřejná kanalizace
Stavba
cihlová
Typ domu
patrový
Elektřina
230V
Energetická nárocnost budovy
G - Mimořádně nehospodárná
Podle vyhlášky
č. 78/2013 Sb.
Plocha nebytových prostor
70
Datum nastěhování
17.02.2026
Aktivní
ano

poptat nemovitost

Odesláním formuláře udělujete souhlas s pravidly ochrany osobních údajů

Iveta Friedbergovárealitní makléř

iveta.friedbergova@century21.cz

CENTURY 21 4fin Reality

Na Hřebenech 1718/10, 14000, Praha 4

REKLAMA

spočítejte si svou hypotéku

svou hypotéku si právě počítá % zájemců

měsíční splátka

- Kč

Při úroku - % p.a.

Mám zájem o hypotéku

Odeslat ke kalkulaci

zpět na kalkulačkuOdesláním formuláře udělujete souhlas s pravidly ochrany osobních údajů
REKLAMA
Cookies
spočítat
hypotéku