Typ nemovitosti
Nerozhoduje
domydomy
domybyty
domypozemky
domykomerční nemovitosti
domyostatní nemovitosti
Typ nabídky
Nerozhoduje
Prodej
Pronájem
Aukce
Podíly
Kraj
Nerozhoduje
Karlovarský kraj
Plzeňský kraj
Jihočeský kraj
Ústecký kraj
Liberecký kraj
Moravskoslezský kraj
Zlínský kraj
Hl. město Praha
Olomoucký kraj
Královéhradecký kraj
Pardubický kraj
Jihomoravský kraj
Vysočina
Středočeský kraj

Pronájem prostor, kanceláře, Praha 10 - Dolní Měcholupy

Praha 10 - Dolní Měcholupy, 11 101, Za zastávkou 373

14 794 Kč (za měsíc) Cena + DPH + služby + případný pronájem parkovacích míst

Pronájem prostor / kanceláře / 42 m2 - Pronájem prostor typu kanceláře za nabídkovou cenu 14 794 Kč. Vybraná nemovitost - Kanceláře se nachází v městské části Praha-Dolní Měcholupy. Typ vlastnictví osobní. Plocha nemovitosti je 42 m2. Dostupné od 05.12.2025.

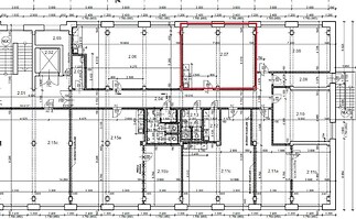
Nabízíme k pronájmu kancelářské prostory (A12/2.07) o celkové výměře 42,27 m² ve vyhledávané lokalitě Praha 10 – Dolní Měcholupy. Prostory se nachází ve 2. NP administrativní budovy Areálu PM (vjezd z ulice Za zastávkou) s výtahem a s bezbariérovým přístupem. K dispozici jsou i další prostory k pronájmu na patře o výměře 152 m² (A12/2.15) nebo 58 m² (A12/3.23) za cenu 350, Kč/m². Dispozice a vybavení kanceláře (A12/2.07) • světlé kanceláře orientované na východ • zátěžové koberce, klimatizace, plastová okna, žaluzie • kanceláře se pronajímají nezařízené • sociální zázemí (pánské / dámské toalety) společné na patře Parkování a služby: • možnost pronájmu parkovacího stání v areálu za 800 Kč/měsíc + DPH • internet – poskytovatel Fiber Connections • elektřina účtována měsíčně dle skutečné spotřeby • vytápění, výtah a údržba společných prostor jsou zahrnuty v měsíčním nájemném Kancelářské prostory jsou vhodné pro: • IT společnosti • Administrativní a backoffice týmy • Telekomunikační společnosti • Účetní a daňové kanceláře • Marketingové nebo reklamní agentury • Poradenské firmy (business, HR, finance…) • Architektonická či projektová studia • Startupy a malé podnikatelské týmy • Servisní a zákaznická podpora • Právní nebo advokátní kanceláře • Projekční nebo inženýrské firmy • Realitní kanceláře Dopravní dostupnost: • vlaková zastávka Horní Měcholupy – 400 m • autobusové zastávky Průmstav a Nádraží Horní Měcholupy – 400 m • v areálu jídelna, v blízkosti jsou restaurace, Kaufland, OC Retail Park Poplatky za kancelář: • nájemné: 14 794,50 Kč/měsíc + DPH • poplatky dle reálné spotřeby • kauce: 1 měsíční nájem + DPH • provize RK: 1 měsíční nájem + DPH Preferujeme dlouhodobého nájemce (plátce DPH). K nastěhování ihned. Neváhejte mě kontaktovat a domluvit si prohlídku. Věřím, že Vás tyto prostory nadchnou. Marcela Lisacová, tel. +420 602 102 745

Cena
14 794 Kč
Poznámka k ceně
+ DPH + služby + případný pronájem parkovacích míst
Dispozice
kanceláře
Užitná plocha
42 m2
ID nabídky
971860
Aktualizace
06.12.2025
Forma vlastnictví
osobní
Typ budovy
smíšená
Stav
velmi dobrý
Parkování
ano
Voda
vodovod
Podlaží
2
Podlaží celkem
3
Odpad
veřejná kanalizace
Stavba
smíšená
Patro
2
Typ domu
patrový
Parkování
ano
Elektřina
230V
Výtah
ano
Energetická nárocnost budovy
E - Nehospodárná
Podle vyhlášky
č. 78/2013 Sb.
Ukazatel energetické nárocnosti budovy
662,00
Datum nastěhování
05.12.2025
Telekomunikace
telefon
internet
Doprava
silnice
vlak
MHD
Aktivní
ano

poptat nemovitost

Odesláním formuláře udělujete souhlas s pravidly ochrany osobních údajů

Marcela Lisacová, DiS.realitní makléř

marcela.lisacova@century21.cz

CENTURY 21 Harmony

Plk. Švece 188/1, 25101, Říčany

REKLAMA

spočítejte si svou hypotéku

svou hypotéku si právě počítá % zájemců

měsíční splátka

- Kč

Při úroku - % p.a.

Mám zájem o hypotéku

Odeslat ke kalkulaci

zpět na kalkulačkuOdesláním formuláře udělujete souhlas s pravidly ochrany osobních údajů
REKLAMA
Cookies
spočítat
hypotéku