Typ nemovitosti
Nerozhoduje
domydomy
domybyty
domypozemky
domykomerční nemovitosti
domyostatní nemovitosti
Typ nabídky
Nerozhoduje
Prodej
Pronájem
Aukce
Podíly
Kraj
Nerozhoduje
Karlovarský kraj
Plzeňský kraj
Jihočeský kraj
Ústecký kraj
Liberecký kraj
Moravskoslezský kraj
Zlínský kraj
Hl. město Praha
Olomoucký kraj
Královéhradecký kraj
Pardubický kraj
Jihomoravský kraj
Vysočina
Středočeský kraj

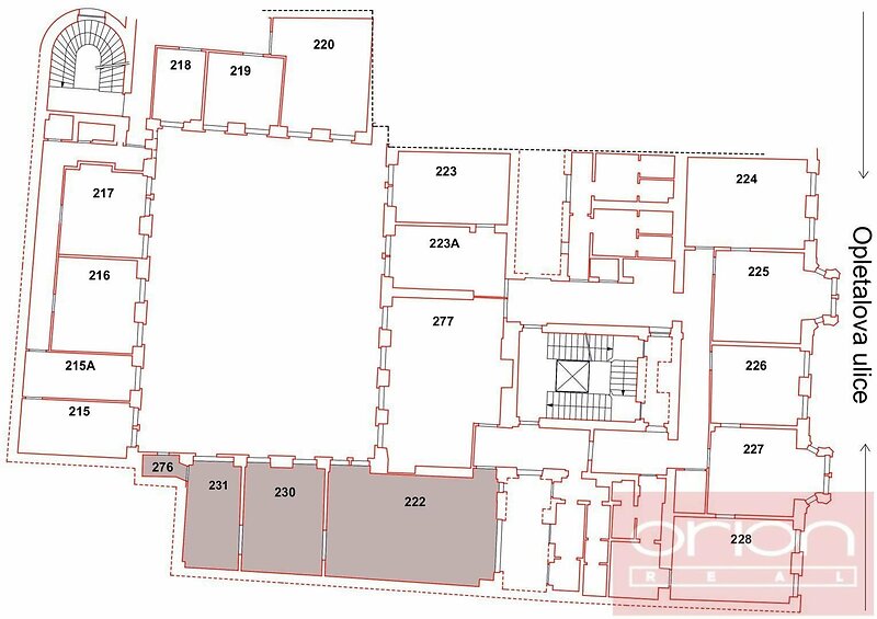
Pronájem prostor, kanceláře, Praha 1 - Nové Město

Praha 1 - Nové Město, 11 000, Opletalova 1535/4

32 185 Kč (za měsíc) Cena + popl. paušál 3.098,00 Kč + topení 2.733,00 Kč + elektřina, voda, ohřev vody a odvoz odpadu 500,00 Kč/měs./os. Uvedené ceny jsou bez DPH

Pronájem prostor / kanceláře / 91 m2 - Pronájem prostor typu kanceláře za nabídkovou cenu 32 185 Kč. Vybraná nemovitost - Kanceláře se nachází v městské části Praha 1. Plocha nemovitosti je 91 m2. Dostupné od 15.12.2025.

Nabízíme k pronájmu kancelářské prostory o celkové velikosti 91,10 m2 ve 3. patře zrekonstruované budovy ve vyhledávané lokalitě Praha 1 - Nové Město. Kancelářský prostor tvoří 3 místnosti vedle sebe situované do tichého dvora s vlastní kuchyňkou a toaletou. K vybavení patří klimatizace, žaluzie, koberce. Možnost doplnit pracovní stoly. Budova se nachází pouze pár kroků od stanice metra Muzeum přímo na Václavském náměstí a blízko nájezdu na magistrálu. V budově je recepce a 24/7 ostraha. K dispozici ihned, prohlídky na vyžádání.

Cena
32 185 Kč
Poznámka k ceně
+ popl. paušál 3.098,00 Kč + topení 2.733,00 Kč + elektřina, voda, ohřev vody a odvoz odpadu 500,00 Kč/měs./os. Uvedené ceny jsou bez DPH
Cena k jednání
ne
DPH
včetně DPH
Dispozice
kanceláře
Celková plocha
91 m2
Užitná plocha
91 m2
ID nabídky
009071
Aktualizace
07.01.2026
Aktivní dní
47
Typ budovy
cihlová
Stav
velmi dobrý
Vybavení
ne
Podlaží
3
Podlaží celkem
3
Balkón
ne
Bazén
ne
Stavba
cihlová
Sklep
ne
Patro
3
Garáž
ne
Lodžie
ne
Typ domu
patrový
Parkování
ne
Terasa
ne
Nízkoenergetický
ne
Bezbariérový
ne
Výtah
ano
Energetická nárocnost budovy
G - Mimořádně nehospodárná
Podle vyhlášky
c. 264/2020 Sb.
Umístění objektu
centrum obce
Plocha kanceláří
91
Datum nastěhování
15.12.2025
Komunikace
dlážděná
asfaltová
Telekomunikace
internet
kabelové rozvody
Doprava
silnice
dálnice
vlak
MHD
Aktivní
ano
fotovoltaika
ne
Solární panely
ne
Nájemce neplatí provizi
ne

poptat nemovitost

Odesláním formuláře udělujete souhlas s pravidly ochrany osobních údajů

Dagmar Suchardová, ORION Realit, s.r.o.realitní makléř

ORION Realit, s.r.o.

Holečkova 31/103, 15000, Praha 5

REKLAMA

spočítejte si svou hypotéku

svou hypotéku si právě počítá % zájemců

měsíční splátka

- Kč

Při úroku - % p.a.

Mám zájem o hypotéku

Odeslat ke kalkulaci

zpět na kalkulačkuOdesláním formuláře udělujete souhlas s pravidly ochrany osobních údajů
REKLAMA
Cookies
spočítat
hypotéku