Pronájem bytu, 4+kk, Praha 3 - Žižkov
Praha 3 - Žižkov, 13 000, Husitská 219/55
35 000 Kč (za měsíc) Cena +5 707 Kč poplatky + elektřina + možnost pronájmu parkovacího stání za 2000Kč/měs.Praha 3 - Žižkov, 13 000, Husitská 219/55
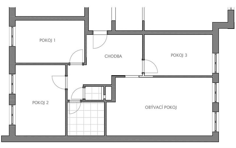
35 000 Kč (za měsíc) Cena +5 707 Kč poplatky + elektřina + možnost pronájmu parkovacího stání za 2000Kč/měs.Pronájem bytu / 4+kk / 88 m2 - Pronájem bytů typu 4+kk za nabídkovou cenu 35 000 Kč. Vybraná nemovitost - 4+kk se nachází v městské části Praha 3. Typ vlastnictví osobní. Plocha nemovitosti je 88 m2. Dostupné od 01.04.2026.
Nabízíme k pronájmu krásný byt 4+kk s balkonem v novostavbě z roku 2009 na Praze 3 v těsné blízkosti vrchu Vítkov. Byt se nachází ve 4. nadzemním podlaží domu s výtahem. K bytu dále náleží sklípek v přízemí objektu, který je umístěn prakticky u parkovacího stání, které je možno si k bytu také pronajmout. Byt s kompletně a moderně vybavenou kuchyní je částečně zařízen nábytkem. Má 3 samostatné ložnice a prostorný obývací pokoj s kuchyňským koutem. U ložnice orientované do dvora je balkon. Jedná se o velmi praktickou lokalitu, v místě je veškerá občanská vybavenost, školy, dostatek zeleně a je odsud výborné dopravní spojení do centra Prahy. Byt bude volný od 1.1.2026 Prohlídky možné po dohodě. Majitel si přeje nájemníky bez domácích mazlíčků. Nájemce skládá kauci ve výši 1 měsíčního nájmu + měsíční zálohy na služby. Odměna RK 1 měsíční nájem 1 DPH.

barbora.merknerova@century21.cz
Přemyslovská 1939/28, 13000, Praha 3