Pronájem bytu, 2+kk, Praha 2 - Vinohrady
Praha 2 - Vinohrady, 12 000, Jana Masaryka 73/14
26 000 Kč (za měsíc) Cena + domovní popl. + el a plyn se převádí na nájemcePraha 2 - Vinohrady, 12 000, Jana Masaryka 73/14
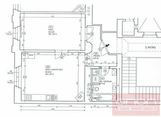
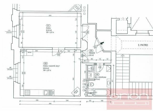
26 000 Kč (za měsíc) Cena + domovní popl. + el a plyn se převádí na nájemcePronájem bytu / 2+kk / 60 m2 - Pronájem bytů typu 2+kk za nabídkovou cenu 26 000 Kč. Vybraná nemovitost - 2+kk se nachází v městské části Praha 2. Typ vlastnictví osobní. Plocha nemovitosti je 60 m2. Dostupné od 01.05.2026.
Nabízíme k pronájmu zrekonstruovaný nezařízený byt 2+kk ve 2. patře udržovaného domu bez výtahu ve vyhledávané lokalitě v Praze 2 - Vinohrady. Celková výměra bytu 60 m2 nabízí předsíň, koupelnu s vanou a toaletou, obývací pokoj s kuchyňským koutem a 1 ložnici. K vybavení bytu patří dřevěné parkety, dlažba, kachlová kamna v obývacím pokoji. Dům s krásnou zahradou se nachází v klidnéné lokalitě Vinohrad, nedaleko parku Havlíčkovy sady. V okolí je veškerá občanská vybavenost: obchody, restaurace, kavárny, bistra. Dům je situován jen pár minut od stanice metra Náměstí Míru, autem blízký nájezd na Pražskou magistrálu a dálniční síť. Volný od 1.5.2025, prohlídky po dohodě.

Holečkova 31/103, 15000, Praha 5
