Typ nemovitosti
Nerozhoduje
domydomy
domybyty
domypozemky
domykomerční nemovitosti
domyostatní nemovitosti
Typ nabídky
Nerozhoduje
Prodej
Pronájem
Aukce
Podíly
Kraj
Nerozhoduje
Karlovarský kraj
Plzeňský kraj
Jihočeský kraj
Ústecký kraj
Liberecký kraj
Moravskoslezský kraj
Zlínský kraj
Hl. město Praha
Olomoucký kraj
Královéhradecký kraj
Pardubický kraj
Jihomoravský kraj
Vysočina
Středočeský kraj

Dům na prodej, rodinný dům, Rozdělov - Kladno

Kladno, 27 204, Rakovnická 256

5 790 000 Kč (za nemovitost) Cena + provize RK

Dům na prodej / rodinný dům / 64 m2 - Domy na prodej typu rodinný dům za nabídkovou cenu 5 790 000 Kč. Vybraná nemovitost - Rodinný dům. Typ vlastnictví osobní. Plocha nemovitosti je 64 m2. Dostupné od 01.01.2026.

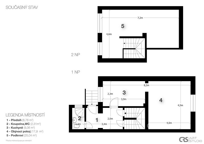
Nabízíme ke koupi ½ dvojdomu s vlastním č.p. o užitné ploše 64,43 m2, obytná 52,3 m2, který se nachází v okrajové části Kladna Rozdělov, ul. Rakovnická. Součástí prodeje je soubor pozemků o celkové výměře 196 m², z toho zastavěná plocha rodinného domu činí 50 m², zastavěná plocha kolny a prádelny činí 18 m2, zastavěná plocha garáže 23 m2, dvorek je vydlážděn zámkovou dlažbou jeho výměra činí 105 m2. Rodinný dům č.p. 256 byl postaven v roce cca 1938 a je dispozičně řešen jako podsklepený přízemní objekt s obytným podkrovím, kdy v roce 1989 byl kompletně přestavěn (kolaudace 1989), následně po částečné rekonstrukci r. 2010, střecha včetně krytiny, trámů a latí nová (2020) Bramac. Nabízí celkem: • 1. podzemní podlaží: sklep 3,06 m² • 1. nadzemní podlaží: předsíň 6,76 m2, koupelna 2,31 m2, kuchyň 9,36 m2, obývací pokoj 17,9 m2 • Obytné podkroví: ložnice + chodba 25,04 m2 • Vedlejší stavby: kolna 6,08 m2, prádelna 6,08 m2, garáž 23 m2 Jednotka: koupelna společná s WC, předsíň, kuchyň, pokoj, okna plastová osazena žaluziemi, podlahová krytina PVC a dlažba, vytápění elektrický přímotop, schodiště betonové pokryto PVC. • Podkroví: pokoj, dřevěná okna do zahrady, podlahy USB desky (1989) • Sklep: sklípek, betonové schodiště • Rekonstrukce: elektřina původní, odpad a voda v plastu, interiér (stěny hrubý štuk, okna v plastu osazena žaluziemi. • Dům je napojen na veřejnou kanalizaci, vodovod (podružný s č.p. 708), elektřinu (220 i 380 V), plyn (přípojka na domě demontována), vytápění: akumulační kamna 2x, bojler DRAŽICE (2022). Stavba je technicky v dobrém stavu, což nabízí ideální příležitost k vytvoření bydlení dle vlastních představ. Na pozemku se dále nachází kolna, prádelna postavená rovněž v roce 1938, a dále garáž vystavěna v 90 letech. Lokalita: Kladno Rozdělov je příjemná a dobře dostupná obec jen 7 km jihozápadně od Kladna a cca 30 minut jízdy od Prahy. V obci je veškerá občanská vybavenost: škola, školka, pošta, obchod, zdravotní středisko, knihovna, zahradnictví i další drobné provozovny. Obec má dobrou dopravní dostupnost – nachází se na trase hlavní silnice Praha – Karlovy Vary, a je připojena na veřejné inženýrské sítě (vodovod, kanalizace, plyn). Shrnutí: • celková výměra pozemků: 196 m² • obytná plocha domu: 52,3 m² • stav: určeno k rekonstrukci • napojeno na všechny inženýrské sítě • velmi dobrá dostupnost do centra Kladna i Prahy • možnost přestavby dle vlastních potřeb a představ viz vizualizace • náklady na bydlení cca Vodné: 1.000, Kč, elektřina: 5.000,Kč Vhodné jak pro vlastní bydlení, tak jako investice. Pro více informací nebo sjednání prohlídky mě neváhejte kontaktovat. PENB: zpracovává se

Cena
5 790 000 Kč
Provize
+ provize RK
Dispozice
rodinný dům
Celková plocha
52 m2
Užitná plocha
64 m2
ID nabídky
972363
Aktualizace
21.12.2025
Forma vlastnictví
osobní
Typ budovy
cihlová
Stav
dobrý
Vybavení
ne
Voda
vodovod
Podlaží celkem
2
Plyn
plynovod
Odpad
veřejná kanalizace
Velikost
2 pokoje
Stavba
cihlová
Sklep
ano
Garáž
ano
Typ domu
patrový
Plocha sklepu
3
Elektřina
230V
Výtah
ne
Energetická nárocnost budovy
G - Mimořádně nehospodárná
Podle vyhlášky
č. 78/2013 Sb.
Plocha nebytových prostor
24
Rok výstavby
1 938
Poloha domu
řadový
Míst k parkování
2
Datum nastěhování
01.01.2026
Rok rekonstrukce
2 010
Doprava
dálnice
vlak
MHD
Aktivní
ano

poptat nemovitost

Odesláním formuláře udělujete souhlas s pravidly ochrany osobních údajů

Jana Vraštilovárealitní makléř

dreampraha@century21.cz

CENTURY 21 Dream

Radlická 759/32, 15000, Praha 5

REKLAMA

spočítejte si svou hypotéku

svou hypotéku si právě počítá % zájemců

měsíční splátka

- Kč

Při úroku - % p.a.

Mám zájem o hypotéku

Odeslat ke kalkulaci

zpět na kalkulačkuOdesláním formuláře udělujete souhlas s pravidly ochrany osobních údajů
REKLAMA
Cookies
spočítat
hypotéku