Typ nemovitosti
Nerozhoduje
domydomy
domybyty
domypozemky
domykomerční nemovitosti
domyostatní nemovitosti
Typ nabídky
Nerozhoduje
Prodej
Pronájem
Aukce
Podíly
Kraj
Nerozhoduje
Karlovarský kraj
Plzeňský kraj
Jihočeský kraj
Ústecký kraj
Liberecký kraj
Moravskoslezský kraj
Zlínský kraj
Hl. město Praha
Olomoucký kraj
Královéhradecký kraj
Pardubický kraj
Jihomoravský kraj
Vysočina
Středočeský kraj

Pronájem prostor, obchodní prostor, Bystřice nad Pernštejnem

Bystřice nad Pernštejnem, 59 301, Bratrská 117

15 000 Kč (za měsíc) Cena plus zálohy na elektřinu

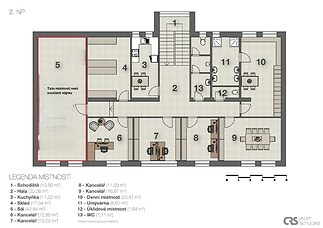
Pronájem prostor / obchodní prostor / 141 m2 - Pronájem prostor typu obchodní prostor za nabídkovou cenu 15 000 Kč. Vybraná nemovitost - Obchodní prostor. Plocha nemovitosti je 141 m2. Dostupné od 16.02.2026.

Nabízíme komerční prostor o celkové ploše 141 m² na ulici Bratrská 117 v centru Bystřice nad Pernštejnem. Prostor se nachází na prvním patře cihlové budovy a je v dobrém stavu, připravený k okamžitému užívání. Není vybavený, takže si jej můžete upravit podle svých potřeb. Prostor je členěn na: 74 m² kancelářských ploch 67 m² nebytových prostor, které lze využít jako další kanceláře, zázemí, prodejnu nebo sklad – půdorys vychází z původního využití, ale není nutné jej dodržovat Důležité informace: Místnost č. 5 není součástí nájmu – používá se pro technologie CETIN Možnost pronájmu navíc garáže (60 m²) a skladu (24 m²) Průjezd je vhodný pro dodávku H3 Díky centrální poloze má prostor dobrou dopravní dostupnost a viditelnost, vhodnou pro různé typy podnikání. Podmínky nájmu: Nájemné: 15 000 Kč/měsíc (bez služeb a provize) Energie a služby: 22 000, Kč/měsíc Kauce: 37 000 Kč Prostor je flexibilní a lze jej využít podle vašich potřeb – kanceláře, služby, obchod nebo kombinace. Pro více informací volejte makléře

Cena
15 000 Kč
Poznámka k ceně
plus zálohy na elektřinu
Dispozice
obchodní prostor
Užitná plocha
141 m2
ID nabídky
974712
Aktualizace
16.02.2026
Aktivní dní
1
Typ budovy
cihlová
Stav
velmi dobrý
Vybavení
ne
Voda
vodovod
Podlaží
2
Podlaží celkem
2
Odpad
veřejná kanalizace
Stavba
cihlová
Patro
2
Typ domu
patrový
Elektřina
230V
Energetická nárocnost budovy
G - Mimořádně nehospodárná
Podle vyhlášky
č. 78/2013 Sb.
Plocha nebytových prostor
67
Umístění objektu
centrum obce
Datum nastěhování
16.02.2026
Doprava
silnice
Aktivní
ano

poptat nemovitost

Odesláním formuláře udělujete souhlas s pravidly ochrany osobních údajů

Martin Pavlicarealitní makléř

martin.pavlica@century21.cz

CENTURY 21 All Inclusive

náměstí 28. dubna 1069/2, 63500, Brno

REKLAMA

spočítejte si svou hypotéku

svou hypotéku si právě počítá % zájemců

měsíční splátka

- Kč

Při úroku - % p.a.

Mám zájem o hypotéku

Odeslat ke kalkulaci

zpět na kalkulačkuOdesláním formuláře udělujete souhlas s pravidly ochrany osobních údajů
REKLAMA
Cookies
spočítat
hypotéku