Typ nemovitosti
Nerozhoduje
domydomy
domybyty
domypozemky
domykomerční nemovitosti
domyostatní nemovitosti
Typ nabídky
Nerozhoduje
Prodej
Pronájem
Aukce
Podíly
Kraj
Nerozhoduje
Karlovarský kraj
Plzeňský kraj
Jihočeský kraj
Ústecký kraj
Liberecký kraj
Moravskoslezský kraj
Zlínský kraj
Hl. město Praha
Olomoucký kraj
Královéhradecký kraj
Pardubický kraj
Jihomoravský kraj
Vysočina
Středočeský kraj

Dům na prodej, rodinný dům, Břest

Břest, Břest

3 890 000 Kč (za nemovitost) Cena včetně provize

Dům na prodej / rodinný dům / 146 m2 - Domy na prodej typu rodinný dům za nabídkovou cenu 3 890 000 Kč. Vybraná nemovitost - Rodinný dům. Typ vlastnictví osobní. Plocha nemovitosti je 146 m2. Dostupné od 08.10.2025.

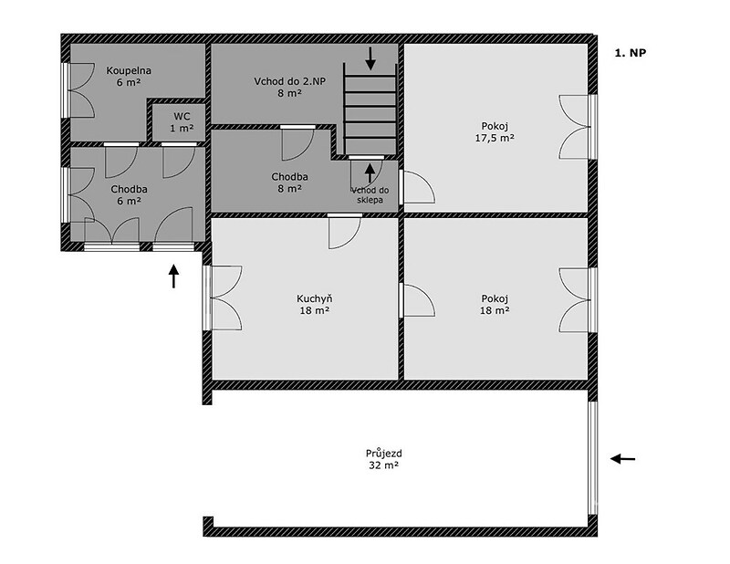
Nabízíme prodej samostatně stojícího rodinného domu se zahradou v obci Břest, vzdálené 6km od Kroměříže. Celková výměra pozemků je 839 m². Současná dispozice domu je 4+1, ale dům přímo vybízí k rekonstrukci a dalšímu rozšíření. Velkorysý půdní prostor nabízí možnost vybudování obytného podkroví a ještě více místa pro pohodlné bydlení. Dům je napojen na elektřinu, obecní vodovod i kanalizaci, s možností připojení plynu. Konstrukce domu je cihlová, osazená plastovými okny a betonovými podlahami, což tvoří ideální základ pro rekonstrukci podle vlastních představ. Součástí je také vlastní studna pro užitkové využití. Na rovinaté, zatravněné zahradě se nachází zděná hospodářská budova, která nabízí široké možnosti využití. V části je zavedena elektřina a obecní voda, část objektu je podsklepená, což poskytuje praktický prostor pro skladování nebo dílnu. Dispozice domu viz přiložený půdorys. Energetický štítek budovy nebyl dosud dodán, proto je v souladu se zákonem uvedena třída energetické náročnosti G.

Cena
3 890 000 Kč
Provize
včetně provize
Dispozice
rodinný dům
Celková plocha
114 m2
Užitná plocha
146 m2
ID nabídky
968476
Aktualizace
14.10.2025
Aktivní dní
4
Forma vlastnictví
osobní
Typ budovy
cihlová
Stav
před rekonstrukcí
Parkování
ano
Voda
vodovod
Podlaží celkem
1
Odpad
veřejná kanalizace
Velikost
4 pokoje
Stavba
cihlová
Sklep
ano
Typ domu
přízemní
Parkování
ano
Elektřina
400V
Výtah
ne
Energetická nárocnost budovy
G - Mimořádně nehospodárná
Podle vyhlášky
č. 78/2013 Sb.
Rok výstavby
1 960
Poloha domu
samostatný
Datum nastěhování
08.10.2025
Aktivní
ano

poptat nemovitost

Odesláním formuláře udělujete souhlas s pravidly ochrany osobních údajů

Bc. David Kalousekrealitní makléř

david.kalousek@century21.cz

CENTURY 21 Style Happy

Štefánikova 2464/7, 76001, Zlín

REKLAMA

spočítejte si svou hypotéku

svou hypotéku si právě počítá % zájemců

měsíční splátka

- Kč

Při úroku - % p.a.

Mám zájem o hypotéku

Odeslat ke kalkulaci

zpět na kalkulačkuOdesláním formuláře udělujete souhlas s pravidly ochrany osobních údajů
REKLAMA
Cookies
spočítat
hypotéku