Pronájem bytu, 2+1, Hulín
Hulín, Sadová
13 676 Kč (za měsíc) Cena + řádně nastavené energie 4.365,Kč při třech členech domácnostiHulín, Sadová
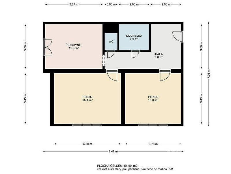
13 676 Kč (za měsíc) Cena + řádně nastavené energie 4.365,Kč při třech členech domácnostiPronájem bytu / 2+1 / 58 m2 - Pronájem bytů typu 2+1 za nabídkovou cenu 13 676 Kč. Vybraná nemovitost - 2+1. Typ vlastnictví osobní. Plocha nemovitosti je 58 m2. Dostupné od 01.02.2026.
Nabízíme pronájem zrekonstruovaného bytu v 2+1, 58 m2 s novou zasklenou lodžií 4m2, na ul. Sadová v Hulíně. Byt se nachází ve 5.NP revitalizovaného panelového domu bez výtahu. Jednotka je dobře dispozičně řešena velká chodba velké skříně, neprůchozí pokoje. Nová, prostorná kuchyňská linka v lesku vč. elektrospotřebičů varná deska, trouba, mikrovlnka a myčka. Koupelna zděné jádro se sprch. koutem. K bytu náleží 2 prostorné sklepy, celkem 10m2. Dům se nachází v lokalitě s veškerou občanskou vybaveností. Majitelé hledají slušného, pracujícího nájemníka, nekuřáka. • Nájem: 13.676, Kč (12.000,Kč nájem + 1.676, fond oprav a služby) • Energie: 4.365, Kč (plyn, elektřina, teplo, teplá voda, vodné a stočné, úklid spol. prostor + elektřina) • Kauce: 18.041, Kč • Provize RK 16.548,Kč Prohlídky a rezervace bytu již nyní, volný od 1. 1. nebo 1. 2.2026, dle dohody, další informace k bytu po telefonu nebo při prohlídce bytu.

martina.kralikova@century21.cz
Štefánikova 2464/7, 76001, Zlín