Typ nemovitosti
Nerozhoduje
domydomy
domybyty
domypozemky
domykomerční nemovitosti
domyostatní nemovitosti
Typ nabídky
Nerozhoduje
Prodej
Pronájem
Aukce
Podíly
Kraj
Nerozhoduje
Karlovarský kraj
Plzeňský kraj
Jihočeský kraj
Ústecký kraj
Liberecký kraj
Moravskoslezský kraj
Zlínský kraj
Hl. město Praha
Olomoucký kraj
Královéhradecký kraj
Pardubický kraj
Jihomoravský kraj
Vysočina
Středočeský kraj

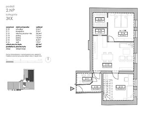
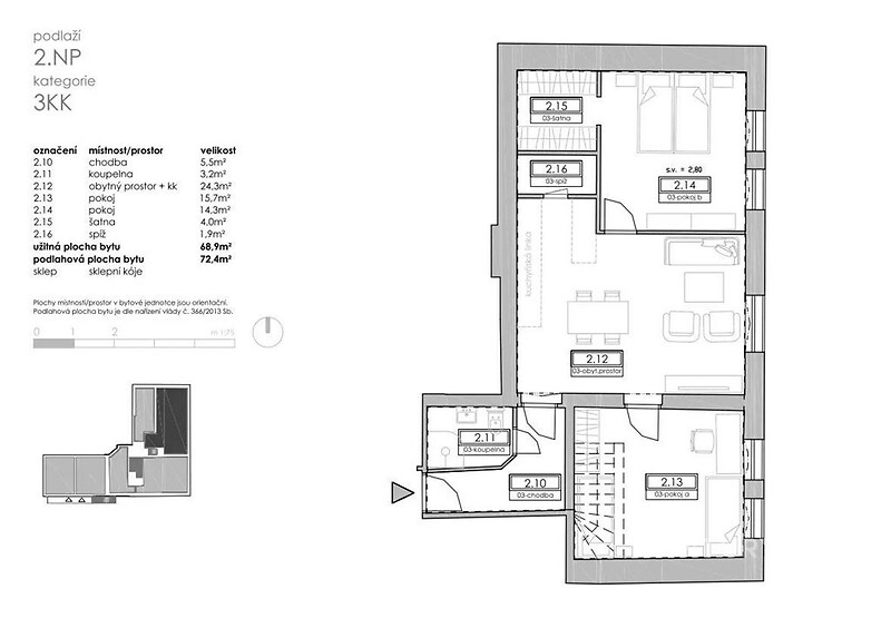
Byt na prodej, 3+kk, Vimperk II - Vimperk

Vimperk, Jirchářská

4 950 000 Kč (za nemovitost) Cena + provize RK

Byt na prodej / 3+kk / 69 m2 - Byty na prodej typu 3+kk za nabídkovou cenu 4 950 000 Kč. Vybraná nemovitost - 3+kk. Typ vlastnictví osobní. Plocha nemovitosti je 69 m2. Dostupné od 10.10.2025.

PODKROVNÍ BYT 3+KK (75m²) ve Vimperku, k okamžitému nastěhování. Vybavte si ho se slevou 30%! Představujeme Vám další volný byt z oblíbeného developerského projektu "Rezidence Volyňka" v klidné části Vimperku. Jedná se o podkrovní byt s dispozicí 3+KK a velkorysou užitnou plochou 75 m², který je připraven k okamžitému předání klíčů. Tento byt je ideální volbou pro mladé rodiny, páry hledající moderní zázemí, nebo pro ty, kteří touží po klidném bydlení v šumavském podhůří s plnou občanskou vybaveností. TOP 3 Důvody pro koupi: FINANČNÍ BONUS NA VYBAVENÍ: Jako speciální nabídku získává nový majitel slevu 30 % v majitelově nábytkářském studiu, kterou lze využít na novou kuchyňskou linku a kompletní zařízení interiéru na míru. To Vám výrazně sníží počáteční náklady! PODKROVNÍ ATMOSFÉRA: Byt v podkroví nabízí jedinečnou atmosféru, spoustu světla a útulný pocit s moderním dispozičním řešením 3+KK. IHNED K NASTĚHOVÁNÍ: Nemusíte čekat na dokončení stavby – stačí podepsat smlouvu, vybrat nábytek a můžete bydlet. Detaily bytu a domu Byt se nachází v nově dokončené Rezidenci Volyňka. Je navržen s důrazem na funkčnost a moderní standardy: Dispozice: 3+KK (75 m²) Stav: Novostavba z developerského projektu. Připravenost: Byt je zkolaudovaný a připravený k okamžitému užívání. Vytápění: [DOPLNIT – např. ústřední plynové vytápění, vlastní kotel, atd.] Energetická náročnost: [DOPLNIT – např. třída B – velmi úsporná.] Lokalita a okolí Rezidence Volyňka je situována v klidné části Vimperku, avšak s rychlou dostupností do centra. Vimperk: Nabízí veškerou občanskou vybavenost: školy, školky, obchody, zdravotnická zařízení. Příroda: Lokalita je perfektním výchozím bodem pro milovníky Šumavy, turistiky a cyklistiky. Řeka Volyňka a okolní lesy jsou na dosah ruky. Závěr Nenechte si ujít poslední příležitost k nákupu bytu v tomto úspěšném projektu. Financování hypotékou je samozřejmě možné. Prohlídky jsou možné kdykoliv po předchozí domluvě. Pro více informací a sjednání prohlídky kontaktujte: [Vaše jméno/kontakt] [Váš telefon] [Váš email] [Odkaz na webové stránky projektu/realitní kanceláře]

Cena
4 950 000 Kč
Provize
+ provize RK
Dispozice
3+kk
Celková plocha
72 m2
Užitná plocha
69 m2
ID nabídky
969398
Aktualizace
31.10.2025
Forma vlastnictví
osobní
Typ budovy
cihlová
Stav
po rekonstrukci
Vybavení
ne
Parkování
ano
Voda
vodovod
Podlaží
2
Podlaží celkem
3
Plyn
plynovod
Odpad
veřejná kanalizace
Stavba
cihlová
Patro
2
Parkování
ano
Elektřina
230V
Výtah
ne
Energetická nárocnost budovy
G - Mimořádně nehospodárná
Podle vyhlášky
č. 78/2013 Sb.
Rok výstavby
1 919
Datum nastěhování
10.10.2025
Rok rekonstrukce
2 025
Telekomunikace
internet
Doprava
silnice
vlak
Aktivní
ano

poptat nemovitost

Odesláním formuláře udělujete souhlas s pravidly ochrany osobních údajů

Marie Bardovárealitní makléř

marie.bardova@century21.cz

CENTURY 21 4fin Reality

Na Hřebenech 1718/10, 14000, Praha 4

REKLAMA

spočítejte si svou hypotéku

svou hypotéku si právě počítá % zájemců

měsíční splátka

- Kč

Při úroku - % p.a.

Mám zájem o hypotéku

Odeslat ke kalkulaci

zpět na kalkulačkuOdesláním formuláře udělujete souhlas s pravidly ochrany osobních údajů
REKLAMA
Cookies
spočítat
hypotéku