Typ nemovitosti
Nerozhoduje
domydomy
domybyty
domypozemky
domykomerční nemovitosti
domyostatní nemovitosti
Typ nabídky
Nerozhoduje
Prodej
Pronájem
Aukce
Podíly
Kraj
Nerozhoduje
Karlovarský kraj
Plzeňský kraj
Jihočeský kraj
Ústecký kraj
Liberecký kraj
Moravskoslezský kraj
Zlínský kraj
Hl. město Praha
Olomoucký kraj
Královéhradecký kraj
Pardubický kraj
Jihomoravský kraj
Vysočina
Středočeský kraj

Dům na prodej, rodinný dům, Senice na Hané, okres olomouc - Senice na Hané

9 490 000 Kč (za nemovitost) Cena + provize RK, Uvedená cena je bez vybavení, které je nutno dokoupit zvlášť.

Dům na prodej / rodinný dům / 137 m2 - Domy na prodej typu rodinný dům za nabídkovou cenu 9 490 000 Kč. Vybraná nemovitost - Rodinný dům. Typ vlastnictví osobní. Plocha nemovitosti je 137 m2. Dostupné od 01.03.2026.

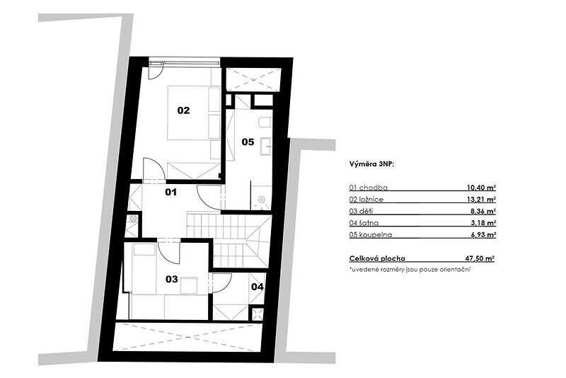
Představujeme Vám k prodeji exkluzivní novostavbu v obci Senice na Hané, reprezentující moderní architektonický koncept spojený s prvotřídními materiály a technologiemi. Jedná se o čtyřpokojový třípodlažní dům s otevřeným obývacím prostorem nad kuchyní a výhledem do zahrady v úsporné třídě B, dokončený a zkolaudovaný v roce 2023. Projekt domu byl zpracován architekty z ateliéru Tři.čtrnáct. Při vstupu z ulice se nachází exteriérová chodba, vedoucí na zahradu a zároveň i do domu. Dispozice zahrnuje vstupní zádveří s šatními skříněmi, prosklenou kuchyni s otevřeným stropem, jídelnou a vstupem na terasu, dále koupelnu se sprchovým koutem a komoru s úložným prostorem. Schodiště vás zavede do druhého nadzemního patra s otevřeným obývacím prostorem, technickou místností a dětským pokojem s vestavěnou skříní. V podkroví, tedy třetím patře tohoto domu naleznete druhý dětský pokoj s velkým střešním ateliérem a šatnou, ložnici s rozsáhlou vestavnou skříní a druhou koupelnu. Pro úsporu energie je dům vybaven tepelným čerpadlem, sloužícím k vytápění a ohřevu vody, a také systémem rekuperace pro efektivní výměnu vzduchu. Dům je navíc ale také v obývacím pokoji vybaven designovými krbovými kamny zn. Jotul. Interiérové prvky nesou razantní podpis kvality, včetně masivních prvků z jasanu, bezzárubňových dveří s křídly z masivního dřeva v laku a kuchyňské linky taktéž v laku. Vybavení kuchyně zahrnuje spotřebiče od značky Siemens, desku z umělého kamene a podlahy z polyuretanu. Koupelna disponuje prvky od špičkových výrobců, jako je keramika Laufen, sprchová zástěna od Huppe a baterie od HansGrohe. Dům je vybaven izolací z PUR pěny, protihlukovými předstěnami a příčkami (systém Rigips). Střecha je osazena velkoformátovými střešními ateliéry z hliníku, včetně odrazové úpravy, motorů pro pohodlné otevírání a screen rolety na jižní straně, zajišťující optimální komfort a efektivitu. Exteriér domu zaujme terasou z kvalitního sibiřského modřínu, plotem s prémiovou lazurou, zahradním domkem a přípravou pro přístřešek na auto. K domu je navíc zpracovaný i projekt od zahradního architekta. Díky využívání nízkoenerg. štítku a inovativních technologií dochází k výraznému snížení měsíčních životních nákladů. Tato kombinace umožňuje udržet měsíční výdaje pod hranicí 3000 Kč. Dům bude ideální volbou pro ty, kteří hledají spojení moderního bydlení s klidem okolní krajiny, nese v sobě harmonickou kombinaci moderní architektury, energ. efektivity a nadstandardního vybavení. Tato nemovitost se nachází v obci s veškerou občanskou vybaveností, včetně školy, školky, obchodu, sportoviště i pošty. Dostupnost na dálnici a do Olomouce je na dosah. Na tuto nadstandardně vybavenou nemovitost je možné využít financování za nejvýhodnějších podmínek se snižováním úrokové sazby. Pokud jste tedy vždy snili o domově, který spojuje nejmodernější technologie se špičkovými materiály a luxusem, máme pro vás jedinečnou příležitost!

Cena
9 490 000 Kč
Poznámka k ceně
Uvedená cena je bez vybavení, které je nutno dokoupit zvlášť.
Provize
+ provize RK
Dispozice
rodinný dům
Celková plocha
137 m2
Užitná plocha
137 m2
Terasa
ano
ID nabídky
971879
Aktualizace
07.12.2025
Forma vlastnictví
osobní
Typ budovy
dřevostavba
Stav
novostavba
Vybavení
částečně
Parkování
ano
Voda
vodovod
Podlaží celkem
3
Odpad
veřejná kanalizace
Velikost
4 pokoje
Stavba
dřevostavba
Typ domu
patrový
Parkování
ano
Terasa
ano
Elektřina
230V
Výtah
ne
Energetická nárocnost budovy
B - Velmi úsporná
Podle vyhlášky
č. 78/2013 Sb.
Ukazatel energetické nárocnosti budovy
61,00
Rok výstavby
2 023
Poloha domu
řadový
Datum nastěhování
01.03.2026
Doprava
silnice
dálnice
vlak
Aktivní
ano

poptat nemovitost

Odesláním formuláře udělujete souhlas s pravidly ochrany osobních údajů

Ing. Klára Řezníčkovárealitní makléř

klara.reznickova@century21.cz

CENTURY 21 K&L Reality

tř. Kosmonautů 1288/1, 77900, Olomouc

REKLAMA

spočítejte si svou hypotéku

svou hypotéku si právě počítá % zájemců

měsíční splátka

- Kč

Při úroku - % p.a.

Mám zájem o hypotéku

Odeslat ke kalkulaci

zpět na kalkulačkuOdesláním formuláře udělujete souhlas s pravidly ochrany osobních údajů
REKLAMA
Cookies
spočítat
hypotéku