Pronájem prostor, výrobní prostor, Komárov - Brno
Brno, 61 700, Komárovské nábřeží 686/8
35 000 Kč (za měsíc) Cena Neplatíte provizi. Prostor pronajímáme jako přímý majitel.Brno, 61 700, Komárovské nábřeží 686/8
35 000 Kč (za měsíc) Cena Neplatíte provizi. Prostor pronajímáme jako přímý majitel.Pronájem prostor / výrobní prostor / 256 m2 - Pronájem prostor typu výrobní prostor za nabídkovou cenu 35 000 Kč. Vybraná nemovitost - Výrobní prostor se nachází v městské části Brno-jih. Plocha nemovitosti je 256 m2. Dostupné od 09.03.2026.
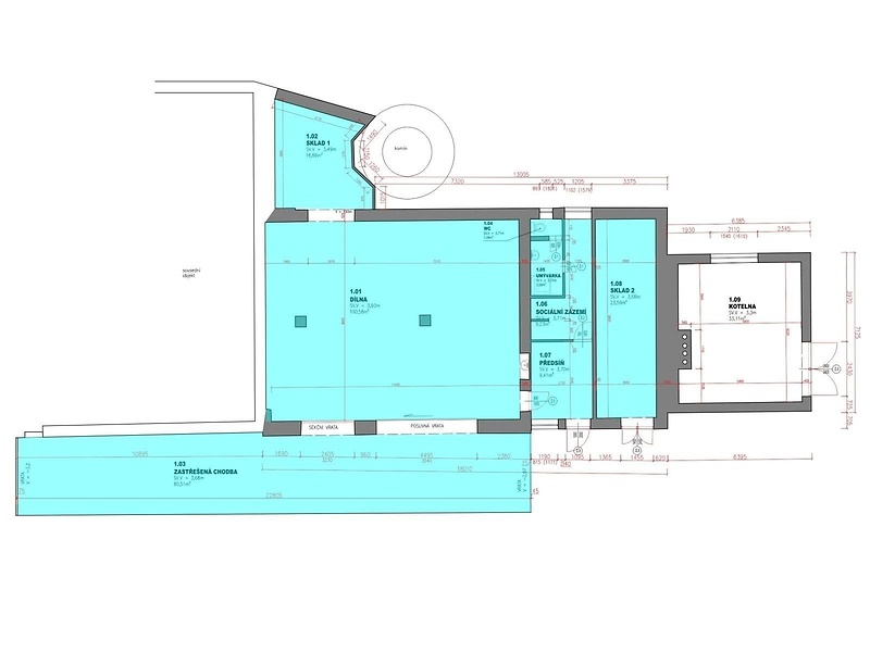
Pronájem vytápěné dílny 256 m² – ideální pro autoservis, výrobu nebo sklad K pronájmu nabízíme vytápěnou dílnu o celkové užitné ploše 256 m², která je vhodná pro provoz autoservisu, lehkou výrobu nebo skladování. Objekt se nachází v uzavřeném a dobře přístupném areálu a disponuje samostatným vstupem a dvěma vjezdy přímo do budovy. Tyto vjezdy umožňují pohodlnou manipulaci s materiálem i technikou. Dispozičně je prostor rozdělen na hlavní dílnu o výměře 100 m², sklad o velikosti 16 m² a chodbu s možností dalšího skladování o rozloze 80 m². Součástí je také vlastní sociální zázemí, zahrnující toaletu a umývárnu. Před objektem se nachází venkovní plocha s možností dodatečného pronájmu parkování pro více vozidel. Areál je oplocený, bezpečný a přístupný i pro nákladní dopravu. Zálohy na energie a služby budou stanoveny individuálně dle konkrétního typu provozu. Neplatíte provizi. Prostor pronajímáme jako přímý majitel.