Typ nemovitosti
Nerozhoduje
domydomy
domybyty
domypozemky
domykomerční nemovitosti
domyostatní nemovitosti
Typ nabídky
Nerozhoduje
Prodej
Pronájem
Aukce
Podíly
Kraj
Nerozhoduje
Karlovarský kraj
Plzeňský kraj
Jihočeský kraj
Ústecký kraj
Liberecký kraj
Moravskoslezský kraj
Zlínský kraj
Hl. město Praha
Olomoucký kraj
Královéhradecký kraj
Pardubický kraj
Jihomoravský kraj
Vysočina
Středočeský kraj

Pronájem bytu, 3+kk, Most

Most, 43 401, Česká 378/13

12 600 Kč (za měsíc) Cena

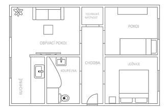
Pronájem bytu / 3+kk / 62 m2 - Pronájem bytů typu 3+kk za nabídkovou cenu 12 600 Kč. Vybraná nemovitost - 3+kk. Typ vlastnictví družstevní. Plocha nemovitosti je 62 m2. Dostupné od 19.01.2026.

Ráda bych vám nabídla k dlouhodobému podnájmu hezký byt 3+kk o výměře 62 m² v ulici Česká v Mostě. Jakmile vstoupíme do chodby, máme po pravé straně dvě samostatné místnosti. V ložnici je skříň. Vlevo se nachází koupelna s rohovou vanou, umyvadlem a toaletou. Naproti vstupním dveřím je technická místnost, kde je možné uložit velké množství věcí. Vedle této místnosti je velký světlý obývací pokoj s kuchyňským koutem. V kuchyni je kromě kuchyňské linky s elektrickým sporákem i lednice. V obýváku je konferenční stolek. V celém bytě jsou nové dveře a osvětlení. Dům je čistý a udržovaný. Pokoje jsou na fotografiích i vizualizovány pro lepší představu jak by mohly zařízené vypadat. Byt je volný, ihned k nastěhování. Náklady na bydlení jsou ve výši 12 600 Kč nájemné + služby 2 300, Kč/ osoba (další osoba + 700,Kč). Elektřina a plyn budou přepsány na nájemníka. Při podpisu nájemní smlouvy je požadována vratná kauce ve výši 15 000, Kč. Dále se skládá rezervační poplatek při podpisu rezervační smlouvy ve výši 12 600 + DPH). Nabídka platí pouze pro zájemce s pracovní smlouvou. V případě zájmu o prohlídku nebo o více informací kontaktujte, prosím, makléřku.

Cena
12 600 Kč
Dispozice
3+kk
Celková plocha
62 m2
Užitná plocha
62 m2
ID nabídky
973351
Aktualizace
19.01.2026
Aktivní dní
4
Forma vlastnictví
družstevní
Typ budovy
panelová
Stav
dobrý
Podlaží
3
Podlaží celkem
8
Stavba
panelová
Patro
3
Elektřina
230V
Výtah
ano
Energetická nárocnost budovy
G - Mimořádně nehospodárná
Podle vyhlášky
č. 78/2013 Sb.
Datum nastěhování
19.01.2026
Aktivní
ano

poptat nemovitost

Odesláním formuláře udělujete souhlas s pravidly ochrany osobních údajů

Ing. Martina Wohlovárealitní makléř

martina.wohlova@century21.cz

CENTURY 21 The Most Reality

U Věžových domů 2934/5, 43401, Most

REKLAMA

spočítejte si svou hypotéku

svou hypotéku si právě počítá % zájemců

měsíční splátka

- Kč

Při úroku - % p.a.

Mám zájem o hypotéku

Odeslat ke kalkulaci

zpět na kalkulačkuOdesláním formuláře udělujete souhlas s pravidly ochrany osobních údajů
REKLAMA
Cookies
spočítat
hypotéku