Typ nemovitosti
Nerozhoduje
domydomy
domybyty
domypozemky
domykomerční nemovitosti
domyostatní nemovitosti
Typ nabídky
Nerozhoduje
Prodej
Pronájem
Aukce
Podíly
Kraj
Nerozhoduje
Karlovarský kraj
Plzeňský kraj
Jihočeský kraj
Ústecký kraj
Liberecký kraj
Moravskoslezský kraj
Zlínský kraj
Hl. město Praha
Olomoucký kraj
Královéhradecký kraj
Pardubický kraj
Jihomoravský kraj
Vysočina
Středočeský kraj

Dům na prodej, rodinný dům, Praha 8 - Dolní Chabry

Praha 8 - Dolní Chabry, 18 400, Ústecká 199/19

13 450 000 Kč (za nemovitost) Cena + provize RK

Dům na prodej / rodinný dům / 100 m2 - Domy na prodej typu rodinný dům za nabídkovou cenu 13 450 000 Kč. Vybraná nemovitost - Rodinný dům se nachází v městské části Praha-Dolní Chabry. Typ vlastnictví osobní. Plocha nemovitosti je 100 m2.

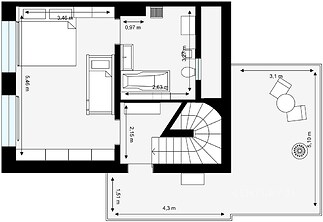
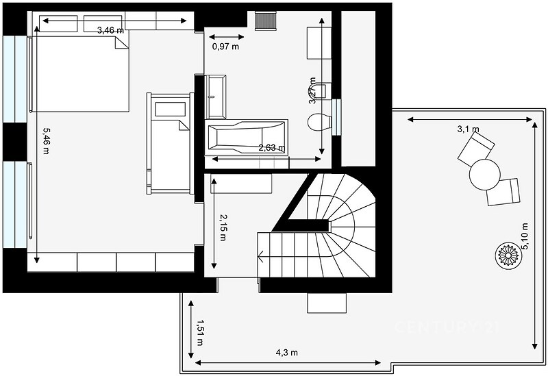
Rádi bychom Vám nabídli ke koupi řadový dům se zahradou a garáží o dispozici 3+kk o obytné ploše 87 m² a s pozemkem 225 m2. Po vstupu do domu projdete předsíní a chodbou do prostorného obývacího pokoje s kuchyňským koutem. Odtud můžete dále pokračovat do dalšího pokoje a spodní koupelny nebo vyjít na zahradu. Po schodech se dostanete do druhého podlaží, ve kterém se nachází ložnice, druhá koupelna a terasa. Součástí domu je sklep a další terasa orientovaná do zahrady, která poskytuje příjemné soukromí. Dům je napojen na plyn, elektřinu, vodu i kanalizaci. K dispozici je také společná studna pro zalévání. Topení a ohřev teplé vodu je zabezpečeno plynovým kotlem. Zásadní přidanou hodnotou je kompletně připravená projektová dokumentace pro rozšíření na větší rodinný dům. Stavební povolení je těsně před vydáním. To znamená výraznou úsporu času a možnost rozšířit obytnou plochu na více než 121 m² s dispozicí 4+kk bez zbytečných administrativních průtahů. Nedaleko od domu se nachází Chaberský háj, který můžete využít pro procházky v přírodě i sportování. Autobusová zastávka téměř u domu zajišťuje spojení na metro přibližně za 5 minut. Jednu zastávku odtud začínají tramvajové linky 17 a 24 s přímým spojením do centra. Autem se bez problémů dostanete jak do centra Prahy tak i na dálniční síť. Pokud vás zaujala samotná nemovitost a projekt jejího budoucího rozšíření, rád Vás pozvu na její prohlídku.

Cena
13 450 000 Kč
Provize
+ provize RK
Dispozice
rodinný dům
Celková plocha
81 m2
Užitná plocha
100 m2
Terasa
ano
ID nabídky
975654
Aktualizace
09.03.2026
Aktivní dní
6
Forma vlastnictví
osobní
Typ budovy
cihlová
Stav
velmi dobrý
Voda
vodovod
Podlaží celkem
3
Plyn
plynovod
Odpad
veřejná kanalizace
Velikost
3 pokoje
Stavba
cihlová
Sklep
ano
Garáž
ano
Typ domu
patrový
Terasa
ano
Plocha sklepu
14
Elektřina
400V
Výtah
ne
Energetická nárocnost budovy
G - Mimořádně nehospodárná
Podle vyhlášky
č. 78/2013 Sb.
Poloha domu
řadový
Míst k parkování
2
Telekomunikace
internet
Plocha terasy
20
Doprava
silnice
MHD
Podlaží podzemní
1
Aktivní
ano

poptat nemovitost

Odesláním formuláře udělujete souhlas s pravidly ochrany osobních údajů

Mgr. Dušan Vaněkrealitní makléř

dreampraha@century21.cz

CENTURY 21 Dream

Radlická 759/32, 15000, Praha 5

REKLAMA

spočítejte si svou hypotéku

svou hypotéku si právě počítá % zájemců

měsíční splátka

- Kč

Při úroku - % p.a.

Mám zájem o hypotéku

Odeslat ke kalkulaci

zpět na kalkulačkuOdesláním formuláře udělujete souhlas s pravidly ochrany osobních údajů
REKLAMA
Cookies
spočítat
hypotéku