Byt na prodej, 3+1, Praha 5 - Hlubočepy
Praha 5 - Hlubočepy, 15 200, Pražského 636/34
8 800 000 Kč (za nemovitost) Cena + provize RKPraha 5 - Hlubočepy, 15 200, Pražského 636/34
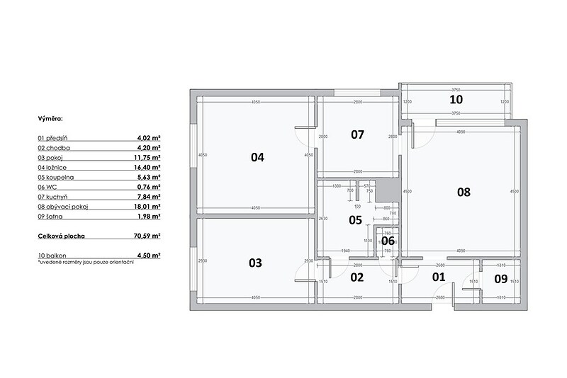
8 800 000 Kč (za nemovitost) Cena + provize RKByt na prodej / 3+1 / 76 m2 - Byty na prodej typu 3+1 za nabídkovou cenu 8 800 000 Kč. Vybraná nemovitost - 3+1 se nachází v městské části Praha 5. Typ vlastnictví osobní. Plocha nemovitosti je 76 m2. Dostupné od 30.10.2025.
Stojíte před skvělou příležitostí stát se vlastníkem bytu s výhledem na panorama Prahy ve vyhledávané části Hlubočepy sídliště Barrandov. Nabízíme k prodeji útulný a světlý byt 3+1 s užitnou plochou 76 metrů čtverečních, nacházející se na šestém patře, sedmipatrového domu s výtahem na adrese Pražského 636/34. Dům je situován v klidné části s výbornou dostupností veřejné dopravy, obchodů a služeb. Byt se pyšní nejen skvělým rozložením, ale světlostí díky jihozápadní orientaci. Dispozice bytu zahrnuje obývací pokoj, dvě neprůchozí ložnice, koupelnu, samostatné WC a praktickou komoru. Z obývacího pokoje je přístup na zasklenou lodžii o velikosti 4,5 metru čtverečního, která umožňuje pohodlné posezení s nádherným výhledem na okolí bez ohledu na počasí. Interiér bytu je částečně zařízen. Součástí vybavení jsou spotřebiče včetně pračky. Bezpečnostní prvek je zajištěn vchodem na čip a domovním telefonem. Byt je ideální volbou jak pro rodiny s dětmi kvůli blízkosti škol, školek a parků, tak pro jednotlivce či páry, kteří ocení blízkost kultury a zábavních možností, jež nabízí metropole. Nový majitel má možnost si na tento byt vzít hypotéku, což může proces koupi usnadnit. Cena tohoto bytu je stanovena na 8 800 000 CZK a zahrnuje také sklep. Tato nemovitost je ideální volbou pro ty, kteří hledají komfortní bydlení v Praze s vynikajícím spojením do centra a zároveň si potrpí na klid a soukromí. Nejenže je lokalita Hlubočepy známá svou kompletní občanskou vybaveností včetně širokého výběru škol, zdravotnických zařízení, obchodů a míst pro volný čas, ale také vyniká skvělou dopravní dostupností. Veřejná doprava včetně autobusu a metra je na dosah, stejně jako hlavní dopravní tepny, které umožní snadné a rychlé spojení s ostatními částmi Prahy i okolím. Pokud tedy hledáte byt v Praze, který kombinuje moderní bydlení s přístupem k zeleni a zároveň nabízí výhody městského života, tento byt by rozhodně měl být ve vašem úvahu. Navštívit tento byt a prožít pocit domova je něco, co si zaslouží každý zájemce o kvalitní bydlení.

vendula.hlavacova@century21.cz
Rumunská 18/22, 12000, Praha 2