Typ nemovitosti
Nerozhoduje
domydomy
domybyty
domypozemky
domykomerční nemovitosti
domyostatní nemovitosti
Typ nabídky
Nerozhoduje
Prodej
Pronájem
Aukce
Podíly
Kraj
Nerozhoduje
Karlovarský kraj
Plzeňský kraj
Jihočeský kraj
Ústecký kraj
Liberecký kraj
Moravskoslezský kraj
Zlínský kraj
Hl. město Praha
Olomoucký kraj
Královéhradecký kraj
Pardubický kraj
Jihomoravský kraj
Vysočina
Středočeský kraj

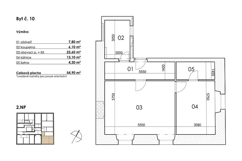
Byt na prodej, 2+kk, Postupice

Postupice, 25 701, Blanická 81

4 194 470 Kč (za nemovitost) Cena včetně provize, Poslední šance na koupi za současnou cenu! Aktuální ceny platí jen do konce roku 2025.

Byt na prodej / 2+kk / 55 m2 - Byty na prodej typu 2+kk za nabídkovou cenu 4 194 470 Kč. Vybraná nemovitost - 2+kk. Typ vlastnictví osobní. Plocha nemovitosti je 55 m2.

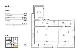
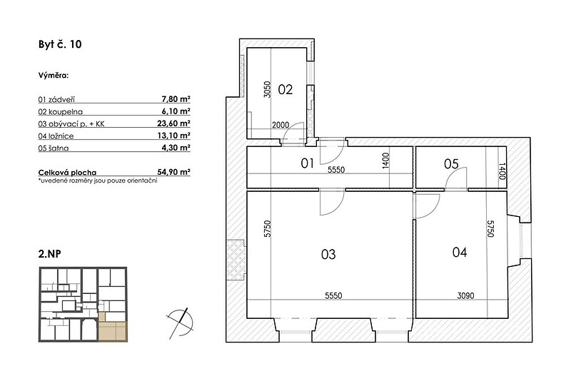
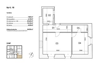
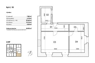
V unikátním rezidenčním projektu v Postupicích u Benešova nabízíme moderní byt 2+kk o velikosti 54,9 m² ve 2. nadzemním podlaží. Projekt spojuje kouzlo historie s nejvyšším standardem současného bydlení. Každý byt je pečlivě navržen tak, aby poskytoval maximální pohodlí, dostatek světla a funkční uspořádání pro moderní život. Vhodné pro rodiny, jednotlivce i investory. ✔ Parkovací stání a možnost garáží přímo v areálu ✔ Dětské hřiště v bezpečném vnitrobloku ✔ Klidná lokalita s rychlou dostupností do Benešova i Prahy ✔ Kompletní občanská vybavenost v docházkové vzdálenosti (škola, školka, obchody, restaurace) Technické informace o stavbě: Rekonstrukce probíhá s respektem k historické hodnotě objektu a zároveň s důrazem na moderní standardy: Konstrukce: Smíšené a cihelné zdivo, zdi o tloušťce 300–1000 mm, založené na kamenných pasech. Stropy: Dřevěné trámové, často zdvojené pro lepší akustiku a nosnost. Příčky: Porobeton (Ytong KLASIK) pro výbornou tepelnou a zvukovou izolaci. Vytápění: Teplovodní systém – podlahové topení. Vlastní elektrokotel 6 kW, umístěný v koupelně, chodbě nebo šatně. Ohřev vody: Elektrické akumulační bojlery (100–120 l) v každé jednotce. Společné prostory: Temperované elektrickými přímotopy na 15 °C. Napojení na inženýrské sítě: Nové přípojky na veřejný vodovod a kanalizaci v ulici Průběžná, napojení na silnoproudou elektřinu (ČEZ). Kanalizace dešťová: Řešena zasakováním a napojením na stávající systém. Začněte novou kapitolu v unikátním prostředí historického domu s duší a pohodlím moderního domova. Kontaktujte nás pro více informací nebo sjednání prohlídky!

Cena
4 194 470 Kč
Poznámka k ceně
Poslední šance na koupi za současnou cenu! Aktuální ceny platí jen do konce roku 2025.
Provize
včetně provize
Dispozice
2+kk
Celková plocha
55 m2
Užitná plocha
55 m2
ID nabídky
BJ10
Aktualizace
23.09.2025
Aktivní dní
5
Forma vlastnictví
osobní
Typ budovy
cihlová
Stav
projekt
Voda
vodovod
Podlaží
2
Podlaží celkem
2
Odpad
veřejná kanalizace
Stavba
cihlová
Sklep
ano
Patro
2
Garáž
ano
Elektřina
230V
Výtah
ne
Energetická nárocnost budovy
E - Nehospodárná
Podle vyhlášky
č. 78/2013 Sb.
Míst k parkování
18
Rok rekonstrukce
2 025
Doprava
silnice
vlak
MHD
Aktivní
ano

poptat nemovitost

Odesláním formuláře udělujete souhlas s pravidly ochrany osobních údajů

Martina Veselskárealitní makléř

martina.veselska@century21.cz

CENTURY 21 Birdie Reality

Rumunská 18/22, 12000, Praha 2

REKLAMA

spočítejte si svou hypotéku

svou hypotéku si právě počítá % zájemců

měsíční splátka

- Kč

Při úroku - % p.a.

Mám zájem o hypotéku

Odeslat ke kalkulaci

zpět na kalkulačkuOdesláním formuláře udělujete souhlas s pravidly ochrany osobních údajů
REKLAMA
Cookies
spočítat
hypotéku