Typ nemovitosti
Nerozhoduje
domydomy
domybyty
domypozemky
domykomerční nemovitosti
domyostatní nemovitosti
Typ nabídky
Nerozhoduje
Prodej
Pronájem
Aukce
Podíly
Kraj
Nerozhoduje
Karlovarský kraj
Plzeňský kraj
Jihočeský kraj
Ústecký kraj
Liberecký kraj
Moravskoslezský kraj
Zlínský kraj
Hl. město Praha
Olomoucký kraj
Královéhradecký kraj
Pardubický kraj
Jihomoravský kraj
Vysočina
Středočeský kraj

Pronájem bytu, 3+kk, Černá Pole - Brno

Brno, Alešova

25 500 Kč (za měsíc) Cena + energie a služby 5 300 Kč + kauce 51 000 Kč + provize RK 30 800 Kč včetně DPH.

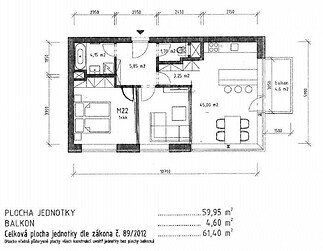
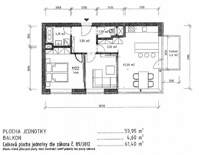
Pronájem bytu / 3+kk / 65 m2 - Pronájem bytů typu 3+kk za nabídkovou cenu 25 500 Kč. Vybraná nemovitost - 3+kk. Typ vlastnictví osobní. Plocha nemovitosti je 65 m2. Dostupné od 06.11.2025.

V zastoupení majitele si dovolujeme nabídnout pronájem bytu o dispozici 3+KK, který je umístěný v novostavbě bytového domu na rohu ulic Alešova a Merhautova v městské části Černá Pole. Byt je umístěn ve 2. NP domu s výtahem a okny je orientován do ulice Merhautova. Celková plocha bytu činí 60 m2 a dále k němu patří balkon přístupný z obývacího pokoje s plochou 4,6 m2. V rámci domu je možné užívat společnou kolárnu/kočárkárnu. Výhodami bytu jsou bez pochyb neprůchozí pokoje a výborný stav. Byt je vybaven kuchyňskou linkou s elektrickou varnou deskou, elektrickou troubou, digestoří, myčkou a vestavnou lednicí s mrazákem. Koupelna je oddělená od toalety a je zařízena vanou. Topení a ohřev TUV je zajištěno centrálně. Celkové náklady spojené s pronájmem činí 25.500 Kč nájemné + 5.300 Kč záloha za energie a služby. Kauce je ve výši 51.000 Kč a provize RK činí 30.800 Kč včetně DPH. Prohlídky jsou možné po předchozí telefonické dohodě. K dispozici ihned po dohodě, nebo od 1.12.2025.

Cena
25 500 Kč
Poznámka k ceně
+ energie a služby 5 300 Kč + kauce 51 000 Kč + provize RK 30 800 Kč včetně DPH.
Dispozice
3+kk
Celková plocha
60 m2
Užitná plocha
65 m2
ID nabídky
967107
Aktualizace
06.11.2025
Aktivní dní
1
Forma vlastnictví
osobní
Typ budovy
cihlová
Stav
velmi dobrý
Vybavení
ne
Voda
vodovod
Podlaží
2
Podlaží celkem
5
Plyn
plynovod
Odpad
veřejná kanalizace
Balkón
ano
Stavba
cihlová
Patro
2
Plocha balkónu
4
Elektřina
230V
Výtah
ano
Energetická nárocnost budovy
G - Mimořádně nehospodárná
Podle vyhlášky
č. 78/2013 Sb.
Datum nastěhování
06.11.2025
Telekomunikace
telefon
internet
Aktivní
ano

poptat nemovitost

Odesláním formuláře udělujete souhlas s pravidly ochrany osobních údajů

Miroslava Heverovárealitní makléř

bonusbrno@century21.cz

CENTURY 21 Bonus Brno

Křenová 479/71, 60200, Brno

REKLAMA

spočítejte si svou hypotéku

svou hypotéku si právě počítá % zájemců

měsíční splátka

- Kč

Při úroku - % p.a.

Mám zájem o hypotéku

Odeslat ke kalkulaci

zpět na kalkulačkuOdesláním formuláře udělujete souhlas s pravidly ochrany osobních údajů
REKLAMA
Cookies
spočítat
hypotéku