Dům na prodej, rodinný dům, Praha 4 - Újezd u Průhonic
Praha 4 - Újezd u Průhonic, Nad statkem
18 490 000 Kč (za nemovitost) Cena + provize RK, Cena za jednotku (polovinu domu) se zahradou.Praha 4 - Újezd u Průhonic, Nad statkem
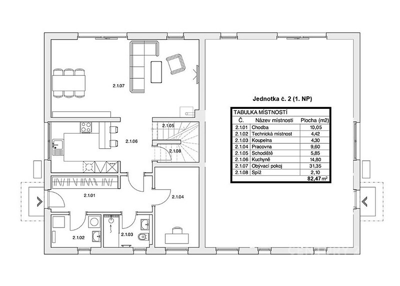
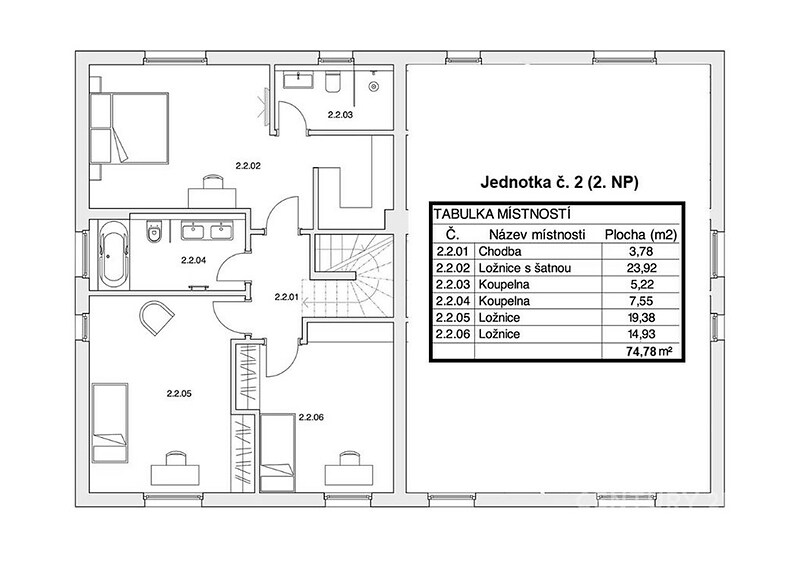
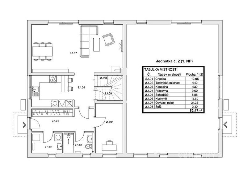
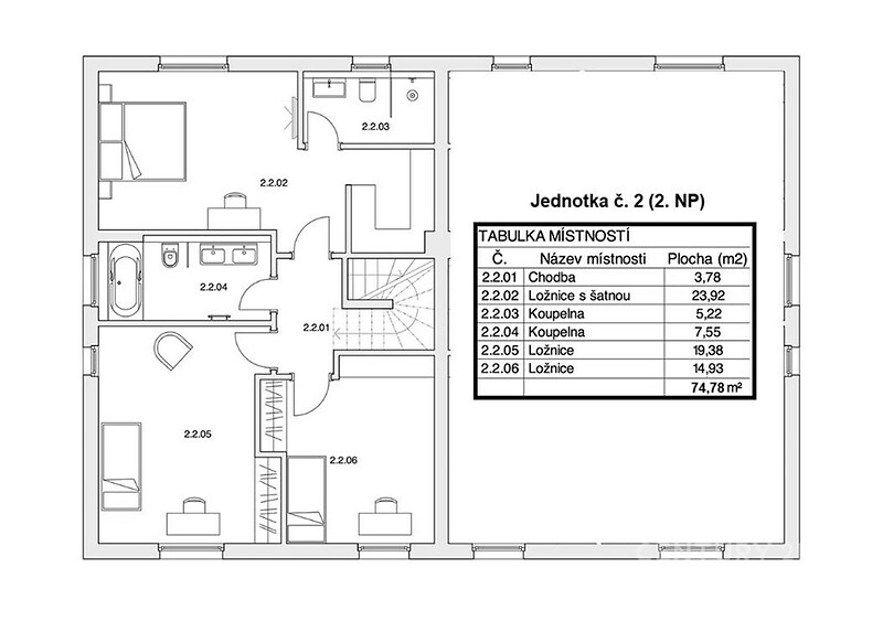
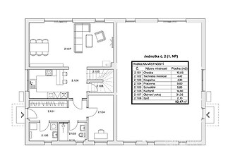
18 490 000 Kč (za nemovitost) Cena + provize RK, Cena za jednotku (polovinu domu) se zahradou.Dům na prodej / rodinný dům / 157 m2 - Domy na prodej typu rodinný dům za nabídkovou cenu 18 490 000 Kč. Vybraná nemovitost - Rodinný dům. Typ vlastnictví osobní. Plocha nemovitosti je 157 m2. Dostupné od 04.10.2025.
Vaše nová kapitola začíná zde – v dokonalé symbióze přírody a městského komfortu! Cena: 18 490 000 Kč | Užitná plocha domu: 157 m² | Dispozice: 5+kk | Novostavba na klíč | Zahrada: 423 m². PROČ PRÁVĚ TENTO DŮM? Představte si místo, kde se každé ráno probouzíte do zpěvu ptáků, kde vaše děti vyrůstají obklopené zelení, a přesto máte centrum Prahy na dosah ruky. To je váš nový domov v Újezdu u Průhonic! GARANTOVANÁ JISTOTA – BEZ RIZIKA, BEZ STAROSTÍ! Zkolaudováno – právní jistota zajištěna. Dokončení stavby od výběru materiálu do 2 měsíců – žádné zdlouhavé čekání. V ceně máte o osobního designera, který vám pomůže s návrhem interiéru a připraví vizualizace. Nabídková cena zahrnuje kompletní dokončení na klíč BYDLENÍ, KTERÉ PŘEKONÁ VAŠE OČEKÁVÁNÍ Součástí nemovitosti: Prostorná zahrada – soukromé místo pro relaxaci a radosti s rodinou 5 vlastních parkovacích stání – pohodlí každý den. NADSTANDARD, KTERÝ SI ZASLOUŽÍTE Prémiové značky: Villeroy & Boch, Hansgrohe, Grohe, Geberit, SOHO, Provenza Moderní technologie: Tepelné čerpadlo + podlahové topení Fotovoltaika Chytrá domácnost Elektrické žaluzie Zabezpečovací systém Velkoformátové obklady Příprava na krb LOKALITA, DO KTERÉ SE ZAMILUJETE Újezd u Průhonic je synonymem pro kvalitní život. Obklopeni Milíčovským lesem, Průhonickým parkem a dendrologickou zahradou, kde máte nekonečné možnosti pro odpočinek i aktivní vyžití. Kompletní občanská vybavenost: Sportoviště, škola, školka. Restaurace, kavárny, obchody. Zastávka MHD: 170 metrů. Dálnice D1 s rychlým spojením (možnosti 2 nájezdů: Chodov, PrůhoniceČestlice). Centrum Prahy: vynikající dostupnost. Čestlice, Průhonice a Chodov jsou vzdáleny 10 minut autem. TOTO JE PŘÍLEŽITOST, KTERÁ SE NEVRACÍ! Nemovitosti této kvality zmizí z trhu během okamžiku. Staňte se součástí privilegované komunity, která si zvolila nejlepší z obou světů – klid přírody a dynamiku moderního života. Kontaktujte nás ještě dnes a domluvte si osobní prohlídku! Rádi vám poskytneme veškeré informace, odpovíme na otázky a pomůžeme s financováním. Váš nový domov na vás čeká – zbývá jen udělat první krok! Újezd u Průhonic – tam, kde se sen stává skutečností! Pozn.: "Některé fotografie zobrazují virtuální home staging – vizualizaci možného budoucího vzhledu nemovitosti."

Jeremiášova 2722/2a, 15500, Praha 13