Typ nemovitosti
Nerozhoduje
domydomy
domybyty
domypozemky
domykomerční nemovitosti
domyostatní nemovitosti
Typ nabídky
Nerozhoduje
Prodej
Pronájem
Aukce
Podíly
Kraj
Nerozhoduje
Karlovarský kraj
Plzeňský kraj
Jihočeský kraj
Ústecký kraj
Liberecký kraj
Moravskoslezský kraj
Zlínský kraj
Hl. město Praha
Olomoucký kraj
Královéhradecký kraj
Pardubický kraj
Jihomoravský kraj
Vysočina
Středočeský kraj

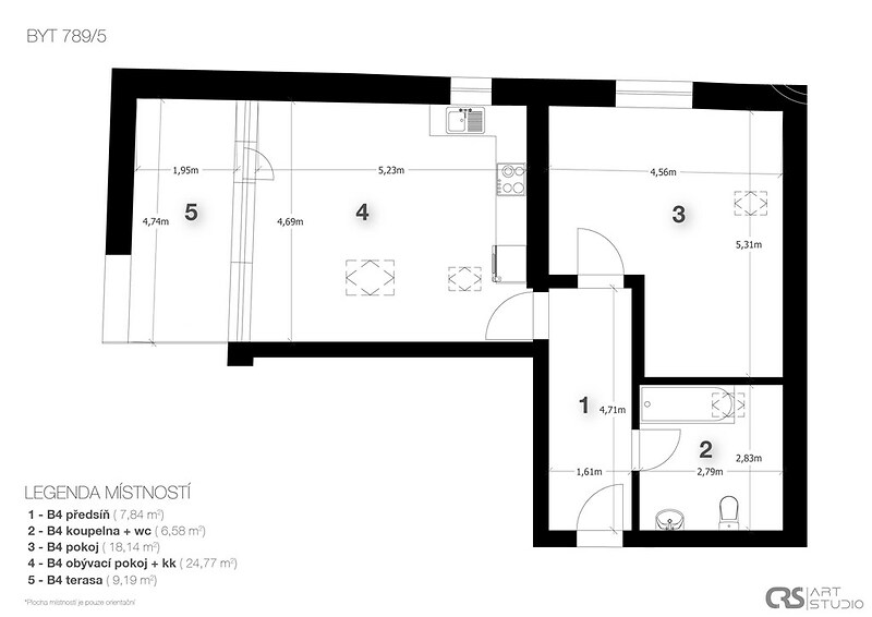
Byt na prodej, 2+kk, Stará Boleslav - Brandýs nad Labem-Stará Boleslav

Brandýs nad Labem-Stará Boleslav, 25 001, nám. sv. Václava 789/5

7 500 000 Kč (za nemovitost) Cena + provize RK

Byt na prodej / 2+kk / 69 m2 - Byty na prodej typu 2+kk za nabídkovou cenu 7 500 000 Kč. Vybraná nemovitost - 2+kk. Typ vlastnictví osobní. Plocha nemovitosti je 69 m2.

Ve výhradním zastoupení nabízíme k prodeji nadstandardní byt o dispozici 2+kk o užitné ploše 69m2 (byt 58 m² + terasa 9m2 + sklep 3m2), který vzniká v rámci prestižního developerského projektu v bezprostřední blízkosti Staroboleslavské brány. Byt je součástí moderní novostavby s plánovaným dokončením v roce 2026. Součástí nabídky je terasa o velikosti 9 m² a také sklepní prostor 3 m². Byt bude částečně zařízený a jeho dispozice je navržena s maximálním důrazem na pohodlí i funkčnost. Ohřev vody a vytápění bytu je zajištěno moderním tepelným čerpadlem značky NIBE. Projekt spojuje moderní architekturu s respektem k historickému okolí a nabízí tak jedinečnou možnost prémiového bydlení v jedné z nejatraktivnějších částí Brandýsa nad Labem–Staré Boleslavi. Lokalita poskytuje klidné prostředí s atmosférou historického centra a zároveň plnou občanskou vybavenost – školy, restaurace, kulturní památky i snadnou dostupnost do Prahy. Tato nemovitost představuje výjimečnou investici do budoucna při hledání moderního bydlení v exkluzivní lokalitě.

Cena
7 500 000 Kč
Provize
+ provize RK
Dispozice
2+kk
Celková plocha
58 m2
Užitná plocha
69 m2
Terasa
ano
ID nabídky
966783
Aktualizace
09.10.2025
Aktivní dní
5
Forma vlastnictví
osobní
Typ budovy
cihlová
Stav
novostavba
Vybavení
částečně
Voda
vodovod
Podlaží
3
Podlaží celkem
3
Plyn
plynovod
Odpad
veřejná kanalizace
Stavba
cihlová
Sklep
ano
Patro
3
Terasa
ano
Plocha sklepu
3
Elektřina
400V
Výtah
ne
Energetická nárocnost budovy
C - Úsporná
Podle vyhlášky
č. 78/2013 Sb.
Ukazatel energetické nárocnosti budovy
120,00
Plocha lodžie
7
Rok výstavby
2 025
Míst k parkování
1
Telekomunikace
internet
Plocha terasy
9
Doprava
autobus
vlak
Aktivní
ano

poptat nemovitost

Odesláním formuláře udělujete souhlas s pravidly ochrany osobních údajů

Karel Hubáčekrealitní makléř

karel.hubacek@century21.cz

CENTURY 21 Premium

Zlatnická 1582/10, 11000, Praha 1

REKLAMA

spočítejte si svou hypotéku

svou hypotéku si právě počítá % zájemců

měsíční splátka

- Kč

Při úroku - % p.a.

Mám zájem o hypotéku

Odeslat ke kalkulaci

zpět na kalkulačkuOdesláním formuláře udělujete souhlas s pravidly ochrany osobních údajů
REKLAMA
Cookies
spočítat
hypotéku