Typ nemovitosti
Nerozhoduje
domydomy
domybyty
domypozemky
domykomerční nemovitosti
domyostatní nemovitosti
Typ nabídky
Nerozhoduje
Prodej
Pronájem
Aukce
Podíly
Kraj
Nerozhoduje
Karlovarský kraj
Plzeňský kraj
Jihočeský kraj
Ústecký kraj
Liberecký kraj
Moravskoslezský kraj
Zlínský kraj
Hl. město Praha
Olomoucký kraj
Královéhradecký kraj
Pardubický kraj
Jihomoravský kraj
Vysočina
Středočeský kraj

Prostory na prodej, činžovní dům, Brodek u Konice

Brodek u Konice, 79 846,  26

5 499 999 Kč (za nemovitost) Cena včetně provize, cena včetně provize RK a právních služeb

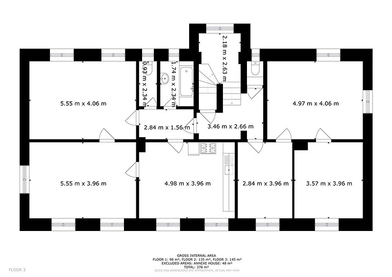
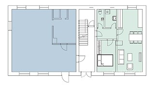
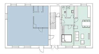
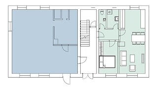
Prostory na prodej / činžovní dům / 280 m2 - Prostory na prodej typu činžovní dům za nabídkovou cenu 5 499 999 Kč. Vybraná nemovitost - Činžovní dům. Typ vlastnictví osobní. Plocha nemovitosti je 280 m2. Dostupné od 09.10.2025.

Ve výhradním zastoupení nabízíme k prodeji tento rodinný dům v malebné obci Brodek u Konice. Tato nemovitost je ideální volbou pro investora, který dokáže maximálně využít skrytý potenciál této budovy. Dům je dle katastru nemovitostí vedený jako rodinný dům a kolaudovaný v roce 1946, poslední významnější rekonstrukce proběhla okolo roku 1990, kdy se v přízemí budovy přebudovala levá polovina na obchodní prostor se samostatným vstupem z ulice. Na domě se od tohoto roku prováděla průběžná údržba, např. okolo roku 2000 výměna plynového kotle, kdy každé patro má svůj vlastní plynový kotel a okruh topení, atd.. Dům má kamenné základy a je postavený z pálených cihel. Celkem se skládá z 1.PP (sklep), 1.NP, 2.NP a půdního prostoru s valbovou střechou. Plášť budovy není zateplený. Okna do ulice v 1.NP jsou plastová, ostatní dřevěná kastlová. Za domem se nachází vedlejší stavba s vlastním parcelním číslem, v evidenci jako jiná stavba o rozloze 64m2. Zde se v levé části nachází stodola a v pravé části garáž s dvoukřídlými vraty. Celková plocha je 1002 m2, z toho pozemek o rozloze 768m2, vedený jako zahrada, kde jsou vzrostlé ovocné stromy, které doplňují okrasné dřeviny a keře, včetně záhonů pro pěstování a skleník. Bližší specifikace: 1) 1. PP. sklepní prostory nemovitost je z větší části celého půdorysu podsklepená. tyto prostory lze do budoucna využít jako skladiště, sklepy pro jednotlivé bytové jednotky a například pro umístění společných technologií pro celý dům. 2) 1. NP. resp. přízemí je rozděleno vstupní chodbou a centrálním schodištěm na dvě části. Při vstupu do domu levá část je aktuálně řešena jako obchodní prostora, například zřízení prodejny, provozování služeb či kanceláře, celkový prostor má rozlohu okolo 70m2. Pravá strana je bytová jednotka, aktuálně o dispozici 2+kk, s možností zachování dispozice, případně snadného přebudování na dispozici 2+1. Podlahová plocha činí okolo 52m2. 3) 2.NP. je řešeno jako bytová jednotka o dispozici 5+1 s celkovou podlahovou plochou 145m2. Zde je velký potenciál opět přebudovat na 2 bytové jednotky, kdy by mohla vzniknout dispozice 3+kk (3+1) o cca 83m2 a druhá jednotka o dispozici 2+1 s přibližně 52m2. 4) Půda aktuálně se jedná o klasickou půdní prostoru s valbovou střechou, která by však mohla být přebudována a mohly by zde vzniknout další prostory pro bydlení, ateliéry či kanceláře. Nutná následná konzultace s projektantem a statikem. Celý pozemek je oplocený. Okolí domu nabízí bohaté možnosti pro rekreaci – v blízkosti se nachází bohatá občanská vybavenost, v okolí cyklostezky, turistické stezky a další. Pravidelné autobusové spojení díky systému IDSOK s dopravou do Konice (vlak), Prostějova a Horního Štěpánova. Dům je ideální příležitostí pro investora, který dokáže přetvořit rodinný dům na bytové jednotky, případně na bytové jednotky a obchodní prostor, vhodný je pro okamžité nastěhování či vícegenerační bydlení. Pro více informací a prohlídku kontaktujte prosím makléře.

Cena
5 499 999 Kč
Poznámka k ceně
cena včetně provize RK a právních služeb
Provize
včetně provize
Dispozice
činžovní dům
Celková plocha
280 m2
Užitná plocha
280 m2
ID nabídky
968555
Aktualizace
09.10.2025
Aktivní dní
4
Forma vlastnictví
osobní
Typ budovy
cihlová
Stav
velmi dobrý
Vybavení
částečně
Voda
vodovod
Podlaží celkem
3
Plyn
plynovod
Odpad
veřejná kanalizace
Stavba
cihlová
Sklep
ano
Garáž
ano
Typ domu
patrový
Plocha sklepu
98
Elektřina
400V
Výtah
ne
Energetická nárocnost budovy
G - Mimořádně nehospodárná
Podle vyhlášky
č. 78/2013 Sb.
Plocha nebytových prostor
69
Rok výstavby
1 945
Míst k parkování
1
Datum nastěhování
09.10.2025
Rok rekonstrukce
1 990
Telekomunikace
telefon
internet
Doprava
silnice
autobus
Podlaží podzemní
1
Aktivní
ano

poptat nemovitost

Odesláním formuláře udělujete souhlas s pravidly ochrany osobních údajů

Jaroslav Varmužarealitní makléř

jaroslav.varmuza@century21.cz

CENTURY 21 Relax

9. května 695/14a, 68201, Vyškov

REKLAMA

spočítejte si svou hypotéku

svou hypotéku si právě počítá % zájemců

měsíční splátka

- Kč

Při úroku - % p.a.

Mám zájem o hypotéku

Odeslat ke kalkulaci

zpět na kalkulačkuOdesláním formuláře udělujete souhlas s pravidly ochrany osobních údajů
REKLAMA
Cookies
spočítat
hypotéku