Typ nemovitosti
Nerozhoduje
domydomy
domybyty
domypozemky
domykomerční nemovitosti
domyostatní nemovitosti
Typ nabídky
Nerozhoduje
Prodej
Pronájem
Aukce
Podíly
Kraj
Nerozhoduje
Karlovarský kraj
Plzeňský kraj
Jihočeský kraj
Ústecký kraj
Liberecký kraj
Moravskoslezský kraj
Zlínský kraj
Hl. město Praha
Olomoucký kraj
Královéhradecký kraj
Pardubický kraj
Jihomoravský kraj
Vysočina
Středočeský kraj

Pozemek na prodej, stavební parcely, Lysá nad Labem

Lysá nad Labem,

Info o ceně u RK

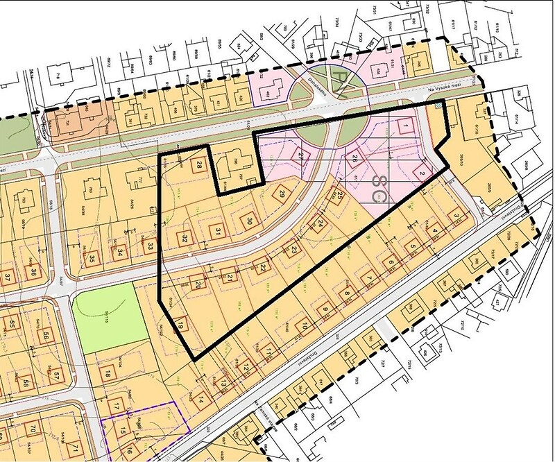
Pozemek na prodej / stavební parcely / 18000 m2 - Pozemky na prodej typu stavební parcely za nabídkovou cenu Info o ceně u RK Kč. Vybraná nemovitost - Stavební parcely. Typ vlastnictví osobní. Plocha nemovitosti je 18000 m2. Dostupné od 06.10.2025.

Výhradně nabízíme atraktivní pozemek přes 18.000m2 na výstavbu RD v Litoli, Lysá nad Labem, okres Nymburk ve Středočeském kraji. Jedná se o jednu z posledních proluk v centrální části obce, lokalita Vysoká Mez, která dle platného Regulačního plánu má navrženo 16 pozemků určených na výstavbu rodinných domů. Dle územního plánu je větší část pozemku určena pro "Plochy bydlení", menší část pro "Plochy smíšené obytné" Jedná se o velmi žádanou lokalitu s výbornou dopravní dostupností díky vlakovému spojení s Prahou a dálnic D10 a D11 mezi kterými leží. Tato nabídka představuje velmi zajímavou příležitost pro investory a developery, kteří hledají lokalitu s výjimečným potenciálem růstu a skvělou dostupností do metropole. Pro více informací a prohlídky volejte makléře pana Stanislava Šeldera.

Cena
Info o ceně u RK
Provize
+ provize RK
Dispozice
stavební parcely
ID nabídky
968288
Aktualizace
07.10.2025
Aktivní dní
8
Forma vlastnictví
osobní
Voda
vodovod
Podle vyhlášky
č. 78/2013 Sb.
Datum nastěhování
06.10.2025
Doprava
silnice
vlak
Aktivní
ano

poptat nemovitost

Odesláním formuláře udělujete souhlas s pravidly ochrany osobních údajů

Stanislav Šelderrealitní makléř

stanislav.selder@century21.cz

CENTURY 21 AZ Reality

Na dolinách 1276/43, 14000, Praha 4

REKLAMA

spočítejte si svou hypotéku

svou hypotéku si právě počítá % zájemců

měsíční splátka

- Kč

Při úroku - % p.a.

Mám zájem o hypotéku

Odeslat ke kalkulaci

zpět na kalkulačkuOdesláním formuláře udělujete souhlas s pravidly ochrany osobních údajů
REKLAMA
Cookies
spočítat
hypotéku