Dům na prodej, rodinný dům, Praha 4 - Újezd u Průhonic
Praha 4 - Újezd u Průhonic, Nad statkem
19 500 000 Kč (za nemovitost) Cena + provize RK, Cena za bytovou jednotku č. 1 a polovinu domu se zahradou.Praha 4 - Újezd u Průhonic, Nad statkem
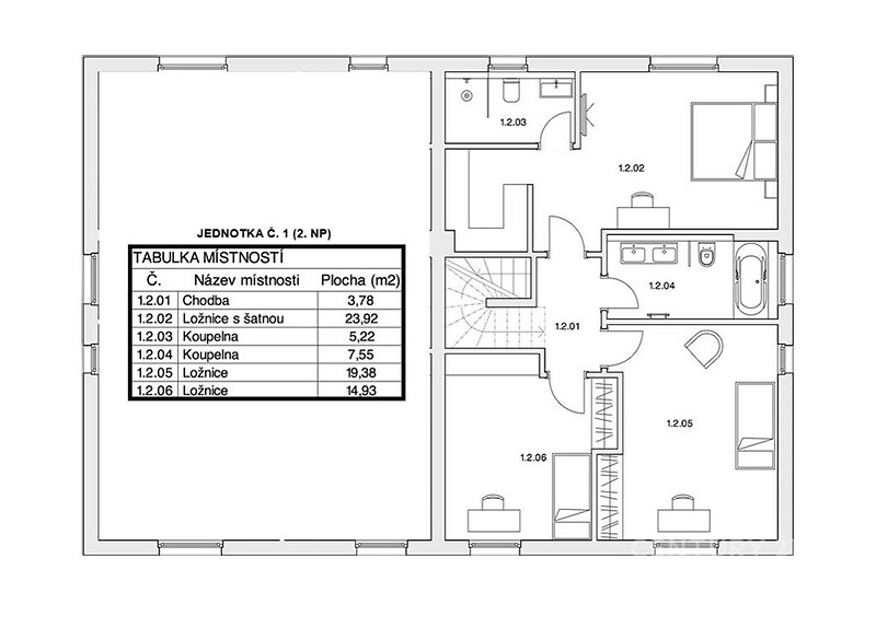
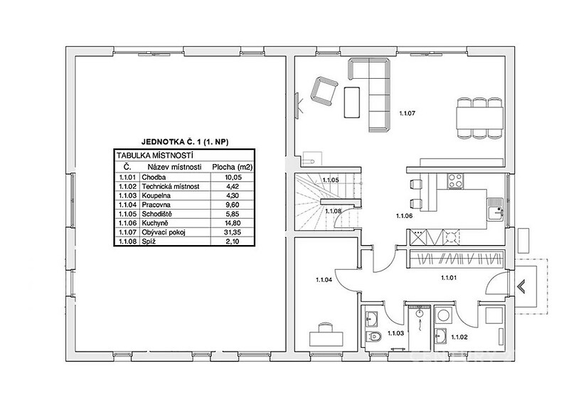
19 500 000 Kč (za nemovitost) Cena + provize RK, Cena za bytovou jednotku č. 1 a polovinu domu se zahradou.Dům na prodej / rodinný dům / 157 m2 - Domy na prodej typu rodinný dům za nabídkovou cenu 19 500 000 Kč. Vybraná nemovitost - Rodinný dům. Typ vlastnictví osobní. Plocha nemovitosti je 157 m2. Dostupné od 04.10.2025.
Hledáte ideální kombinaci klidného i aktivního života zároveň? Možnost blízkého sportovního vyžití a obklopeni přírodou? Výbornou dopravní dostupností do centra velkoměsta s napojením na D1? Máme pro vás řešení. V jihovýchodní okrajové části Prahy, v lukrativní lokalitě Újezdu u Průhonic, vyrostla novostavba rodinného domu se dvěma bytovými jednotkami a vlastní zahradou. Vaše budoucí bydlení je navrženo tak, aby splňovalo současné požadavky na komfort. Dispozice jednotky je 5+KK o celkové podlahové ploše 157 m² a se rozkládá se ve dvou nadzemních podlažích. Součástí domu je vlastní zahrada a parkovací stání. Nemovitost je napojena na elektřinu, vodu a kanalizaci. Kolaudace proběhla v říjnu 2025 a dům je nyní ve fázi 'whitewall', tedy máte možnost vlastní volby účelu místností konfigurace těchto prvků je nyní na vás. Případně vám developer dům dodělá 'na klíč' za 10 % ceny. Více informací vám poskytne makléř. Nadstandard a úspora energií Kromě promyšlené dispozice se můžete těšit na celou řadu moderních prvků. Vytápění a ohřev vody zajišťuje tepelné čerpadlo v kombinaci s teplovodním podlahovým topením, což spolu s rekuperací tepla zaručuje nízké provozní náklady. Nemovitost spadá do energetické třídy B, tedy do kategorie velmi úsporných budov, dalšímu upgradu pomůže i příprava na fotovoltaiku. Projekt počítá s nadstandardním vybavením, jako jsou velkoformátové obklady, značkové sanitární předměty, elektrické žaluzie, zabezpečovací systémy a příprava pro systém smarthome a krb. Lokalita, co vám vezme dech Dům se nachází v klidné rezidenční čtvrti s dostatkem zeleně a širokou občanskou vybaveností v docházkové vzdálenosti (sportoviště na fotbal a tenis, škola, školka, restaurace, kavárna a obchody). Další rozšířená vybavenost, včetně nákupních center, je dostupná v sousedních Čestlicích, Průhonicích a Chodově, kam se autem dostanete za pouhých 10 minut. Pro milovníky přírody, sportu (např. běhu nebo joggingu a cyklistiky) je okolí doslova rájem (Milíčovský les, Průhonický park a dendrologická zahrada), nedaleko jsou 3 rybníky a navazující plochy polí, luk a lesů. Dopravní dostupnost do centra je vynikající, zastávka MHD je pouhých 170 metrů od domu a rychlé napojení na dálnici D1 je ve dvou variantách nájezdů. Jak si svůj sen splnit? V současné fázi výstavby, s 90% dokončeností, vám nabízíme dvě možnosti, jak se stát majitelem této unikátní nemovitosti: A./ Kdy si sami dokončíte interiér dle svých představ a získáte tak bydlení za nejnižší cenu, nebo B./ budete chtít dokončení od developera 'na klíč'. Bližší informace o ceně vám podá makléř. Nenechte si ujít tuto výjimečnou příležitost a kontaktujte nás pro více informací. Některé fotografie jsou pouze vizuálním návrhem.

Jeremiášova 2722/2a, 15500, Praha 13