Typ nemovitosti
Nerozhoduje
domydomy
domybyty
domypozemky
domykomerční nemovitosti
domyostatní nemovitosti
Typ nabídky
Nerozhoduje
Prodej
Pronájem
Aukce
Podíly
Kraj
Nerozhoduje
Karlovarský kraj
Plzeňský kraj
Jihočeský kraj
Ústecký kraj
Liberecký kraj
Moravskoslezský kraj
Zlínský kraj
Hl. město Praha
Olomoucký kraj
Královéhradecký kraj
Pardubický kraj
Jihomoravský kraj
Vysočina
Středočeský kraj

Byt na prodej, 2+kk, Praha 4 - Háje

Praha 4 - Háje, 14 900, Kosmická 740/7

6 190 000 Kč (za nemovitost) Cena + provize RK

Byt na prodej / 2+kk / 45 m2 - Byty na prodej typu 2+kk za nabídkovou cenu 6 190 000 Kč. Vybraná nemovitost - 2+kk se nachází v městské části Praha 11. Typ vlastnictví družstevní. Plocha nemovitosti je 45 m2. Dostupné od 13.08.2025.

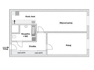
Nabízíme k prodeji útulný a světlý byt 2+kk o celkové ploše 48m², umístěný ve 2. patře dobře udržovaného panelového domu s výtahem na adrese Kosmická Háje. Tento atraktivní byt, který se nachází ve vyhledávané lokalitě s výbornou dopravní dostupností (metro, autobusy, městská doprava), je ihned volný k nastěhování a nabízí perfektní příležitost pro individuální bydlení či jako investici k pronájmu. Vstupem do chodby bytu naleznete po celé délce praktickou vestavnou skříň. Kuchyňská linka je vybavena lednicí, varnou deskou, troubou, mikrovlnou troubou vše vestavné. V koupelně se nachází kratší vana a výklenek na umístění pračky a sušičky. WC je dohromady s koupelnou. Byt, orientovaný na jih, je velmi světlý s příjemným výhledem, což poskytuje jeho obyvatelům útulnou a svěží atmosféru. Dům, ve kterém se byt nachází, je vybaven výtahem, což usnadňuje přístup. K bytu náleží také sklep, což je ideální pro skladování sezónních věcí nebo větších předmětů, které nejsou potřeba každodenně. Lokalita PrahaHáje je známá svou kompletní občanskou vybaveností, včetně obchodů, služeb, škol, školek a lékařských zařízení. V těsné blízkosti nemovitosti se nachází parky a zelené plochy, které umožňují relaxaci a odpočinek ve městě. Navíc, díky své poloze je byt skvělým místem pro různé venkovní aktivity a sporty. Koupě bytu je tedy výbornou volbou pro každého, kdo hledá klidné a pohodlné bydlení s rychlým připojením k centru Prahy. Vzhledem k vynikající úrovni vybavenosti a lokalitě nabízí byt vynikající poměr cenavýkon a je vhodný jak pro nový domov tak pro investici. Kontaktujte mne pro více informací a domluvte si prohlídku, abyste si mohli tento jedinečný byt prohlédnout osobně. Ráda Vám byt představím.

Cena
6 190 000 Kč
Provize
+ provize RK
Dispozice
2+kk
Celková plocha
42 m2
Užitná plocha
45 m2
ID nabídky
965113
Aktualizace
14.08.2025
Aktivní dní
3
Forma vlastnictví
družstevní
Typ budovy
panelová
Stav
velmi dobrý
Vybavení
částečně
Voda
vodovod
Podlaží
3
Podlaží celkem
13
Odpad
veřejná kanalizace
Stavba
panelová
Sklep
ano
Patro
3
Elektřina
230V
Výtah
ano
Energetická nárocnost budovy
G - Mimořádně nehospodárná
Podle vyhlášky
č. 78/2013 Sb.
Datum nastěhování
13.08.2025
Doprava
silnice
MHD
Aktivní
ano

poptat nemovitost

Odesláním formuláře udělujete souhlas s pravidly ochrany osobních údajů

Zuzana Škotyovárealitní makléř

zuzana.skotyova@century21.cz

CENTURY 21 Diamonds

Wenzigova 1861/7, 12000, Praha 2

REKLAMA

spočítejte si svou hypotéku

svou hypotéku si právě počítá % zájemců

měsíční splátka

- Kč

Při úroku - % p.a.

Mám zájem o hypotéku

Odeslat ke kalkulaci

zpět na kalkulačkuOdesláním formuláře udělujete souhlas s pravidly ochrany osobních údajů
REKLAMA
Cookies
spočítat
hypotéku